Meteor Avenue, Whitstable

£410,000

3 Bedroom Detached Bungalow for sale in Whitstable

3 1
  • VIDEO WALK THROUGH TOUR COMING SOON
  • Detached Bungalow
  • Three Good Size Bedrooms
  • Kitchen & Conservatory To Rear
  • Versatile Accommodation
  • Standing On A Corner Plot
  • Pretty & Well Maintained Gardens
  • Attached Garage & Off Road Parking
  • No Upward Chain
  • Convenient and Popular Location

Occupying a well-maintained corner plot, this detached bungalow is offered with no onward chain and benefits from an attached garage and off-road parking. This comfortable and versatile home features a spacious entrance hall, front-facing lounge and a kitchen to the rear with access to a small conservatory. There are three generously sized bedrooms along with a bathroom and a separate cloakroom. The property is ideally located approximately one mile from Whitstable's vibrant town centre, famed for its working harbour, independent shops and excellent choice of restaurants and cafés. Whitstable Railway Station (approx. 1.4 miles) provides regular services to London Victoria with a journey time of around 1 hour and 20 minutes. The nearby A299 offers convenient access to the A2/M2, the channel ports and the wider motorway network. The historic Cathedral City of Canterbury lies just over six miles away. For everyday needs a general store and post office are located around 700 yards from the property, while regular bus services can be found approximately 150 yards away on Valkyrie Avenue. Outdoor enthusiasts will appreciate the coastal walks available just over half a mile away and the popular Rose & Bloom pub/restaurant is within easy reach at approximately 350 yards.

Non Approved Draft Details   


Open Porch   


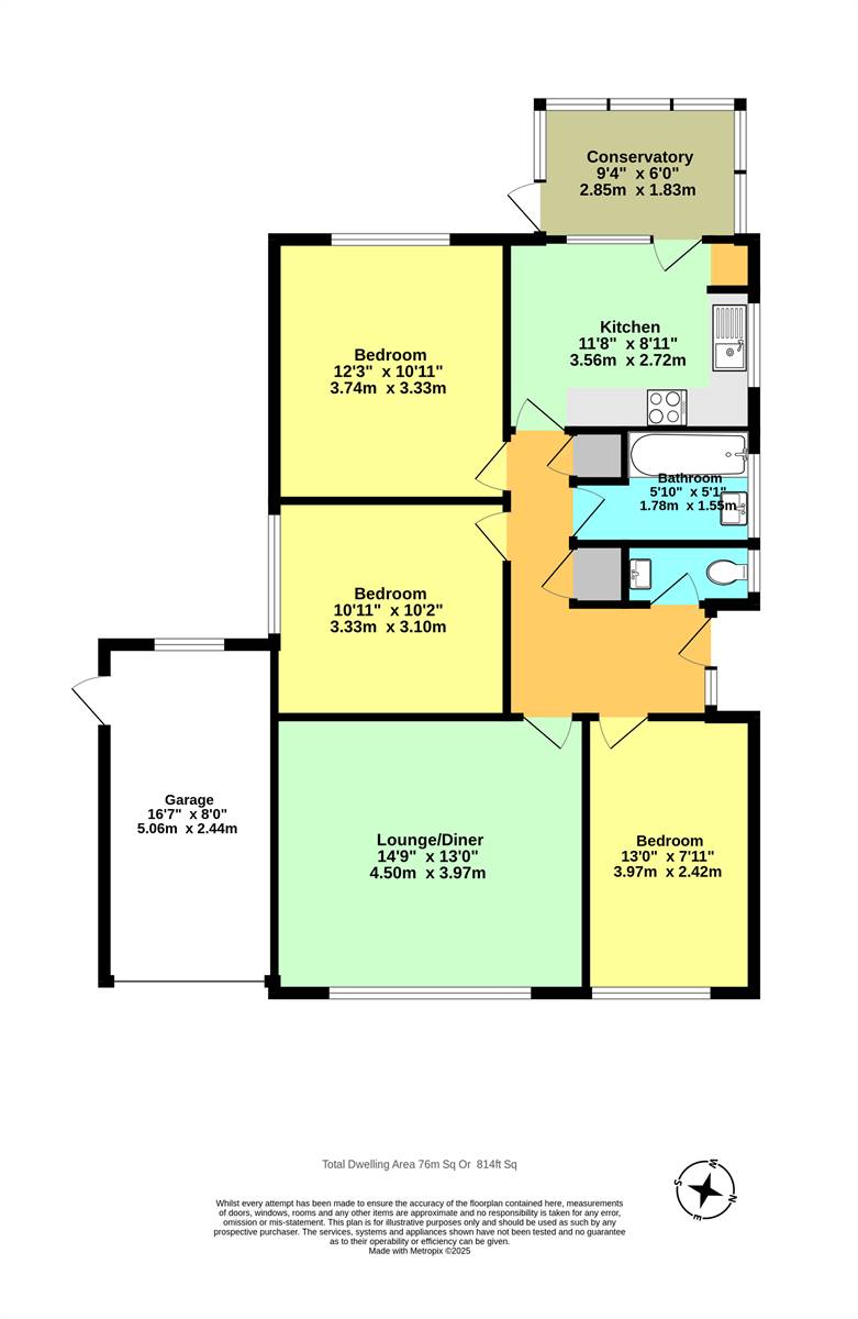
Entrance Hall   
Double glazed UPVC front entrance door. Radiator. Storage cupboard. Thermostat control for central heating. Access via loft ladder to insulated and partly boarded loft housing wall mounted gas boiler supplying hot water and central heating. Airing cupboard with shelves housing lagged hot water cylinder and immersion heater.

Cloakroom   
Suite comprising wall hung wash hand basin and low level WC. Local splash back tiling. Radiator. Frosted window to side.

Lounge/Diner   14' 9 x 13' 0 (4.5m x 3.97m)
Window to front overlooking garden. Radiator.

Kitchen   11' 8 x 8' 11 (3.56m x 2.72m)
Matching range of wall and base units. Inset single drainer stainless steel sink unit. Partially tiled walls. Slot in cooker. Washing machine. Window to side. Door to conservatory.

Conservatory   9' 4 x 6' 4 (2.85m x 1.83m)
UPVC and double glazed construction with patio door to rear garden.

Bedroom 1   12' 3 x 10' 11 (3.74m x 3.33m)
Window to rear overlooking garden. Radiator.

Bedroom 2   10' 11 x 10' 2 (3.33m x 3.1m)
Window to side. Radiator.

Bedroom 3   13' 0 x 7' 11 (3.97m x 2.42m)
Window to front overlooking garden. Radiator.

Bathroom   5' 10 plus recess x 5' 1 (1.78m x 1.55m)
Suite comprising panelled bath and pedestal wash hand basin. Radiator. Partially tiled walls. Frosted window to side.

Attached Garage   16' 7 x 8' 2 (5.06m x 2.44m)
Power and light. Personal door to side garden.

Front Garden   
Border wall to front. Mainly laid to lawn with shrubs and bushes. Driveway extending to the front of the garage providing off road parking.

Rear Garden   26' 0 x 38' 0 (7.93m x 11.59m)
Mainly laid to lawn with flower beds, bushes and shrubs. Apple trees. Paved patio area. Pedestrian side access. Enclosed with fencing.

Side Garden   
Mainly laid to lawn with flower beds, bushes and shrubs. Timber shed with light. Pedestrian side access. Enclosed with fencing.

Main Services
The following mains services are connected to the property electricity, water, gas, drainage and a telephone line. All services will be subject to the appropriate companies transfer conditions.

Heating
Central heating is provided by a gas fired boiler situated in the loft and hot water radiators as indicated in these particulars.

Windows
The windows are generally of UPVC double glazed sealed units.

Tenure
The property is to be sold Freehold with vacant possession.

Council Tax
We are advised by the Valuation Office that the property is currently within Council Tax Band D. The amount payable under tax band D for the year 2025/2026 is £2,303.25.

Viewing
Please ring us to make an appointment. We are open from 9am to 6pm Monday to Friday, 9am to 5pm Saturdays and by appointment only on Sundays.

Agent Notes
Kent Estate Agencies gives notice for themselves and for the sellers of the property, whose agents they are that any floor plans, plans or mapping and measurements are approximate quoted in metric with imperial equivalents. All are for general guidance only and whilst every attempt has been made to ensure accuracy, they must not be relied on. The measurements are provided in accordance with the R.I.C.S. Code of Measuring Practice 6th edition. We have not carried out a structural survey and the services, appliances and specific fittings have not been tested and therefore no guarantee can be given that they are in working order. Photographs are reproduced for general information and it must not be inferred that any item shown is included with the property. Prospective purchasers or lessees should seek their own professional advice. Kent Estate Agencies retain the copyright in all advertising material used to market this property. No person in the employment of Kent Estate Agencies has any authority to make any representation or warranty whatever in relation to this property. Purchase prices, rents or other prices quoted are correct at the date of publication and, unless otherwise stated, exclusive of VAT. For a free valuation of your property contact the number on this brochure. Printed 24th September 2025

Important Information

  • This is a Freehold property.

Property Ref: 57376_3BBCDC

Share:

Similar Properties

Palace Close, Tankerton, Whitstable

2 Bedroom Semi-Detached Bungalow | £410,000

Nestled in a sought-after, tucked-away cul-de-sac, this delightful semi-detached bungalow is a true haven for garden ent...

Ellis Road, Tankerton, Whitstable

2 Bedroom Semi-Detached Bungalow | £400,000

Situated in a sought-after central Tankerton location, this semi-detached bungalow is offered with no onward chain and i...

Castle Road, Tankerton, Whitstable

3 Bedroom Semi-Detached House | £400,000

This semi-detached house, offered for sale with no upward chain, boasts a great central location. The accommodation incl...

Palace Close, Tankerton, Whitstable

2 Bedroom Semi-Detached Bungalow | £415,000

This semi-detached bungalow is tucked away in a peaceful cul-de-sac offering bright and airy accommodation. The property...

Linden Avenue, Whitstable

3 Bedroom Semi-Detached House | Guide Price £425,000

Positioned in a quiet elevated location, this well-proportioned semi-detached house offers good size living accommodatio...

Brook Road, Tankerton, Whitstable

2 Bedroom Detached Bungalow | Guide Price £425,000

Nestled in a sought-after location, this detached bungalow is a rare gem offering a blend of modern comfort and future p...

Kent Estate Agencies (Tankerton)

Tankerton Road, Tankerton, Kent, CT5 2AH

01227 274220

How much is your home worth?

Use our short form to request a valuation of your property.

Request a Valuation

Mortgage Calculator

Amount Borrowed: £
Total Amount Repayable: £
Total Monthly Payment: £
©2025 The Guild of Property Professionals. All rights reserved. Terms and Conditions | Privacy Policy | Cookie Policy | Complaints Policy | Members Login
The Guild of Property Professionals Trading Address: 121 Park Lane, London W1K 7AG. GPEA Limited. Registered in England & Wales.  Company No: 02819824.  Registered Office Address: 2 St. Stephen's Court, St. Stephen's Road, Bournemouth, Dorset, England, BH2 6LA.  VAT Registration No: 576 8795 61
Book a Property Valuation Update Cookies Preferences