Sheffield Road, Wymondham, NR18 0HS

Offers in region of
£290,000

4 Bedroom Semi-Detached House for sale in Wymondham

1 4 1
  • Deceptively spacious 3/4 bedroom semi detached bungalow
  • Offering approximately 1,000 sq ft of living space
  • Sitting on a generous 115ft x 30ft plot with 45ft front garden
  • Single en bloc garage 16ft 4in x 9ft 8in parking for two cars
  • Well presented throughout with beautiful well stocked gardens
  • Walking distance from local shops and sought after Primary School with Outstanding ofsted
  • Minutes from the historic town centre of Wymondham with all its amenities
  • Including regular bus and rail services to Norwich and Cambridge
  • Easy access to the main A11 for those commuting by road
  • See our full online listing for further details including flood risk, broadband speed and other material information.

 


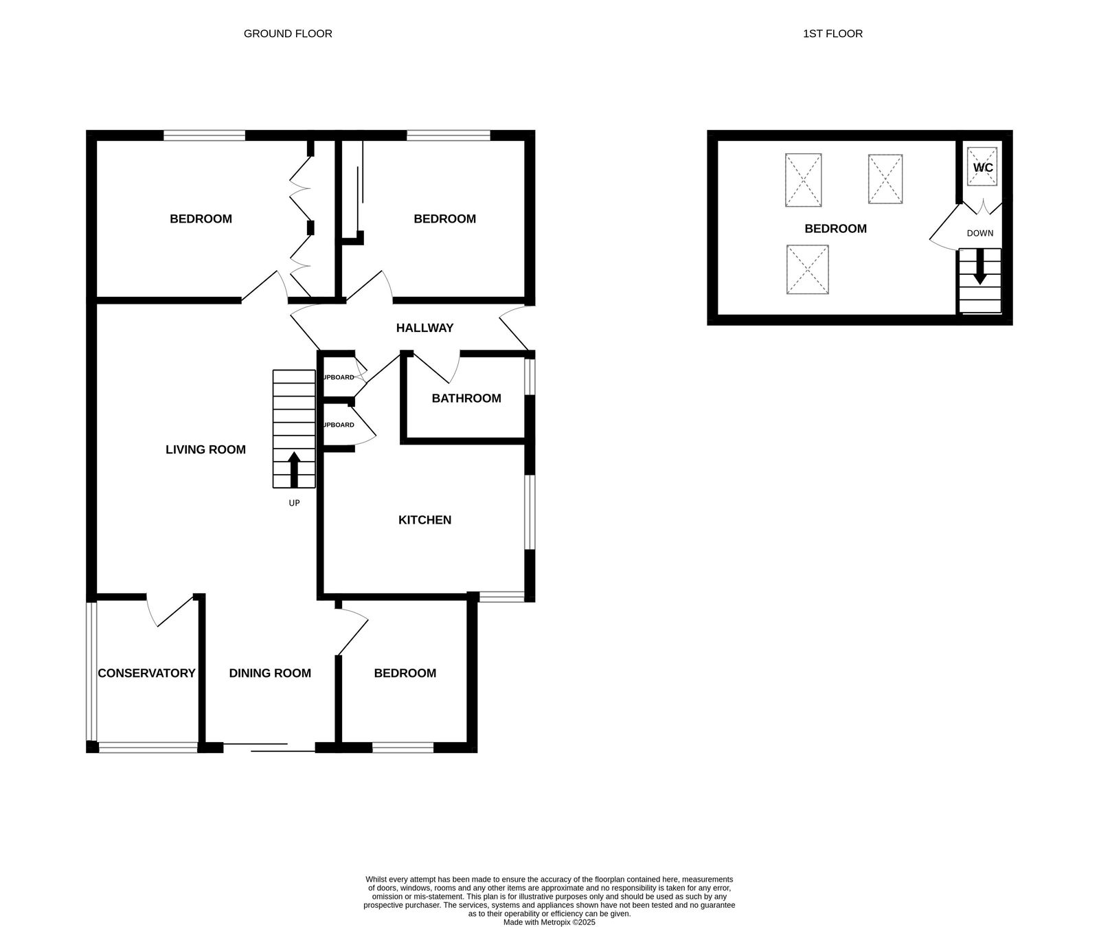
Deceptively spacious and well-maintained 3/4 bedroom semi-detached bungalow offering approximately 1,000 sq. ft. of versatile living accommodation, perfectly positioned on a generous 115ft x 30ft plot with beautifully stocked and mature gardens.


The ground floor features an inviting entrance hall, a well-appointed kitchen/breakfast room, a separate dining room, a light-filled conservatory, and a flexible office space that could easily serve as a fourth bedroom. Bedrooms one and two benefit from fitted wardrobes, while a further double bedroom is located on the first floor, providing a great retreat or guest room.


Deceptively spacious and well-maintained 3/4 bedroom semi-detached bungalow offering approximately 1,000 sq. ft. of versatile living accommodation, perfectly positioned on a generous 115ft x 30ft plot with beautifully stocked and mature gardens.


The ground floor features an inviting entrance hall, a well-appointed kitchen/breakfast room, a separate dining room, a light-filled conservatory, and a flexible office space that could easily serve as a fourth bedroom. Bedrooms one and two benefit from fitted wardrobes, while a further double bedroom is located on the first floor, providing a great retreat or guest room.


Tenure: Freehold   EPC: TBC    Council Tax: B


Entrance Hall - 3.68m x 1.07m (12'1" x 3'6")


Kitchen/Breakfast Room - 3.68m x 1.83m (12'0" x 6'0")


Separate Dining Room - 2.74m x 2.24m (9'0" x 7'4")


Living Room - 4.88m x 4.06m (16'0" x 13'4")


Conservatory - 2.01m x 1.63m (6'7" x 5'4")


Study / Bedroom Four - 2.46m x 2.31m (8'1" x 7'7")


Bedroom One with fitted wardrobes - 3.73m x 2.62m (12'3" x 8'7")


Bedroom Two with fitted wardrobes - 3.45m x 2.72m (11'4" x 8'11")


Landing


Bedroom Three - 3.18m x 3.02m (10'5" x 9'11")


 


Outside


Plot Size - 35.05m x 9.14m (115'0" x 30'0")


Front Garden - 13.72m x 9.14m (45'0" x 30'0")


Rear Garden - 10.67m x 9.14m (35'0" x 30'0")


Garage en bloc - 4.98m x 2.95m (16'4" x 9'8")


Parking for 2/3 cars


 


AGENT’S NOTES -


Planning :  Details, if any, can be found on the South Norfolk Council Planning website.


Covenants, Rights and Restrictions:  Please enquire with the selling agents for any information.


Broadband :  Ultrafast FTTP. See Ofcom checker and Openreach website for more details.


Mobile phone :  See Ofcom checker for coverage details.


Flood risk :  Very Low risk surface, rivers and seas according to Gov.uk website


Services :  Mains services connected


Local authority :  Norfolk County Council and South Norfolk Council


Council Tax Band :  B


Tenure : Freehold 


EPC : D

Important Information

  • This is a Freehold property.
  • This Council Tax band for this property is: B

Property Ref: 680_1148786

Share:

Similar Properties

Burdock Close, Wymondham, NR18

4 Bedroom End of Terrace House | £290,000

Moneyproperties bring to market this well-presented three storey town house offering approximately 1200sq ft of living s...

Velvet Close, Wymondham, NR18

3 Bedroom Semi-Detached House | Offers in region of £285,000

Moneyproperties are delighted to present this modern three-bedroom semi-detached home, built just three years ago and of...

Station Road, Spooner Row, NR18

3 Bedroom Semi-Detached House | Offers in region of £280,000

Moneyproperties are thrilled to be marketing this spacious three-bedroom semi-detached family home located in the popula...

Pople Street, Wymondham, NR18

3 Bedroom Semi-Detached House | Offers in region of £300,000

Moneyproperties are delighted to market this well-presented three-bedroom semi detached house within walking distance to...

Swallow Drive, Wymondham, NR18

3 Bedroom Semi-Detached House | Offers Over £300,000

*Guide price £300,000-£325,000* Moneyproperties bring to market this immaculately presented three-bedroom semi-detached...

Sycamore Avenue, Wymondham, Norfolk , NR18 0HF

4 Bedroom Detached House | Offers in region of £320,000

Moneyproperties are pleased to present this spacious five-bedroom home, featuring three bedrooms on the first floor and...

Money Properties (Wymondham)

17/18 Market Place, Wymondham, Norfolk, NR18 0AX

01953 423 006

How much is your home worth?

Use our short form to request a valuation of your property.

Request a Valuation

Mortgage Calculator

Amount Borrowed: £
Total Amount Repayable: £
Total Monthly Payment: £
©2025 The Guild of Property Professionals. All rights reserved. Terms and Conditions | Privacy Policy | Cookie Policy | Complaints Policy | Members Login
The Guild of Property Professionals Trading Address: 121 Park Lane, London W1K 7AG. GPEA Limited. Registered in England & Wales.  Company No: 02819824.  Registered Office Address: 2 St. Stephen's Court, St. Stephen's Road, Bournemouth, Dorset, England, BH2 6LA.  VAT Registration No: 576 8795 61
Book a Property Valuation Update Cookies Preferences