Schoolhouse, Kenmore, Aberfeldy

Offers in region of
£650,000

4 Bedroom Detached House for sale in Aberfeldy

4
  • Attic
  • Cloakroom
  • Double Glazing
  • Drive
  • Ensuite Shower
  • Fireplace
  • Fitted Bathroom
  • Fitted Kitchen
  • Garage
  • Garden

A Rare Highland Retreat on the Shores of Loch Tay
Presented by Abbey Forth Property.

Set against the breathtaking backdrop of Loch Tay and nestled in the peaceful village of Kenmore, The Schoolhouse is a remarkable and versatile property - a perfect family haven, a luxurious weekend getaway, or a standout opportunity for a bed & breakfast or Airbnb business.
From its elegant interiors to the uninterrupted lochside views, this home is designed to impress. With four en-suite bedrooms, generous living spaces, and high-end finishes throughout, this property offers both luxury and comfort in equal measure.

A Home of Character and Contemporary Style
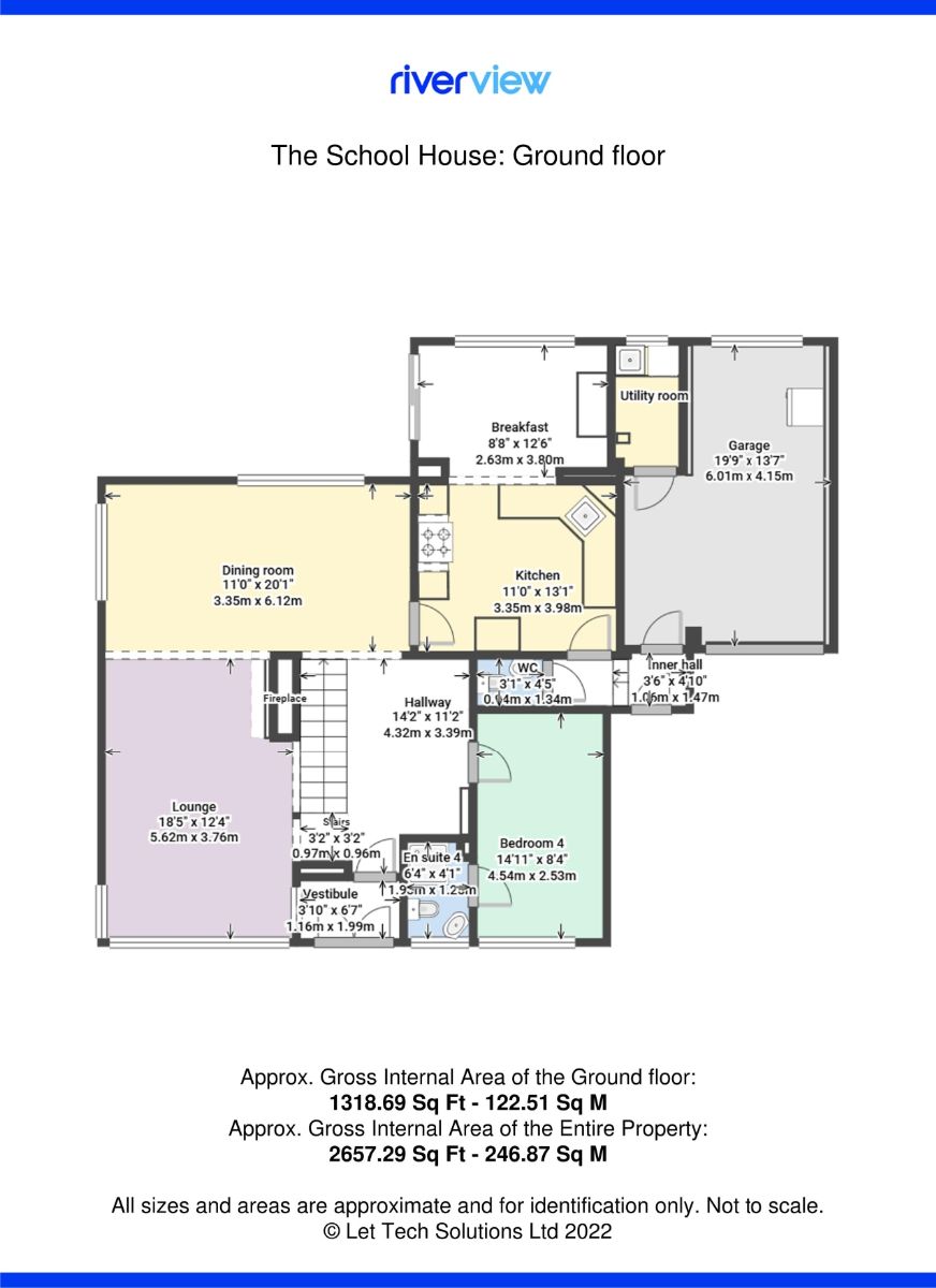
The Schoolhouse stands proudly on Pier Road, offering an enviable position just steps from the water's edge. A welcoming entrance porch leads into a spacious reception hallway, complete with a sweeping staircase that sets the tone for the elegant design found throughout.
The heart of the home is the open-plan lounge and dining area, where a striking square bay window frames stunning views over Loch Tay. A wood-burning stove sits at the centre, creating a warm, inviting atmosphere - perfect for relaxing evenings or entertaining guests.
The stylish kitchen is fully equipped with integrated and free-standing appliances, including a feature range cooker. There's ample space for informal dining and direct access to the rear garden, offering convenience for indoor-outdoor living.
Also on the ground floor is a double bedroom with en-suite, a cloakroom, and a generous garage complete with light, power, and a separate utility room.
Upstairs, the principal bedroom is a true showstopper - a light-filled sanctuary with dual-aspect views and French doors leading out to a private balcony overlooking the loch. This room also features a well-appointed en-suite bathroom and excellent storage. Two additional en-suite double bedrooms complete the upper level.

Outdoor Living & Entertaining
The terraced garden and raised patio have been landscaped for low maintenance while still offering wonderful outdoor entertaining space. Whether you're soaking in the views with a morning coffee or enjoying an alfresco dinner at sunset, this space is made for making memories.

At a Glance
* 4 Double Bedrooms (All En-Suite)
* 2 Reception Rooms
* Private Balcony with Loch Views
* Landscaped Garden with Artificial Lawn & Raised Terrace
* Garage with Utility Room
* High-Spec Interior Finishes
* Double Glazing & Electric Heating
* Ample Private Parking
* Council Tax Band: F

Location - Welcome to Kenmore
Set at the mouth of the River Tay as it flows from Loch Tay, the picturesque village of Kenmore is one of Highland Perthshire's most desirable destinations. Surrounded by forested hills and dramatic mountain peaks, the village is rich in both history and natural beauty.
Kenmore offers a blend of rural tranquillity and leisure lifestyle with a marina, Taymouth Castle and Golf Estate, boutique hotels, restaurants, a beach, playing fields, and holiday park all within walking distance. Outdoor lovers can enjoy everything from sailing, kayaking, and fishing to hiking and Munro-bagging, with Ben Lawers and Schiehallion both under 30 minutes away.
Just 10 minutes away, the bustling town of Aberfeldy provides a full range of amenities including shops, cafes, schools, and healthcare.

Travel & Nearby Points of Interest
* Aberfeldy - 10 mins
* Perth - 50 mins
* Taymouth Marina - 2 mins by car / 9 mins walk
* Taymouth Castle Estate & Golf - 5 mins by car / 20 mins walk
* Gleneagles - 1 hour
* Edinburgh Airport - 1 hour 30 mins
* Glasgow Airport - 1 hour 50 mins
* A9 - 25 mins
* Ben Lawers - 24 mins / Schiehallion - 28 mins

In Summary
Whether you're searching for a dream home, a business venture, or a peaceful lifestyle change, The Schoolhouse offers something truly special. With its unrivalled location, high-spec interiors, and scenic surroundings, this is a property that speaks to the heart.
Early viewing is highly recommended.

Arrange a Viewing.
Viewings are strictly by appointment.
Contact Abbey Forth Property - Sales Team.

Council Tax Band: F (Perth & Kinross)
Tenure: Freehold
Parking options: Driveway, Garage
Garden details: Private Garden, Terrace
Electricity supply: Mains
Heating: Electric
Water supply: Mains
Sewerage: Mains

Important Information

  • This is a Freehold property.

Property Ref: 463564_RS0686

Share:

Similar Properties

3 The Sheiling, Cairneyhill, Dunfermline

4 Bedroom Detached House | Offers Over £449,995

EXCEPTIONAL 4 BEDROOM DETACHED VILLA WITHIN AN EXCLUSIVE RESIDENTIAL ESTATE.Hall, Lounge, WC, Kitchen/dining room, Utili...

Flat 4, 3 Kinauld Dell, Currie, Edinburgh, EH RG, Currie

3 Bedroom Flat | Offers Over £435,000

IMPRESSIVE 3 BEDROOM APARTMENT ON THE WATER OF LEITH.High Specification. Tranquil Setting. Exclusive Development.Secure...

61 Dunnock Road, Dunfermline

4 Bedroom Detached House | Offers Over £359,000

IMMACULATE SPACIOUS 4 BED DETACHED VILLA WITHIN QUIET RESIDENTIAL SETTING.Hall, Lounge, Kitchen/Dining Rm, WC, Office.Ma...

Braemar, Largo Road, KY8 4TB

5 Bedroom Detached House | Offers in region of £675,000

CHARACTERFUL VILLA IN PRIME COASTAL GOLFING LOCATIONPerfect for golfers, lovers of period homes & coastal lifestyle this...

Abbey Forth Property Management Limited (Dunfermline)

5 Castle Court, Carnegie Campus, Dunfermline, Fife, KY11 8PB

01383 737 748

How much is your home worth?

Use our short form to request a valuation of your property.

Request a Valuation

Mortgage Calculator

Amount Borrowed: £
Total Amount Repayable: £
Total Monthly Payment: £
©2025 The Guild of Property Professionals. All rights reserved. Terms and Conditions | Privacy Policy | Cookie Policy | Complaints Policy | Members Login
The Guild of Property Professionals Trading Address: 121 Park Lane, London W1K 7AG. GPEA Limited. Registered in England & Wales.  Company No: 02819824.  Registered Office Address: 2 St. Stephen's Court, St. Stephen's Road, Bournemouth, Dorset, England, BH2 6LA.  VAT Registration No: 576 8795 61
Book a Property Valuation Update Cookies Preferences