Whittingham Road, Glanton, Alnwick, Northumberland

Offers Over
£325,000

2 Bedroom Detached Bungalow for sale in Alnwick

1 2 2
  • Building plot with implemented planning permission for a detached 3 bed house
  • Main cottage with period features
  • Stone built
  • Ensuite
  • Modernised
  • Wood burner
  • South facing garden
  • Driveway parking
  • Very well maintained

A unique home and garden with countryside views and with planning permission for a three bedroomed dwelling to the rear. Elizabeth Humphreys Homes are delighted to welcome to the market this stone-built 2 bedroomed detached cottage located in the Northumberland village of Glanton. The property benefits from a south facing front garden, off street parking, uPVC windows and a composite front door, a modern kitchen and bathrooms, oil central heating, super-fast fibre connection and all the other usual mains connections. This lovely home, nestled within the most tranquil environment, is a peaceful haven and a superb retreat to the countryside.

Glanton is situated in a valley, or Vale, above its neighbouring village of Whittingham. This picturesque village offers a wonderful sense of community and a welcoming public house. Whittingham hosts a primary school and a church, whilst the nearest shops are in Powburn. All other local facilities are in nearby Rothbury and Alnwick, the latter of which is 7.5 miles away. The village has easy access to the A697 allowing for travel to Newcastle and Edinburgh.

A couple of steps ascend to the front garden and a path leads to the front door which opens into an entrance hallway dividing left into the living area and right to the bedroom accommodation. The engineered oak flooring is stunning and continues into the lounge which creates a seamless transition between the different areas.

Inviting and spacious, the lounge is lovely and light and bright with a window, with a deep sill, taking advantage of the south facing views of the valley and trees beyond. There is a centrally placed fireplace, with a wooden mantle, housing a wood burner set upon a slate hearth which forms an attractive focal point enticing you to sit before it during the cooler months. There are two alcoves to either side of the fireplace, one being the location of the television point and other incorporating a doorway which leads to the kitchen.

The kitchen, with slate effect floor tiles illuminated beautifully by natural light entering from the south facing window, offers a good number of wall and base units with a cream shaker style door complemented by a contrasting solid wood work surface and white brick style tiling. There is a bowl and a half white sink with an integrated drainer to the side and a mixer tap above, a slimline dishwasher and a built-in chimney style extractor fan above a free-standing oven with a four-burner hob. There is space for a free-standing fridge freezer and plenty of room to sit and dine. An internal window is a lovely feature and allows further light to enter from the conservatory to the rear.

The inner hallway provides convenient access to the family bathroom, a storage room housing the oil boiler, and the conservatory.

The conservatory porch is a light and bright space which takes advantage of the glorious south facing views via its many windows. There are sliding doors which open out into the garden and the original stone wall forms a striking feature within the room itself. The room has been finished with matching slate effect tiles to those of the kitchen which creates a seamless transition between the different spaces.

The primary bedroom, with en-suite facilities, is beautifully light and bright with an alcove window overlooking the south facing front garden and the valley with trees beyond. This restful room can easily accommodate a king-sized bed and offers a built-in storage cupboard with rails and shelving. The space has been finished with neutral decoration allowing the easy addition of accent colour should you so wish and the original ceiling beam adds charm and character. The en-suite has been designed with a traditional look in keeping with the cottage décor and comprises a close coupled toilet with a push button behind, a large chrome heated towel rail, an extractor fan, a Heritage-style pedestal hand wash basin and a large shower cubicle with a water fall shower head and a separate shower head within behind a sliding door. The space is finished with brick style wet walling complemented by a grey slate effect tiled floor both of which create a crisp and fresh look.

Bedroom 2 is a good-sized double with a view to the rear of the property. This light and bright room offers a bank of fitted wardrobes in addition to offering plenty of space for further bedroom furniture. The neutral decoration also allows the easy addition of accent colour.

The family bathroom comprises a bath with a shower head over behind a pivot door, a chrome heated towel rail, a close coupled toilet with a push button behind and a pedestal hand wash basin. A window within the sloping roof and a window to the side allow for natural light and the space has been finished with grey tiling which works in harmony with the blue painted woodwork.

Externally, the south facing front garden is a wonderful country cottage style garden with a lawn framed by well-stocked borders. The space is secure to allow children and family pets to play safely and adjacent is the desirable gated off-street parking which leads to the area where the current owners have planning permission to construct a three-bedroom dwelling. Beyond this, there is a garden which is mainly laid to lawn with hedging and a stone wall perimeter. There is an outbuilding which is currently utilised as an outdoor office and a basement, accessed from the street to the front, offers further beneficial storage.

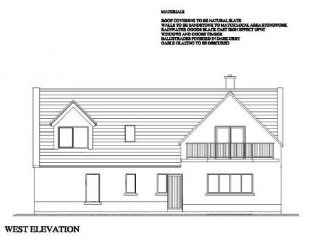
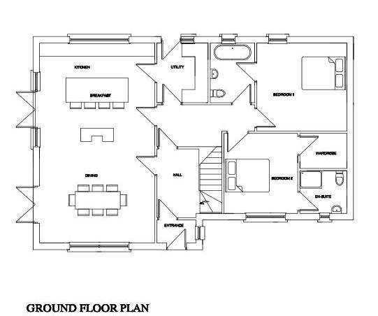
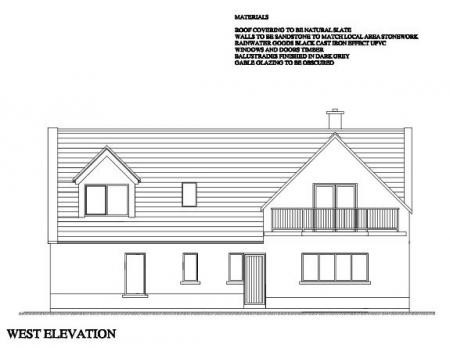
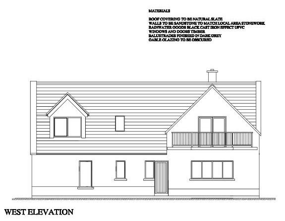
Building Plot House Description

Proposed 3 bedroom detached property in garden of 6 Whittingham Road, Glanton

This plot is stunning and is a once in a lifetime opportunity to realise your dream of settling in this area of outstanding natural beauty. Located in the Northumberland village of Glanton, this lovely 3 bedroomed family home, nestled within the most tranquil environment, is a peaceful haven and a superb retreat to the countryside.

With part foundations already in place, the front door opens into an entrance hallway with stairs ascending to the first floor and one main door leading to the kitchen-diner which extends the full width of the property and which showcases two sets of French doors which open to the garden at the side. Within this large and sociable space, there is plenty of room to sit and dine with family and friends whilst enjoying the lovely garden views. Leading from the kitchen-diner, a door opens into a secondary hallway which provides access to a utility room and ground floor bedroom accommodation.

The utility room is spacious allowing plenty of room for units and workable bench space. A door opens to the rear garden, and a second door returns into the kitchen-diner creating free flow of movement between the different spaces.

The primary bedroom, with en-suite shower room facilities, is a spacious double room with a window allowing for natural light and a built-in wardrobe offering excellent storage potential.

Bedroom 2 is another good-sized double room which has Jack and Jill access to the main bathroom which comprises a pedestal hand wash basin, a toilet and bath. A window allows for natural light.

Taking the stairs to the first floor, the landing opens out to a first floor living room and a double bedroom with en-suite facilities.

The living room boasts a walk-on balcony to both the front and rear in addition to a large floor to ceiling window which allows you to take full advantage of the stunning countryside views from this elevated position. A glorious addition to the property.

The double bedroom is spacious and the en-suite comprises a bath, a toilet and a hand wash basin. Access returns to the main hallway.

The property would be ideal for multi generational living or live in the cottage while you build the second property.

Tenure: Freehold
Council Tax Band: C £2232.46
EPC: F

“We are required by law to conduct anti-money laundering checks on all those selling or buying a property. Whilst we retain responsibility for ensuring checks and any ongoing monitoring are carried out correctly, the initial checks are carried out on our behalf by Lifetime Legal who will contact you once you have agreed to instruct us in your sale or had an offer accepted on a property you wish to buy. The cost of these checks is £60 (incl. VAT), which covers the cost of obtaining relevant data and any manual checks and monitoring which might be required. This fee will need to be paid by you in advance of us publishing your property (in the case of a vendor) or issuing a memorandum of sale (in the case of a buyer), directly to Lifetime Legal, and is non-refundable."

Important Note: These particulars, whilst believed to be accurate, are set out as a general guideline and do not constitute any part of an offer or contract. Intending purchasers should not rely on them as statements of representation of fact but must satisfy themselves by inspection or otherwise as to their accuracy. Please note that we have not tested any apparatus, equipment, fixtures, fittings or services including central heating and so cannot verify they are in working order or fit for their purpose. All measurements are approximate and for guidance only. If there is any point that is of particular importance to you, please contact us and we will try and clarify the position for you.

Important Information

  • This is a Freehold property.
  • This Council Tax band for this property is: C

Property Ref: NLW863549

Share:

Similar Properties

Lucker Road, Bamburgh, Northumberland

2 Bedroom Bungalow | Offers Over £325,000

Located in one of the most sought-after villages in Northumberland and within walking distance of the beach this propert...

Rochester Drive, Felton, Morpeth, Northumberland

3 Bedroom Detached House | Offers Over £325,000

A superb family home with no chain enjoying spacious living and a lovely open and leafy aspect to the front. Elizabeth H...

Old Manse Cottage, West Thirston, Morpeth, Northumberland

2 Bedroom Cottage | Offers Over £325,000

A beautiful property, offering a unique blend of period living with contemporary fixtures and fittings. Elizabeth Humphr...

Gloster Park, Amble

4 Bedroom Detached House | Offers in region of £350,000

A beautifully presented family home located on the much sought after and peaceful Gloster Park Estate in Amble. Elizabet...

Eastfield Hall, Eastfield Farm Cottages, Eastfield, Morpeth, Northumberland

2 Bedroom Cottage | £350,000

Unique in its design and boasting glorious views, this stunning property is your haven of peace and tranquillity. Elizab...

Mews Cottage, Park View, Alnwick, Northumberland

Cottage | Offers Over £350,000

A stunning stone-built property completely refurbished to an incredibly high standard offering styling contemporary livi...

Elizabeth Humphreys Homes (Morpeth)

Park Road, Swarland, Morpeth, Northumberland, NE65 9JD

01665 661170

How much is your home worth?

Use our short form to request a valuation of your property.

Request a Valuation

Mortgage Calculator

Amount Borrowed: £
Total Amount Repayable: £
Total Monthly Payment: £
©2026 The Guild of Property Professionals. All rights reserved. Terms and Conditions | Privacy Policy | Cookie Policy | Complaints Policy | Members Login
The Guild of Property Professionals Trading Address: 121 Park Lane, London W1K 7AG. GPEA Limited. Registered in England & Wales.  Company No: 02819824.  Registered Office Address: 2 St. Stephen's Court, St. Stephen's Road, Bournemouth, Dorset, England, BH2 6LA.  VAT Registration No: 576 8795 61
Book a Property Valuation Update Cookies Preferences