Thornton Close, Alresford, SO24 9FE

Shared Ownership
£175,000

2 Bedroom Not Specified for sale in Alresford

1 2 1
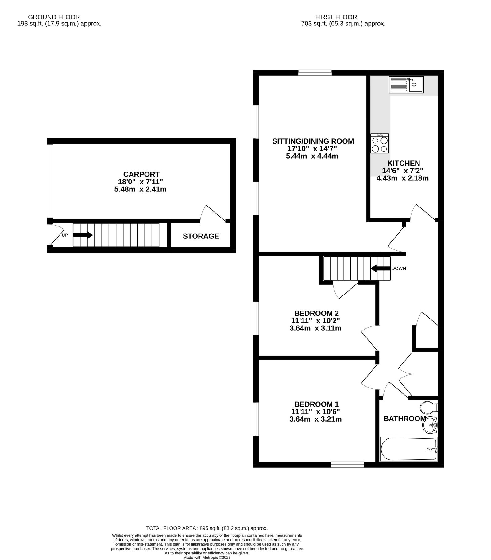
  • Spacious Coach House
  • Two Double Bedooms
  • Large, Dual Aspect Sitting/Dining Room
  • Quiet Location within Walking Distance of Town Centre
  • Fitted Kitchen
  • Two Allocated Parking Spaces
  • Leasehold with 107 Years Remaining
  • Based on a 50% share
  • Can be Staircased to 100% Ownership - Full Price £350,000

Offered for sale as a 50% share, this is a bright and spacious coach house situated in a quiet cul-de-sac surrounded by lots of greenery.  Within walking distance of the town centre, bus routes and schools. Stairs to the first floor landing leading to the accommodation including a large dual aspect sitting/dining room and kitchen/breakfast room with some integrated appliances.  Further along the landing are two good sized double bedrooms, the main room benefitting from dual aspect.  The second double bedroom has a storage cupboard.  The modern bathroom has shower over bath.  


The property benefits from a parking space in the carports underneath as well as another allocated space.  The carport has further storage under the stairs, and there is also extensive storage in the loft.


The property is available as a 100% share for £350,000. Based on a 50% share, the rent for the remaining 50% is £290pm, with service charge of £90pm.  Any buyer looking to purchase on a shared ownership basis will need to be assessed by the Housing Association according to their criteria.


Thornton Close is a modern development just off Grange Road in Alresford and has been thoughtfully designed with plenty of green spaces around. 


Alresford is a beautiful Georgian town known for its variety of independent shops, restaurants and inns located in stunning surroundings on the edge of the South Downs National Park. Attractions include the Watercress steam railway, schools for infant, junior and secondary education, several churches and an active and inclusive community. The cathedral city of Winchester is about 7 miles away and there is easy access to the south coast, the midlands and London via the road network. There is also mainline rail access to London from both Winchester and Alton. Southampton airport is only about half an hour away by car. 


SERVICES
We understand that all mains services are connected.


LOCAL AUTHORITY 
Winchester City Council
Council Tax Band: C


 

Important Information

  • This is a Freehold property.
  • This Council Tax band for this property is: C

Property Ref: 420_1210796

Share:

Similar Properties

Evelyn Mews, The Dean, Alresford

1 Bedroom Maisonette | Guide Price £175,000

A delightful first-floor maisonette located in a charming mews-style setting for the over 55's. Being located within a s...

Ellingham Close, Grange Road, Alresford

2 Bedroom Flat | Guide Price £175,000

A spacious first floor flat for the over 55's set in the popular Ellingham Close development, which is within walking di...

Broad Street, Alresford, Hampshire, SO24

5 Bedroom Townhouse | £6,500pcm

A rare opportunity to rent one of the finest homes in the historic town of Alresford, with history dating back as far as...

Ellingham Close, Grange Road, Alresford

2 Bedroom Flat | Guide Price £189,950

A spacious two bedroom ground floor flat for the over 55's set in the popular Ellingham Close development, which is with...

Ellingham Close, Grange Road, Alresford

2 Bedroom Flat | Guide Price £189,950

A well presented spacious two bedroom ground floor flat for the over 55's set in the popular Ellingham Close development...

Ellingham Close, Grange Road, Alresford

2 Bedroom Ground Floor Flat | £189,950

A spacious two bedroom ground floor flat for the over 55's set in the popular Ellingham Close development, which is with...

Hellards Estate Agents (Alresford)

11 Broad Street, Alresford, Hampshire, SO24 9AR

01962 736333

How much is your home worth?

Use our short form to request a valuation of your property.

Request a Valuation

Mortgage Calculator

Amount Borrowed: £
Total Amount Repayable: £
Total Monthly Payment: £
©2025 The Guild of Property Professionals. All rights reserved. Terms and Conditions | Privacy Policy | Cookie Policy | Complaints Policy | Members Login
The Guild of Property Professionals Trading Address: 121 Park Lane, London W1K 7AG. GPEA Limited. Registered in England & Wales.  Company No: 02819824.  Registered Office Address: 2 St. Stephen's Court, St. Stephen's Road, Bournemouth, Dorset, England, BH2 6LA.  VAT Registration No: 576 8795 61
Book a Property Valuation Update Cookies Preferences