Bridge Road, Alresford

£495,000

2 Bedroom Terraced House for sale in Alresford

2 2 1
  • No Onward Chain
  • Character Terraced Home
  • Off-Street Parking for 3-4 Cars
  • Two Reception Rooms
  • Two Bedrooms plus Loft Room
  • Good Sized Rear Garden
  • Easy Access to Alresford Town Centre, Shops and Schools
  • Further Potential to Extend/Improve (STPP)

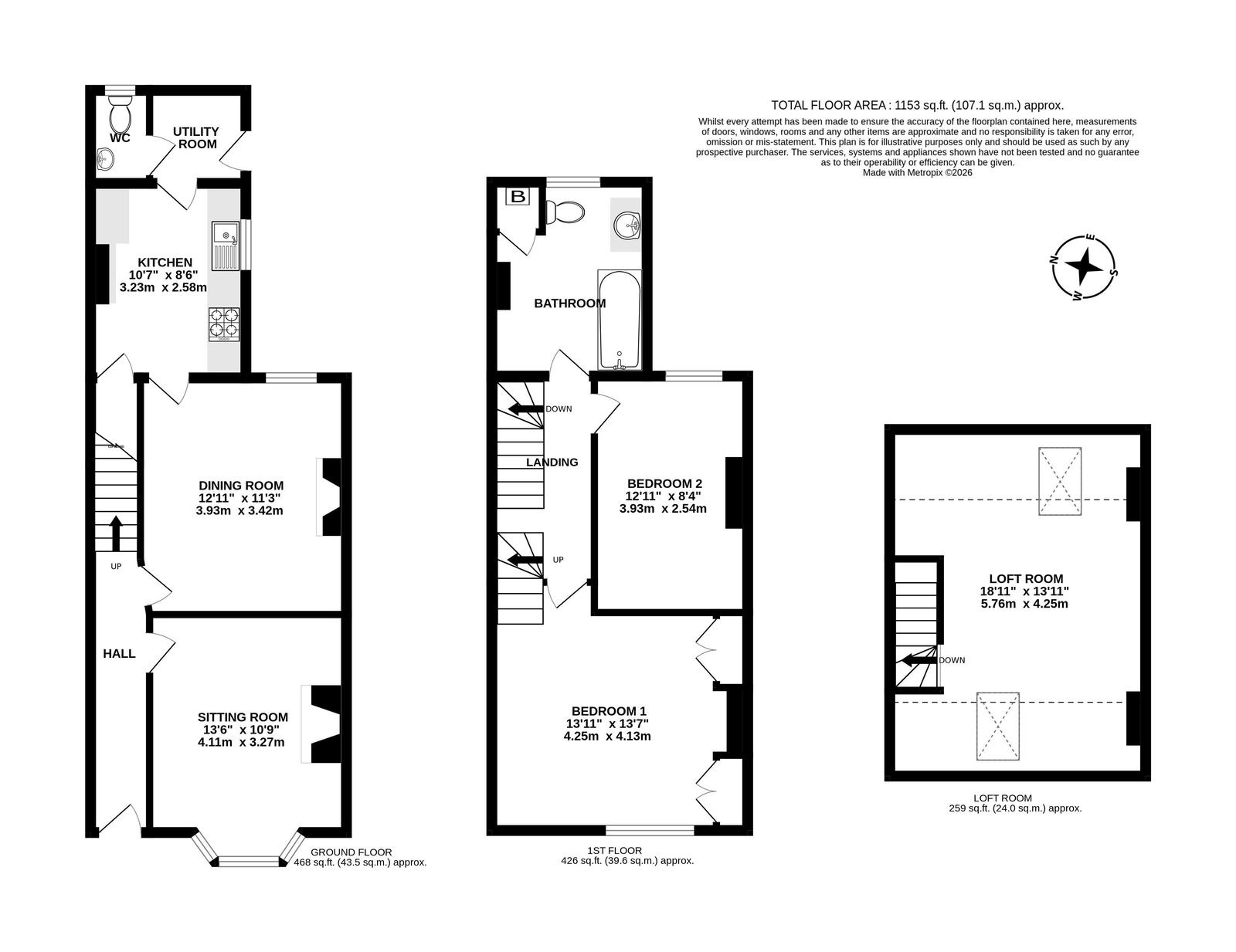
This spacious Edwardian home, maintaining character features, is ideally positioned within easy reach of Alresford’s town centre and its excellent range of local amenities. The property offers further potential to extend and enhance, subject to the necessary planning consents.


The ground floor features a charming sitting room with an original fireplace and bay window, a further reception room, a fitted kitchen, and a rear lobby with cloakroom and direct access to the garden.


On the first floor, the principal bedroom to the front is particularly generous and filled with natural light, again featuring a fireplace. A second double bedroom overlooks the rear garden, complemented by a well-proportioned family bathroom. Stairs rise to q loft room, which has Velux windows.


Outside, the delightful rear garden includes a substantial terrace, a lawned area with summerhouse, and the benefit of rear access. To the side of the property is a dedicated parking area providing off-street parking for several vehicles.


Alresford is a highly regarded Georgian market town, celebrated for its independent shops, restaurants, and traditional inns, and is set on the edge of the South Downs National Park. Excellent transport links include easy access to Winchester (approximately 7 miles), mainline rail services to London from Winchester and Alton, and Southampton Airport. The town also offers well-regarded local schools and a thriving community atmosphere.


SERVICES
We understand that mains gas, drainage, electricity, and water are connected.


LOCAL AUTHORITY 
Winchester City Council
Council Tax Band: C


DIRECTIONS
From the centre of Alresford proceed west along The Avenue, in the direction of Winchester. After Perins School, turn left into Bridge Road. No. 2 will be found a little way along on the left hand side, as indicated by our For Sale board.


 

Important Information

  • This is a Freehold property.
  • This Council Tax band for this property is: D

Property Ref: 420_1249581

Share:

Similar Properties

The Pastures, Cheriton

3 Bedroom Semi-Detached House | £495,000

A spacious three bedroom semi-detached property with a very large garden offering scope for extension and improvement (s...

Burydown Mead, North Waltham

3 Bedroom Detached House | £485,000

A three bedroom detached home in the pretty and sought after village of North Waltham.  Presented to a very high standar...

Dorian Grove, Alresford

3 Bedroom Semi-Detached House | £475,000

A deceptively spacious semi-detached house with driveway parking in a popular cul-de-sac location. This property has bee...

Oak Hill, Alresford

2 Bedroom Bungalow | £545,000

A spacious two bedroom bungalow with pretty gardens, garage & parking located in a popular road within walking distance...

Preshaw Estate, Upham

3 Bedroom Semi-Detached House | Guide Price £545,000

A pretty semi-detached cottage on the exclusive Preshaw Village country estate, midway between Winchester, Petersfield,...

South Road, Alresford

2 Bedroom Detached House | £550,000

A charming detached character cottage favourably positioned on the western fringes of the Town. The cottage offers a spa...

Hellards Estate Agents (Alresford)

11 Broad Street, Alresford, Hampshire, SO24 9AR

01962 736333

How much is your home worth?

Use our short form to request a valuation of your property.

Request a Valuation

Mortgage Calculator

Amount Borrowed: £
Total Amount Repayable: £
Total Monthly Payment: £
©2026 The Guild of Property Professionals. All rights reserved. Terms and Conditions | Privacy Policy | Cookie Policy | Complaints Policy | Members Login
The Guild of Property Professionals Trading Address: 121 Park Lane, London W1K 7AG. GPEA Limited. Registered in England & Wales.  Company No: 02819824.  Registered Office Address: 2 St. Stephen's Court, St. Stephen's Road, Bournemouth, Dorset, England, BH2 6LA.  VAT Registration No: 576 8795 61
Book a Property Valuation Update Cookies Preferences