South Road, Alresford

£550,000
SSTC
This property listing is now SSTC

2 Bedroom Detached House for sale in Alresford

1 2 1
  • Spacious Sitting Room/Dining Room
  • Kitchen with a Door to The Rear Garden
  • White Bathroom suite on the Ground Floor
  • Two Double and One Single Bedroom
  • Parking to the Front Through to a Large Rear Garden
  • Garden Room/ Office and Storage
  • No Onward Chain

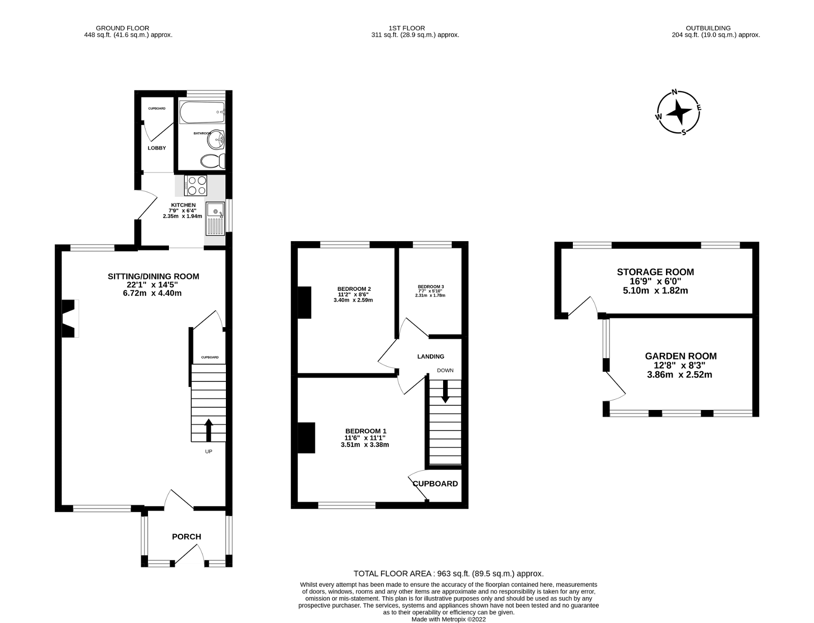
A charming detached character cottage favourably positioned on the western fringes of the Town. The cottage offers a spacious open planned sitting room/ dining room, kitchen and bathroom on the ground floor and two double and one single bedroom on the first floor. The outside space has scope for an extension (STPP) with a gated front driveway through to rear gardens with a detached sun room/ storage. There is no onward chain The front entrance door opens to the glazed front porch, with a further door to the open planned sitting room/ dining room and stairs to the first floor. The dining area opens to a kitchen, which is fitted with a range of wall and base units, work surfaces that incorporates a single drainer sink unit with mixer tap, there is a fitted gas hob and electric oven, a window to the side and a door to the rear garden. The kitchen opens up to the rear and leads through to the rear lobby, providing access to the white bathroom suite which comprises of a panel enclosed bath, wash hand basin and a WC. On the first floor there are two double bedrooms and a further single bedroom. The outside spaces offers a side access with a gate to the front and side driveway, a deck area, lawn area and to the rear there is a detached sun room with heating and windows overlooking the garden and large storage room to the rear Alresford is a beautiful Georgian town known for its variety of independent shops, restaurants and inns located in stunning surroundings on the edge of the South Downs National Park. Attractions include the Watercress steam railway, schools for infant, junior and secondary education, several churches and an active and inclusive community. Highlights in the calendar include the annual Watercress Festival in May and the Agricultural Show in September. The cathedral city of Winchester is about 7 miles away and there is easy access to the south coast, the midlands and London via the road network. There is also mainline rail access to London from both Winchester and Alton. Southampton airport is only about half an hour away by car.

SERVICES We understand that all mains services are connected.

LOCAL AUTHORITY INFORMATION Winchester City Council Council Tax Band: E

Important Information

  • This is a Freehold property.
  • This Council Tax band for this property is: E

Property Ref: 265041

Share:

Similar Properties

Langtons Court, Sun Lane, Alresford

4 Bedroom Terraced House | Guide Price £550,000

No onward chain - a really spacious, modern house offering plenty of versatile accommodation for family living and enter...

Hasted Drive, Alresford

3 Bedroom End of Terrace House | £550,000

A very well-presented family home, which has been extended on the ground floor to create an amazing open-plan kitchen an...

Preshaw Estate, Upham

3 Bedroom Semi-Detached House | Guide Price £545,000

A pretty semi-detached cottage on the exclusive Preshaw Village country estate, midway between Winchester, Petersfield,...

Oak Hill, Alresford

2 Bedroom Bungalow | £595,000

A well-presented, detached bungalow located in a quiet part of Oak Hill, with a secluded, west-facing garden, driveway p...

Orchard Dean, The Dean, Alresford

3 Bedroom Terraced House | £599,950

A light and airy home in a small development for the over 55's situated in the centre of the town. Braeburn Cottage occu...

April Cottage, Bramdean, Alresford

3 Bedroom Cottage | £599,950

A charming 17th century character cottage with original features and a lovely timber-framed garden room. April Cottage i...

Hellards Estate Agents (Alresford)

11 Broad Street, Alresford, Hampshire, SO24 9AR

01962 736333

How much is your home worth?

Use our short form to request a valuation of your property.

Request a Valuation

Mortgage Calculator

Amount Borrowed: £
Total Amount Repayable: £
Total Monthly Payment: £
©2026 The Guild of Property Professionals. All rights reserved. Terms and Conditions | Privacy Policy | Cookie Policy | Complaints Policy | Members Login
The Guild of Property Professionals Trading Address: 121 Park Lane, London W1K 7AG. GPEA Limited. Registered in England & Wales.  Company No: 02819824.  Registered Office Address: 2 St. Stephen's Court, St. Stephen's Road, Bournemouth, Dorset, England, BH2 6LA.  VAT Registration No: 576 8795 61
Book a Property Valuation Update Cookies Preferences