Beech Road, Alresford

£540,000
Under Offer
This property listing is now Under Offer

3 Bedroom Semi-Detached House for sale in Alresford

2 3 2
  • Extended Three Double Bedroom Home
  • West Facing Garden
  • Beautifully Presented Throughout
  • Two Bathrooms
  • Garage & Driveway Parking
  • Convenient Location Within Easy Reach of Town Centre & Shops

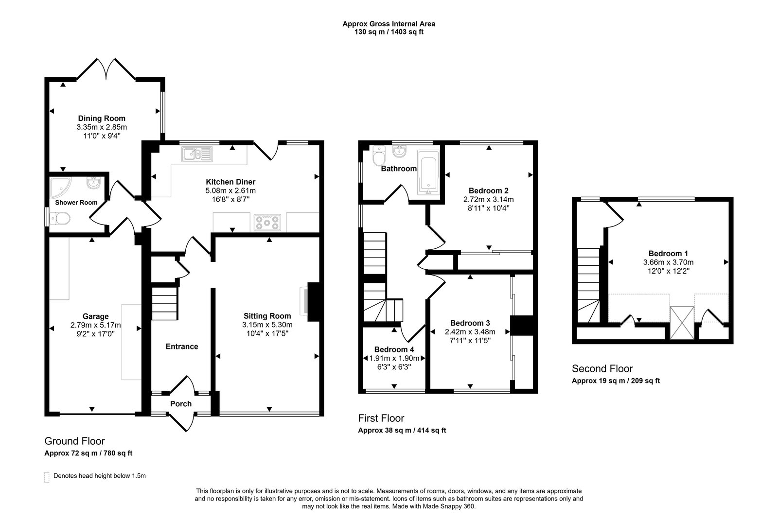
Set in a popular and quiet cul-de-sac within easy reach of Alresford Town Centre, a three bedroom semi-detached home presented in immaculate condition throughout.  Extended to offer spacious and light accommodation throughout, with a very pretty, West facing garden.  The entrance hall leads through to the good sized sitting room with feature fireplace.  A spacious kitchen/breakfast room with door to the rear garden and a rear extension provides a further reception room, currently used as a dining room as well as a downstairs shower room and access to the garage.

Upstairs on the first floor, two good sized double bedrooms, both with fitted storage and a study as well as a family bathroom. On the second floor, the loft has been converted to offer another double bedroom with gorgeous views to the West and the countryside beyond. 

The garden is laid mainly to lawn with a covered patio providing shelter and a lovely seating area.  Raised beds, lawn and a shed to the rear along with a further seating area at the rear of the garden that catches the morning sun.

To the front, a mature and attractive front garden and the block paved driveway provides ample off-road parking and there is also a single garage. 

SERVICES
Mains gas with gas fired central heating, mains electricity, water and drainage.

LOCAL AUTHORITY
Winchester City Council
Council Tax Band D

DIRECTIONS
From our offices in Broad Street, turn right onto West Street and then left into Jacklyns Lane.  Turn left into Nursery Road and then right into Beech Road and the house is to be found on your right.

What3words: ///punctuate.directs.rezoning

 

Important Information

  • This is a Freehold property.
  • This Council Tax band for this property is: D

Property Ref: 1436669

Share:

Similar Properties

Burydown Mead, North Waltham

3 Bedroom Detached House | £485,000

A three bedroom detached home in the pretty and sought after village of North Waltham.  Presented to a very high standar...

Dorian Grove, Alresford

3 Bedroom Semi-Detached House | £475,000

A deceptively spacious semi-detached house with driveway parking in a popular cul-de-sac location. This property has bee...

The Pastures, Cheriton

3 Bedroom Semi-Detached House | £475,000

A spacious three bedroom semi-detached property with a very large garden offering scope for extension and improvement (s...

Preshaw Estate, Upham

3 Bedroom Semi-Detached House | Guide Price £545,000

A pretty semi-detached cottage on the exclusive Preshaw Village country estate, midway between Winchester, Petersfield,...

South Road, Alresford

2 Bedroom Detached House | £550,000

A charming detached character cottage favourably positioned on the western fringes of the Town. The cottage offers a spa...

Hasted Drive, Alresford

3 Bedroom End of Terrace House | £550,000

A very well-presented family home, which has been extended on the ground floor to create an amazing open-plan kitchen an...

Hellards Estate Agents (Alresford)

11 Broad Street, Alresford, Hampshire, SO24 9AR

01962 736333

How much is your home worth?

Use our short form to request a valuation of your property.

Request a Valuation

Mortgage Calculator

Amount Borrowed: £
Total Amount Repayable: £
Total Monthly Payment: £
©2026 The Guild of Property Professionals. All rights reserved. Terms and Conditions | Privacy Policy | Cookie Policy | Complaints Policy | Members Login
The Guild of Property Professionals Trading Address: 121 Park Lane, London W1K 7AG. GPEA Limited. Registered in England & Wales.  Company No: 02819824.  Registered Office Address: 2 St. Stephen's Court, St. Stephen's Road, Bournemouth, Dorset, England, BH2 6LA.  VAT Registration No: 576 8795 61
Book a Property Valuation Update Cookies Preferences