Cedar Court, Hulland Ward, Ashbourne

Offers in region of
£675,000
SSTC
This property listing is now SSTC

6 Bedroom Detached House for sale in Ashbourne

2 6 3
  • Highly Appealing & Spacious Versatile Six Bedroom - Three Storey - Detached Home
  • Private Cul-De-Sac Location - Far Reaching Views to Rear
  • Featured Entrance Hall with Central Staircase & First Floor Landing with Glass Balustrade
  • Lounge with Bi-folding Doors to Landscaped Gardens & Dining Room or Family Room
  • Well Appointed Kitchen/Dining Room with Built-in Appliances
  • Utility Room, Cloakroom & Boot/Dog Room
  • Six Bedrooms (Bedroom Four/Study) & Three Bathrooms
  • Private Landscaped Gardens
  • Driveway - Four Cars - Double Integral Garage with Electric Door
  • Benefits From Solar Panels - High Efficiency Home - Viewing Essential

A REAL MUST SEE ! This highly appealing and spacious detached home offers a remarkable living experience. With six generously sized bedrooms and three bathrooms, this property is perfect for families seeking both comfort and versatility.

The layout of this three-storey home is designed to maximise space and natural light, creating a warm and welcoming atmosphere throughout.

The far-reaching views from the home add to its charm, providing a picturesque backdrop that enhances the overall appeal of the residence.

Internally and externally, this home is beautifully maintained to a very good standard. Viewing essential.

The Location - Hulland Ward is a popular village offering amenities including a primary school, pub and beautiful walks in the surrounding open countryside. Easy access to the market town of Ashbourne is available with a selection of cafes, restaurants and shops. The property is also within close proximity of the beautiful Carsington Water and also offers easy access to Derby city centre and major transport links. Ashbourne 5 miles. Belper 7 miles. Wirksworth 7 miles. Derby 11 miles.

Accommodation -

Storm Porch - With two brick pillars and entrance door opening into entrance hall. Outside lights.

Entrance Hall - 3.49 x 3.40 (11'5" x 11'1") - With inset door mat, coving to ceiling, oak flooring, radiator, wall lights and feature staircase with glass balustrade leading to first floor.

Cloakroom - 1.96 x 1.72 (6'5" x 5'7") - With low level WC, pedestal wash handbasin, tiled splash backs, tiled effect floor, feature wallpapered wall, extractor fan, coat hangers and internal panelled door with chrome fittings.

Lounge - 5.25 x 3.98 (17'2" x 13'0") - With display fireplace and raised hearth, coving to ceiling, wood flooring, fitted wall lights, countryside views to rear, radiator, double glazed bi-folding doors opening onto landscape gardens and internal panelled door with chrome fittings.

Dining/Family Room - With wood flooring, coving to ceiling, radiator, feature wallpapered wall, double glazed window to front with fitted bind and internal panelled door with chrome fittings.

Kitchen/Dining Room - 6.24 x 3.65 (20'5" x 11'11") -

Dining Area - With feature wallpapered wall, spotlights to ceiling, wall light, tiled flooring, countryside views to rear, open space into kitchen area, radiator and double glazed bifolding doors opening onto patio/terrace area and landscaped gardens.

Kitchen Area - With one and a half stainless steel sink unit with mixer tap, wall and base fitted units with attractive matching granite worktops, built-in Neff induction hob with Neff stainless steel extractor hood over, two built in Neff electric fan assisted ovens, integrated Neff dishwasher, wine rack, matching kitchen island again with matching granite worktops and fitted base cupboards underneath, matching tiled flooring, countryside views to rear, spotlights to ceiling, open space into dining area, double glazed window overlooking landscaped gardens, concealed worktop lights and internal panelled door with chrome fittings.

Utility Room - 2.79 x 2.58 (9'1" x 8'5") - With one and a half stainless steel sink unit with mixer tap, wall and base cupboards with matching worktops, electric floor heater, plumbing for automatic washing machine, space for tumble dryer, space for fridge/freezer, matching tiled flooring, countryside views to rear, extractor fan, double glazed window overlooking landscaped gardens and integral door giving access to boot/dog room and double garage.

Boot/Dog Room - 2.58 x 1.75 (8'5" x 5'8") - With electric heater and integral door giving access to double garage.

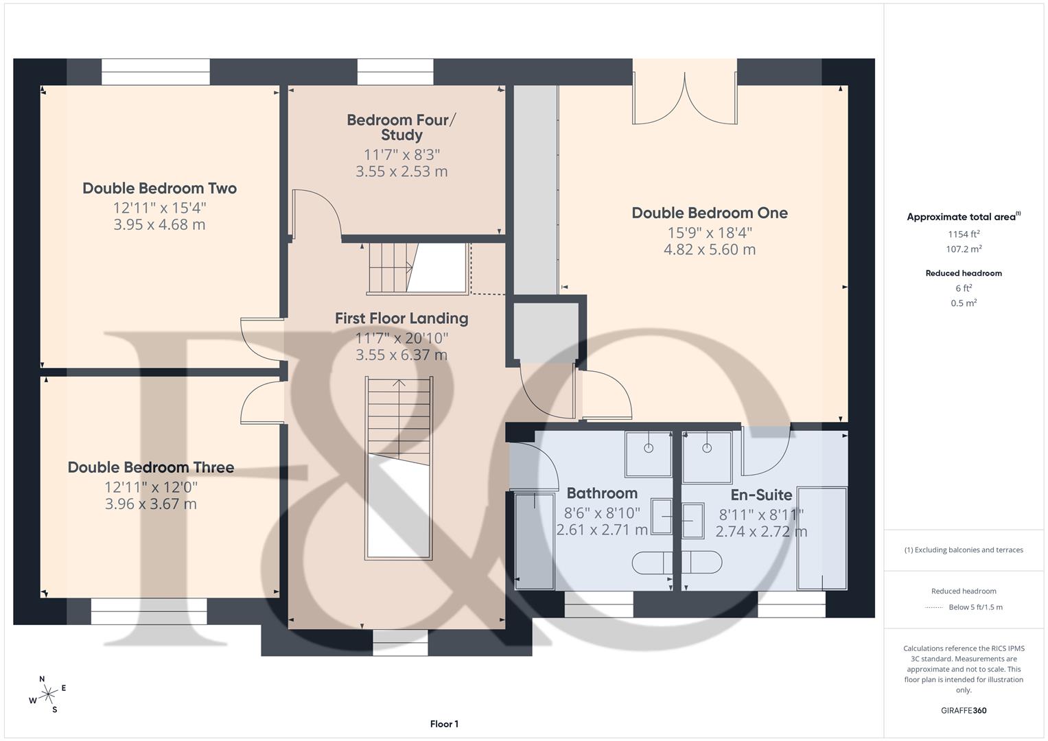
First Floor Landing - 6.37 x 3.55 (20'10" x 11'7") - This is a feature first floor landing, enjoying wood flooring, coving to ceiling, radiator, built-in cupboard housing the high efficiency hot water cylinder, attractive glass balustrade and a matching second staircase with glass balustrade leading to the second floor.

Double Bedroom One - 5.60 x 4.82 (18'4" x 15'9") - With built-in wardrobes providing good storage with sliding doors, radiator, coving to ceiling, wall lights, countryside views to rear, feature double glazed Juliette style balcony overlooking landscaped gardens and internal panelled door with chrome fittings.

En-Suite Bathroom - 2.74 x 2.72 (8'11" x 8'11") - With bath with chrome fittings with mixer tap/hand shower attachment, pedestal wash handbasin with chrome fittings, low level WC, separate corner shower cubical with chrome fittings including shower, fully tiled walls, tiled flooring, spotlights to ceiling, heated towel rail radiator, extractor fan, double glazed window with fitted blind to front and internal panelled door with chrome fittings.

Double Bedroom Two - 4.68 x 3.95 (15'4" x 12'11") - With feature wallpapered wall, countryside views to rear, radiator, double glazed window overlooking landscape gardens an internal panelled door with chrome fittings.

Double Bedroom Three - 3.96 x 3.67 (12'11" x 12'0") - With feature wallpapered wall, radiator, double glazed window to front with fitted blind and internal panelled door with chrome fittings.

Single Bedroom Four/Study - 3.55 x 2.53 (11'7" x 8'3") - With radiator, countryside views to rear, double glazed window with fitted blind overlooking landscaped gardens and internal panelled door with chrome fittings.

Family Bathroom - 2.71 x 2.61 (8'10" x 8'6") - With bath with chrome fittings, pedestal wash handbasin with chrome fittings, low level WC, separate shower cubical with chrome shower, tiled splashbacks, spotlights to ceiling, radiator, extractor fan, double glazed window with fitted blind to front and internal panelled door with chrome fittings.

Second Floor Landing - 3.72 x 1.07 (12'2" x 3'6") - With wood flooring, double glazed Velux window to rear and built-in wardrobes providing good storage with sliding doors.

Double Bedroom Five - 5.55 x 4.75 (18'2" x 15'7") - With radiator, double glazed side window, two double glazed Velux style windows with fitted blinds to rear, far-reaching countryside views and internal panelled door with chrome fittings.

Double Bedroom Six - 4.74 x 3.85 (15'6" x 12'7") - With radiator, double glazed window to side, far-reaching countryside views to rear, two matching double glazed Velux style windows with fitted blinds and internal panelled door with chrome fittings.

Family Shower Room - 2.15 x 1.60 (7'0" x 5'2") - With separate shower cubicle with chrome shower, pedestal wash handbasin with chrome fittings, low level WC, radiator, tiled shelf, tiled effect flooring, extractor fan, far-reaching countryside views to rear, double glazed Velux window and internal panelled door with chrome fittings.

Front Garden - Immediately in front of the property is a raised bedded area with a low brick wall, gravel, slate chippings, flower beds and shrub tree.

Rear Garden - The property benefits from a private garden with countryside views to rear. The garden has been designed for low maintenance and enjoys artificial turf, generous patio/terrace area providing pleasant sitting out and entertaining space together with a decked area. The garden is fully enclosed by fencing and has a mini golf putting green.

Further Garden Area - Front - To the front of the property is a well-stocked garden area, laid to lawn with shrubs, trees and a hedgerow providing a good screen for the property.

Driveway - A double width, tarmac driveway provides car standing spaces for four cars and leads to a double integral garage.

Integral Double Garage - 5.39 x 4.52 (17'8" x 14'9") - With concrete floor, power, lighting, Worcester central heating boiler, solar panel unit, integral door giving access to property and electric front door. With cold water tap and water metre.

Council Tax Band - F - Derbyshire Dales

Property Ref: 34452456

Share:

Similar Properties

The Green, Windley, Belper, Derbyshire

3 Bedroom Detached House | £675,000

THE GREEN - Nestled in the picturesque village of Windley, this beautifully improved detached cottage offers a perfect b...

Hazelwood Road, Duffield, Belper, Derbyshire

3 Bedroom Detached House | Offers Over £650,000

The Pump House is a unique three bedroom detached cottage - This home is an ideal choice for persons wanting to downsize...

The Barn, Blackbrook, Belper, Derbyshire

3 Bedroom Detached House | Offers in region of £649,950

ECCLESBOURNE SCHOOL CATCHMENT AREA - This beautiful three bedroom detached barn offers a unique blend of rustic elegance...

The Woodridge, Milford, Belper, Derbyshire

4 Bedroom Detached House | Offers in region of £695,000

A four bedroomed detached property with double garage benefiting from a large garden situated in this private cul-de-sac...

St. Johns Road, Matlock Bath, Matlock, Derbyshire

3 Bedroom Cottage | Offers in region of £695,000

Charming stone-built, three bedroom detached cottage set within approx. eight acres of woodland.The cottage itself offer...

Harpur House, Starkholmes, Matlock, Derbyshire

4 Bedroom Detached House | Offers in region of £695,000

Situated on the edge of Starkholmes with panoramic views, this charming detached home set in approx. 3.5 acres presents...

Fletcher & Company (Duffield)

Duffield, Derbyshire, DE56 4GD

01332 843390

How much is your home worth?

Use our short form to request a valuation of your property.

Request a Valuation

Mortgage Calculator

Amount Borrowed: £
Total Amount Repayable: £
Total Monthly Payment: £
©2026 The Guild of Property Professionals. All rights reserved. Terms and Conditions | Privacy Policy | Cookie Policy | Complaints Policy | Members Login
The Guild of Property Professionals Trading Address: 121 Park Lane, London W1K 7AG. GPEA Limited. Registered in England & Wales.  Company No: 02819824.  Registered Office Address: 2 St. Stephen's Court, St. Stephen's Road, Bournemouth, Dorset, England, BH2 6LA.  VAT Registration No: 576 8795 61
Book a Property Valuation Update Cookies Preferences