Chapel Hill, Ashcott

£475,000
SSTC
This property listing is now SSTC

3 Bedroom Cottage for sale in Ashcott

4 3 2
  • Charming semi-detached period property enjoying tastefully appointed accommodation that is generously proportioned throughout
  • Boasting two spacious and characterful reception rooms and a large conservatory overlooking the garden
  • Stunning kitchen/breakfast room with central island and built-in appliances and separate utility room
  • Vaulted entrance hall with plenty of storage, ground floor study and useful shower room
  • Three double bedrooms all enjoying far reaching views and a family bathroom
  • Delightful south facing garden, beautifully landscaped with covered BBQ area, shed, greenhouse and wide driveway providing ample parking
  • Improve your carbon footprint and enjoy the financial benefits generated by 18 solar panels!

A superb opportunity to purchase this charming and tastefully presented period property boasting generously proportioned, characterful and versatile accommodation including a stunning kitchen/breakfast room, three double bedrooms, two reception rooms, large conservatory, two bathrooms, beautiful south facing garden and ample parking. Situated in the heart of the popular village of Ashcott. Early viewing is essential.

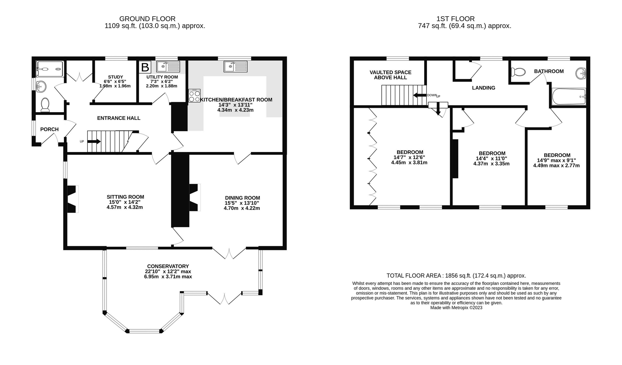
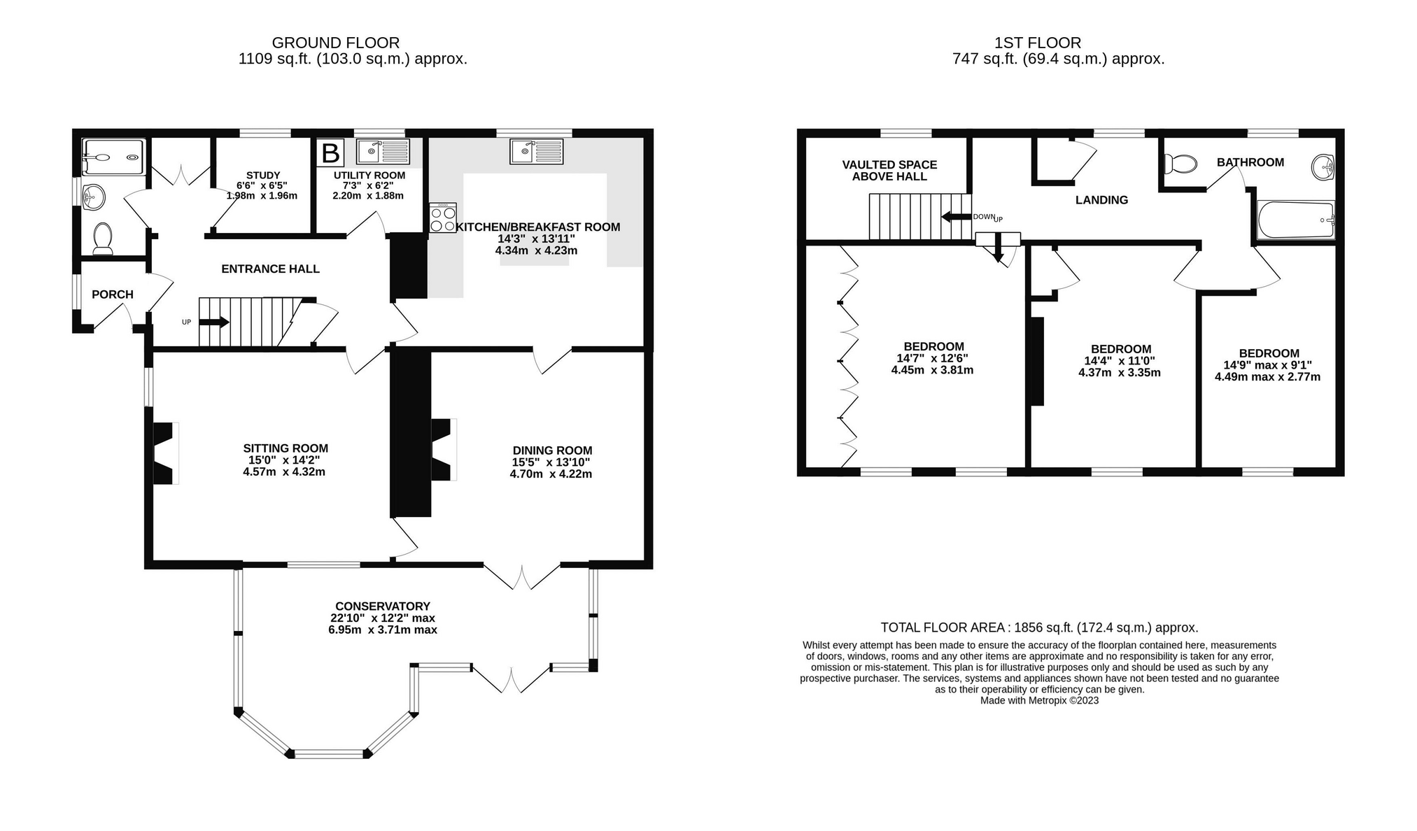
Accommodation
Leading from the side elevation, a porch brings you into the entrance hall, featuring high ceilings, oak flooring and a galleried landing. There is a useful coats cupboard and doors off to the kitchen/breakfast room, sitting room, ground floor shower room, study and utility room which houses the gas fired boiler and is fitted with base and wall units, worktop, sink unit and space for a washing machine and tumble dryer. The warm and inviting sitting room is a good size, boasting oak flooring and an attractive fire surround and inset wood burning stove. A door opens to the dining room, which is also accessed from the kitchen, and is a great size for families and sociable buyers alike, having a fireplace (not in use) and exposed floorboards, French doors open into a large conservatory providing additional reception entertaining space and delightful outlook over the garden. Keen cooks will appreciate the recently fitted kitchen, attractively appointed with a range of two tone high gloss base, wall, and drawer units, oak effect worktops and large central island. Built-in appliances include a dishwasher, double oven, induction hob and space for a tall fridge/freezer.

To the first floor a spacious galleried landing leads off to an airing cupboard, bathroom and three double bedrooms, all of which have super views over the garden, and across the village and countryside beyond. The principal bedroom is particularly spacious and benefits from large built in wardrobes.

Outside
A five bar gate opens to a wide driveway providing ample parking and space for a motor home if desired. Attractive borders and natural stone boundary wall give the home curb appeal and a gate gives access to the main garden. Beautifully landscaped and enjoying an excellent degree of privacy this fully enclosed garden is a real selling point for families and keen gardeners alike. Boasting a desirable south facing aspect, generously stocked with a variety of flowering shrubs and perennials and mature trees. There is also a greenhouse, large storage shed, smaller shed, and superb covered BBQ and al fresco dining area, another tick for families and sociable buyers alike.

Location
The delightful village of Ashcott (population c.1186) sits part way along the Polden ridge, having wonderful rural views of the Somerset Levels and its various tributaries, all situated some 5 miles south-west of Glastonbury. At its heart is the historic Church of All Saints, an early 15th century building, forming part of a group of six churches known as the Polden Wheel. Ashcott is particularly well known locally for its superb village community and benefits from a highly regarded Primary School, sports playing fields, one inn at the village centre and active village hall. The village also offers good and convenient access to other local towns/employment centres, such as Taunton (18 miles), Bridgwater 10 miles), Wells (11 miles) Bristol (31 miles), Bath (31 miles) and Exeter (55 miles). The M5 motorway J23 (9 miles) and the A303 Podimore Junction (12 miles). Bristol International Airport is 23 miles and Castle Cary railway station (London Paddington) 15miles.

Directions
From Street proceed towards Bridgwater on the A39 passing through the village of Walton and into Ashcott. At the Ashcott Inn turn right into Middle Street and immediately left into Chapel Hill. Proceed straight ahead at the cross roads where the property will be found on the right hand side just before Chapel Lane reaches Ridgeway.

Material Information
All available property information can be provided upon request from Holland & Odam. For confirmation of mobile phone and broadband coverage, please visit checker.ofcom.org.uk

Identity Verification
To ensure full compliance with current legal requirements, all buyers are required to verify their identity and risk status in line with anti-money laundering (AML) regulations before we can formally proceed with the sale. This process includes a series of checks covering identity verification, politically exposed person (PEP) screening, and AML risk assessment for each individual named as a purchaser. In addition, for best practice, we are required to obtain proof of funds and where necessary, to carry out checks on the source of funds being used for the purchase. These checks are mandatory and must be completed regardless of whether the purchase is mortgage-funded, cash, or part of a related transaction. A disbursement of £49 per individual (or £75 per director for limited company purchases) is payable to cover all aspects of this compliance process. This fee represents the full cost of conducting the required checks and verifications. You will receive a secure payment link and full instructions directly from our compliance partner, Guild365, who carry out these checks on our behalf.

Important Information

  • This is a Freehold property.
  • This Council Tax band for this property is: C

Property Ref: SCJ534711

Share:

Similar Properties

Church Lane, Chilton Polden

4 Bedroom Detached Bungalow | £450,000

A detached four-bedroom bungalow set on a generous corner plot in the popular Somerset village of Chilton Polden. This v...

Willmotts Close, Chilton Polden

4 Bedroom Bungalow | £439,950

An excellent opportunity to purchase this beautifully presented and well maintained three bedroom bungalow with the adde...

Meadow View, Ashcott

4 Bedroom Detached House | £425,000

Set within a popular village location, this attractive four-bedroom detached residence offers generous and well-proporti...

Riggiston Barns, Walton

3 Bedroom Barn Conversion | Offers Over £500,000

Situated on the edge of the popular village of Walton, this beautifully presented three-bedroom semi-detached converted...

Pit Hill Lane, Moorlinch

4 Bedroom Character Property | £575,000

A beautiful, characterful Grade II listed thatched cottage with workshops, enclosed garden & development potential. Quin...

Bath Road, Ashcott

4 Bedroom Semi-Detached House | £575,000

A charming four-bedroom semi-detached village home steeped in character, showcasing exposed wooden beams, low ceilings a...

Holland & Odam (Street)

Street, Somerset, BA16 0BJ

01458 841411

How much is your home worth?

Use our short form to request a valuation of your property.

Request a Valuation

Mortgage Calculator

Amount Borrowed: £
Total Amount Repayable: £
Total Monthly Payment: £
©2026 The Guild of Property Professionals. All rights reserved. Terms and Conditions | Privacy Policy | Cookie Policy | Complaints Policy | Members Login
The Guild of Property Professionals Trading Address: 121 Park Lane, London W1K 7AG. GPEA Limited. Registered in England & Wales.  Company No: 02819824.  Registered Office Address: 2 St. Stephen's Court, St. Stephen's Road, Bournemouth, Dorset, England, BH2 6LA.  VAT Registration No: 576 8795 61
Book a Property Valuation Update Cookies Preferences