Elm Tree House, Hale Road, Ashill , IP25 7BL

Offers in region of
£575,000
SSTC
This property listing is now SSTC

5 Bedroom Detached House for sale in Ashill

3 5 2
  • Executive style detached new build house
  • Five bedrooms with an ensuite to bedroom one and two
  • Purpose built development of just five dwellings, three houses and two bungalows
  • Generous study perfect for working from home
  • Set in the beautiful Norfolk countryside
  • Underfloor heating downstairs, radiators upstairs with air source heat pump and solar panels
  • Stylish open plan kitchen/diner leading to separate family room
  • Spacious living room with wood burning stove
  • Garage with off-road parking
  • Good-sized rear garden with field views to the rear

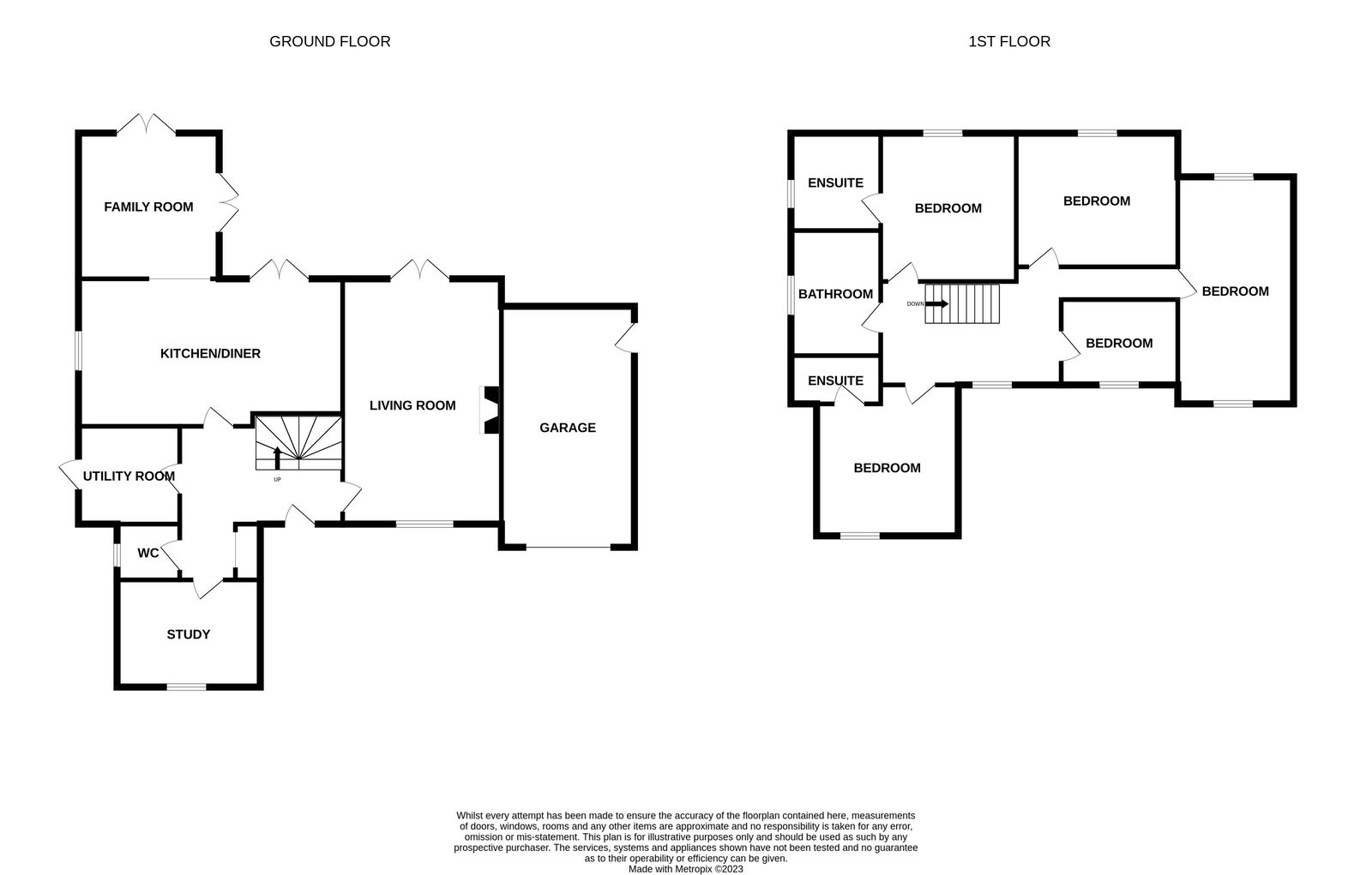
Guide Price £600,000 - £625,000. Moneyproperties are thrilled to present the opportunity to purchase this brand new five-bedroom detached house set in the beautiful Norfolk countryside in Ashill with unrivaled field views to the rear. The property is on a purpose-built development of just 5 executive style properties. This fantastic house comprises of a spacious living room with wood burning stove, stylish open plan kitchen/diner leading to a separate family room, utility room, downstairs wc and study. To the upstairs comes five well-proportioned bedrooms with an ensuite to bedroom one and a second ensuite to bedroom two, along with a family bathroom off the landing. Outside the property benefits from a garage, off-road parking and a good-sized rear garden with field views. Further benefits include solar panels and an air source heat pump. 

ALL MEASUREMENTS ARE APPROXIMATE AND TAKEN FROM ARCHITECT DRAWINGS


LIVING ROOM 22' 3" x 11' 1" (6.78m x 3.38m)


KITCHEN/DINER 22' 6" x 10' 3" (6.86m x 3.12m)


FAMILY ROOM 12' 7" x 12' 4" (3.84m x 3.76m)


UTILITY ROOM 7' 8" x 6' 8" (2.34m x 2.03m)


STUDY 12' 1" x 7' 11" (3.68m x 2.41m)


BEDROOM ONE 10' 3" x 10' 3" (3.12m x 3.12m)


ENSUITE 7' x 6' 5" (2.13m x 1.96m)


BEDROOM TWO 14' 7" x 10' 2" (4.44m x 3.1m)


BEDROOM THREE 12' 4" x 13' 7" (3.76m x 4.14m)


BEDROOM FOUR 17' x 12' 4" (5.18m x 3.76m)


BEDROOM FIVE 9' 8" x 7' 2" (2.95m x 2.18m)


BATHROOM 7' x 6' 5" (2.13m x 1.96m)


GARAGE 17' x 9' 8" (5.18m x 2.95m)


Important Information

  • This is a Freehold property.

Property Ref: 680_1279368

Share:

Similar Properties

Hackford Road, Wicklewood, NR18

4 Bedroom Bungalow | Offers in region of £575,000

Moneyproperties are delighted to be marketing this generous family home occupying a large plot in the popular village of...

The Compasses, (a unique piece of Wymondham’s heritage) Burnthouse Lane, Silfield, Wymondham, NR18 9NP

3 Bedroom Detached House | Offers in region of £575,000

A rare opportunity to own a unique piece of Wymondham’s heritage, dating back to 1789. Formerly known as the Rule & Comp...

Carrs Hill Close, Costessey, Norwich NR8 5DW

4 Bedroom Detached House | Offers in region of £575,000

A rare opportunity to acquire a spacious four-bedroom detached bungalow offered with no forward chain, allowing for a sw...

Hale Road, Ashill, IP25

5 Bedroom Detached House | Guide Price £585,000

Moneyproperties are thrilled to present this brand new five-bedroom detached house set in the beautiful Norfolk countrys...

Tabernacle Lane, Forncett St Peter (flexible home with enormous potential). NR16 1LE

4 Bedroom Detached House | Offers in region of £620,000

Rich in heritage and character, the Old Trowel & Hammer offers a rare opportunity to own a historic former public house...

Church Road, Deopham, Wymondham, Norfolk, NR18 9DT

5 Bedroom Barn Conversion | Offers in region of £645,000

Unique Five-Bedroom Barn Conversion – Deopham. A rare opportunity to acquire this stunning five-bedroom barn conversion,...

Money Properties (Wymondham)

17/18 Market Place, Wymondham, Norfolk, NR18 0AX

01953 423 006

How much is your home worth?

Use our short form to request a valuation of your property.

Request a Valuation

Mortgage Calculator

Amount Borrowed: £
Total Amount Repayable: £
Total Monthly Payment: £
©2026 The Guild of Property Professionals. All rights reserved. Terms and Conditions | Privacy Policy | Cookie Policy | Complaints Policy | Members Login
The Guild of Property Professionals Trading Address: 121 Park Lane, London W1K 7AG. GPEA Limited. Registered in England & Wales.  Company No: 02819824.  Registered Office Address: 2 St. Stephen's Court, St. Stephen's Road, Bournemouth, Dorset, England, BH2 6LA.  VAT Registration No: 576 8795 61
Book a Property Valuation Update Cookies Preferences