22 Annaloughan Road, BT77

£400,000
SSTC
This property listing is now SSTC

4 Bedroom Detached House for sale in Augher

4
  • Garden
  • Parking

Property People Estate and Letting Agents are delighted to bring to the market one of Carey Developments' homes of distinction located on Annaloughan Road, Augher, Co Tyrone. The location offers the potential purchaser excellent commuter links to nearby towns and cities via the A4, A5, and M1. The property is less than 1 mile from the village of Augher, with local amenities such as primary schools, shops, cafes, and bars. The area is a short drive from local beauty spots like Knockmanny Forest, Lumford's Glen, and the Blackwater River Walk.

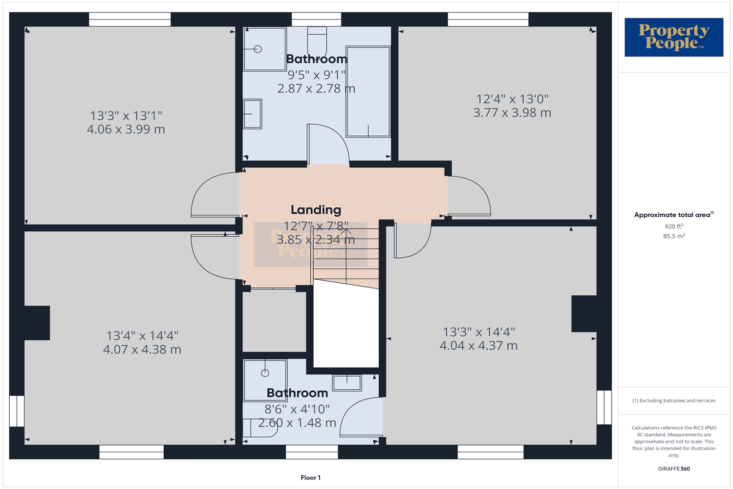
The property comprises two reception rooms, an open-plan kitchen-dining room, a utility room, and a W.C. on the ground floor. Upstairs are the master bathroom, three double bedrooms, and the master bedroom with an ensuite. Externally, the property will benefit from a tarmacked driveway, landscaped lawns, and perimeter fencing or hedging. As with all Carey Developments properties, this house will be finished to the highest standards inside and out. The developer has also included a PC sum for the kitchens to allow the purchaser to select their own kitchen and sanitary ware.

For more information, please contact Colin at the Augher branch on 02885569209.


https://tour.giraffe360.com/f6bb345dc8d34efa9c06047ab2a0faff

Important Information

  • This is a Freehold property.

Property Ref: 2980

Share:

Similar Properties

11 Loughrans Road, BT69

5 Bedroom Detached House | £399,950

Property People Estate and letting agents are thrilled to bring to the market this substantial residence in the beautifu...

The Cherry, Tullybroom Heights, BT76

3 Bedroom Detached House | £329,500

The Cherry, Tullybroom Heights Modern detached 3-bed home with luxury kitchen, solar panels, Grade A energy rating, and...

19 Edfield Way, Fivemiletown, BT75

Commercial Property | POA

The Edfield Restaurant has earned high praise from its patrons for delivering exceptional service and top-quality food....

The Oak, Station Road, BT76

4 Bedroom Detached House | £412,500

The Oak, Station Road Stunning New 4-Bed Detached Home with Energy-Efficient Solar Panels, Stylish Turnkey Finish, and S...

15/16 Aylesbury Lodge, C15

9 Bedroom Detached House | POA

Experience suburban luxury at its finest - Aylesbury Lodge, where elegance meets modern convenience.

Umgola Road, BT60

Land | POA

Property People Estate Agents are delighted to bring this well designed development opportunity with 19 high end propert...

Property People (Augher)

Augher, Tyrone, BT77 0BD

028 8556 9209

How much is your home worth?

Use our short form to request a valuation of your property.

Request a Valuation

Mortgage Calculator

Amount Borrowed: £
Total Amount Repayable: £
Total Monthly Payment: £
©2026 The Guild of Property Professionals. All rights reserved. Terms and Conditions | Privacy Policy | Cookie Policy | Complaints Policy | Members Login
The Guild of Property Professionals Trading Address: 121 Park Lane, London W1K 7AG. GPEA Limited. Registered in England & Wales.  Company No: 02819824.  Registered Office Address: 2 St. Stephen's Court, St. Stephen's Road, Bournemouth, Dorset, England, BH2 6LA.  VAT Registration No: 576 8795 61
Book a Property Valuation Update Cookies Preferences