Paradise Orchard, Berryfields, Aylesbury

£425,000
SSTC
This property listing is now SSTC

4 Bedroom Terraced House for sale in Aylesbury

1 4 2
  • FOUR BEDROOM EXTENDED FAMILY HOME
  • POPULAR BERRYFIELDS DEVELOPMENT
  • SET OVER THREE FLOORS
  • MODERN KITCHEN/DINER WITH MIELE APPLIANCES
  • ALLOCATED PARKING
  • SECOND FLOOR MASTER SUITE
  • LANDSCAPED REAR GARDEN
  • WALKING DISTANCE TO STATION

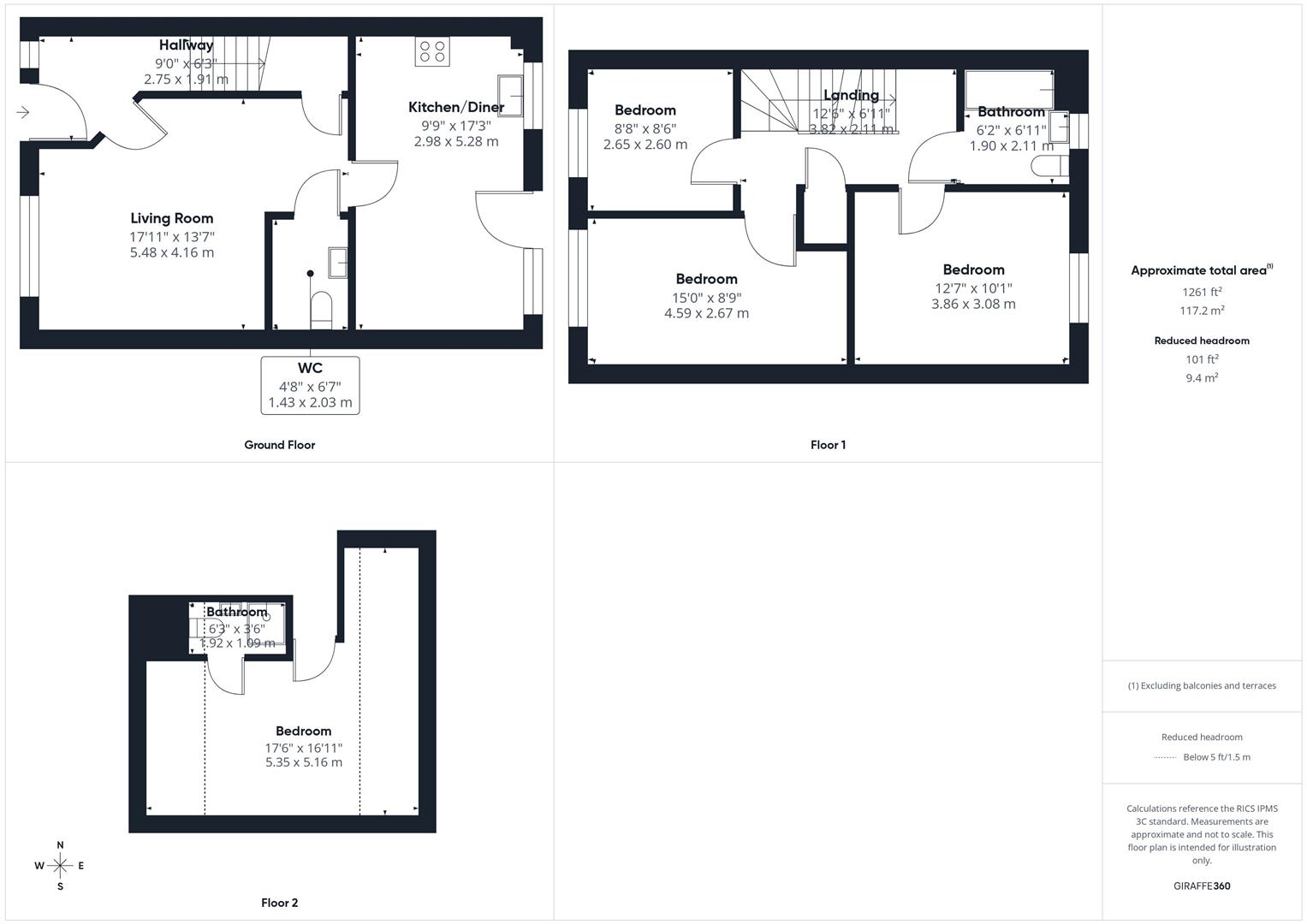
A four bedroom extended family home situated in the popular Berryfields development, within walking distance of schools, Aylesbury Vale Parkway station and a range of amenities. Set over three floors, the accommodation comprises a living room, downstairs cloakroom and a modern kitchen/diner. The first floor offers three bedrooms and a family bathroom, while the top floor boasts an impressive master suite. Externally, the property benefits from a landscaped rear garden and allocated parking.

Location - Berryfields is a modern development situated on the northern outskirts of Aylesbury surrounded by open countryside. The development benefits from good transport links by road towards Bicester/M40 and back to the town centre. The development is home to Aylesbury Parkway Station which offers mainline services into London Marylebone in just under an hour. There is a parade of shops and a Miller and Carter restaurant on the development as well as a secondary school and two primary schools.

Accommodation - Arranged over three floors, the property offers spacious and versatile accommodation throughout. The ground floor comprises an entrance hall with stairs rising to the first floor, living room featuring a useful storage cupboard, and a convenient downstairs cloakroom. To the rear is a modern kitchen/diner fitted with a range of units and work surfaces, Miele appliances including an inset gas hob with oven and extractor fan over, integrated fridge/freezer and dishwasher, and space for a washing machine. There is ample room for a dining table and chairs, with a door opening directly onto the rear garden, making it ideal for both everyday family living and entertaining. A new boiler with Hive smart controls has recently been fitted.

The first floor benefits from an airing cupboard, three well proportioned bedrooms, and a family bathroom fitted with a contemporary suite.

Occupying the entire second floor is an impressive master suite, with eaves storage, skylights allowing for plenty of natural light, and a private en suite shower room.

Externally, the landscaped rear garden has been thoughtfully designed to offer a variety of outdoor spaces, including a paved patio area, lawn with built-in planters, decked seating area and a garden shed. To the rear of the property, there is allocated parking for up to 3 cars.

This fantastic home combines modern living with a convenient location, making it an ideal choice for families and commuters alike.

Property Ref: 34462192

Share:

Similar Properties

Armstrongs Fields, Kingsbrook, Aylesbury

3 Bedroom Semi-Detached House | Offers in excess of £425,000

A three bedroom semi-detached home located in the new and popular Kingsbrook development. Arranged over three floors, th...

Paddington Lane, Kingsbrook, Aylesbury

4 Bedroom Semi-Detached House | Guide Price £415,000

A modern 3/4 bedroom semi-detached home located in the new & popular Kingsbrook development. Set over three floors, this...

Austen Place, Haydon Hill, Aylesbury

3 Bedroom Semi-Detached House | Offers in excess of £410,000

A three bedroom semi-detached home situated in the Haydon Hill area, close to local amenities, schools and transport lin...

Armstrongs Fields, Kingsbrook, Aylesbury

3 Bedroom Town House | Offers in excess of £430,000

A three bedroom semi-detached townhouse in the new and popular Kingsbrook development. This modern home offers a spaciou...

Mooring Street, Kingsbrook, Aylesbury

3 Bedroom Terraced House | Offers in excess of £435,000

Situated in the popular Kingsbrook development, close to schools and local amenities, this three bedroom townhouse is ar...

Craigwell Avenue, Aylesbury, Buckinghamshire

3 Bedroom Bungalow | £435,000

A three bedroom semi-detached chalet bungalow situated in one of Aylesbury's sought-after Southside locations, close to...

George David & Co (Aylesbury)

Aylesbury, Buckinghamshire, HP20 1SE

01296 393393

How much is your home worth?

Use our short form to request a valuation of your property.

Request a Valuation

Mortgage Calculator

Amount Borrowed: £
Total Amount Repayable: £
Total Monthly Payment: £
©2026 The Guild of Property Professionals. All rights reserved. Terms and Conditions | Privacy Policy | Cookie Policy | Complaints Policy | Members Login
The Guild of Property Professionals Trading Address: 121 Park Lane, London W1K 7AG. GPEA Limited. Registered in England & Wales.  Company No: 02819824.  Registered Office Address: 2 St. Stephen's Court, St. Stephen's Road, Bournemouth, Dorset, England, BH2 6LA.  VAT Registration No: 576 8795 61
Book a Property Valuation Update Cookies Preferences