Craigwell Avenue, Aylesbury, Buckinghamshire

£425,000
SSTC
This property listing is now SSTC

3 Bedroom Bungalow for sale in Aylesbury

1 3 2
  • SOUGHT AFTER SOUTHSIDE LOCATION
  • SEMI-DETACHED CHALET BUNGALOW
  • THREE BEDROOMS
  • DRIVEWAY PARKING
  • VERSATILE AND FLEXIBLE ACCOMMODATION
  • LARGE MATURE REAR GARDEN
  • CLOSE TO HIGHLY REGARDED SCHOOLS
  • EXCELLENT ROAD LINKS
  • FIRST FLOOR BEDROOM WITH EN SUITE

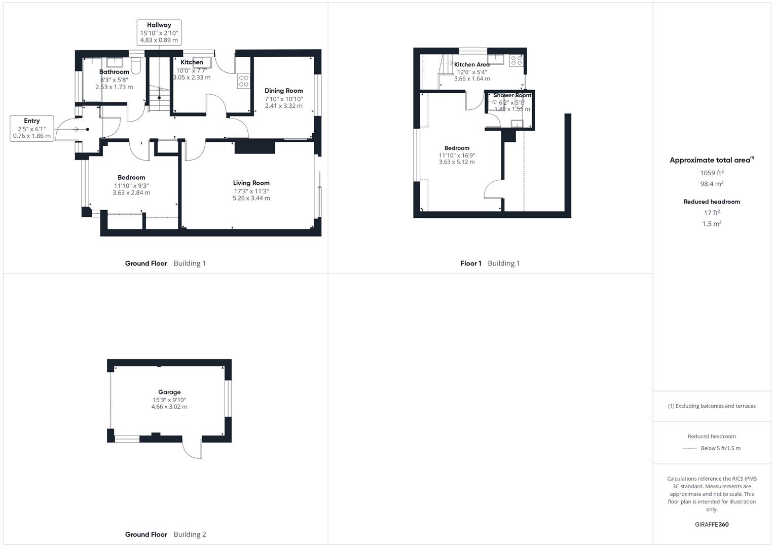
A three bedroom semi-detached chalet bungalow situated in one of Aylesbury's sought-after Southside locations, close to highly regarded schools, local amenities and excellent road links. The property offers versatile accommodation and would be ideal for those looking to downsize while benefiting from convenient ground-floor living. The ground floor comprises a living room, kitchen, bedroom, bathroom and a dining room which could also be used as a third bedroom. The first floor features a spacious bedroom with its own kitchen area and en-suite, offering excellent potential for independent living or guest accommodation. Externally, the property benefits from a large rear garden and a driveway providing off-road parking.

Location - At the heart of the area is Jansel Square Centre which has a range of shops, pub, post office and hairdressers. Additional benefits include a doctor's surgery, two churches and a large recreation park with many sports clubs and activities. An ideal location for families as the area is served by the well regarded Bedgrove Infant and Junior schools and is within walking distance of the Aylesbury Grammar and Aylesbury High School. There is a frequent bus service to the town centre, good road links towards London on the A41 and A413 and the choice of Aylesbury Central or Stoke Mandeville Train Stations offering mainline services into London Marylebone.

Accommodation - The accommodation begins with a porch leading into the entrance hall, which provides access to the ground floor rooms and features stairs rising to the first floor. The ground floor includes a well-proportioned bedroom with built-in wardrobes and a family bathroom fitted with a suite.

The kitchen offers space for a cooker, fridge, washing machine and dishwasher, and benefits from a door leading directly out to the rear garden. The living room features a characterful fireplace and sliding doors that open onto the garden, allowing plenty of natural light and providing an excellent connection to the outdoor space.

In addition, there is a dining room, further highlighting the flexibility of the accommodation depending on a buyer's needs.

The first floor provides a particularly versatile space, featuring a kitchen area and access to the loft. There is also a good-sized bedroom with the added benefit of an en suite, offering potential for independent living, guest accommodation or a private suite.

Outside, the property enjoys a mature rear garden with a large paved patio area, ideal for outdoor dining and entertaining, leading onto an extensive lawn bordered by established trees and shrubs which provide both privacy and a pleasant outlook.

To the front of the property, there is a driveway providing off-road parking for a number of cars.

Property Ref: 34519089

Share:

Similar Properties

Paradise Orchard, Berryfields, Aylesbury

4 Bedroom Terraced House | £425,000

A four bedroom extended family home situated in the popular Berryfields development, within walking distance of schools,...

Stadium Approach, The Green, Aylesbury

4 Bedroom Town House | Offers in excess of £425,000

A well presented four bedroom terraced home located on the south side of Aylesbury, within easy reach of Stoke Mandevill...

Avocet Way, Watermead, Aylesbury

3 Bedroom End of Terrace House | £425,000

A three bedroom end-of-terrace home situated in the popular Watermead development. The property offers a practical layou...

Armstrongs Fields, Kingsbrook, Aylesbury

3 Bedroom Town House | Offers in excess of £430,000

A three bedroom semi-detached townhouse in the new and popular Kingsbrook development. This modern home offers a spaciou...

Mooring Street, Kingsbrook, Aylesbury

3 Bedroom Terraced House | Offers in excess of £435,000

Situated in the popular Kingsbrook development, close to schools and local amenities, this three bedroom townhouse is ar...

Beethoven Drive, Aylesbury, Buckinghamshire

3 Bedroom Detached House | Offers in excess of £435,000

A well-located three-bedroom detached family home situated on the Aylesbury/Stoke Mandeville border, offering easy acces...

George David & Co (Aylesbury)

Aylesbury, Buckinghamshire, HP20 1SE

01296 393393

How much is your home worth?

Use our short form to request a valuation of your property.

Request a Valuation

Mortgage Calculator

Amount Borrowed: £
Total Amount Repayable: £
Total Monthly Payment: £
©2026 The Guild of Property Professionals. All rights reserved. Terms and Conditions | Privacy Policy | Cookie Policy | Complaints Policy | Members Login
The Guild of Property Professionals Trading Address: 121 Park Lane, London W1K 7AG. GPEA Limited. Registered in England & Wales.  Company No: 02819824.  Registered Office Address: 2 St. Stephen's Court, St. Stephen's Road, Bournemouth, Dorset, England, BH2 6LA.  VAT Registration No: 576 8795 61
Book a Property Valuation Update Cookies Preferences