Hearn Green, Kingsbrook, Aylesbury

Offers in excess of
£389,950
SSTC
This property listing is now SSTC

3 Bedroom Semi-Detached House for sale in Aylesbury

1 3 2
  • NEW KINGSBROOK DEVELOPMENT
  • THREE BEDROOM SEMI-DETACHED HOUSE
  • GARAGE AND DRIVEWAY
  • DOWNSTAIRS CLOAKROOM
  • MODERN KITCHEN
  • EN SUITE TO MAIN BEDROOM
  • GOOD ROAD LINKS
  • CLOSE TO SCHOOLS AND AMENITIES

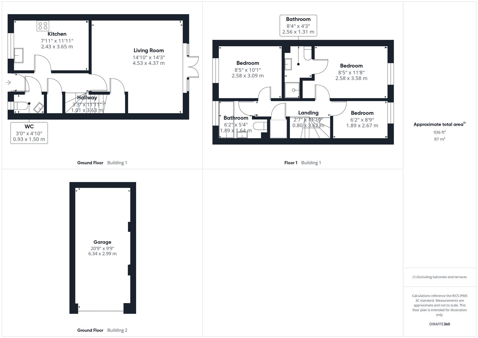
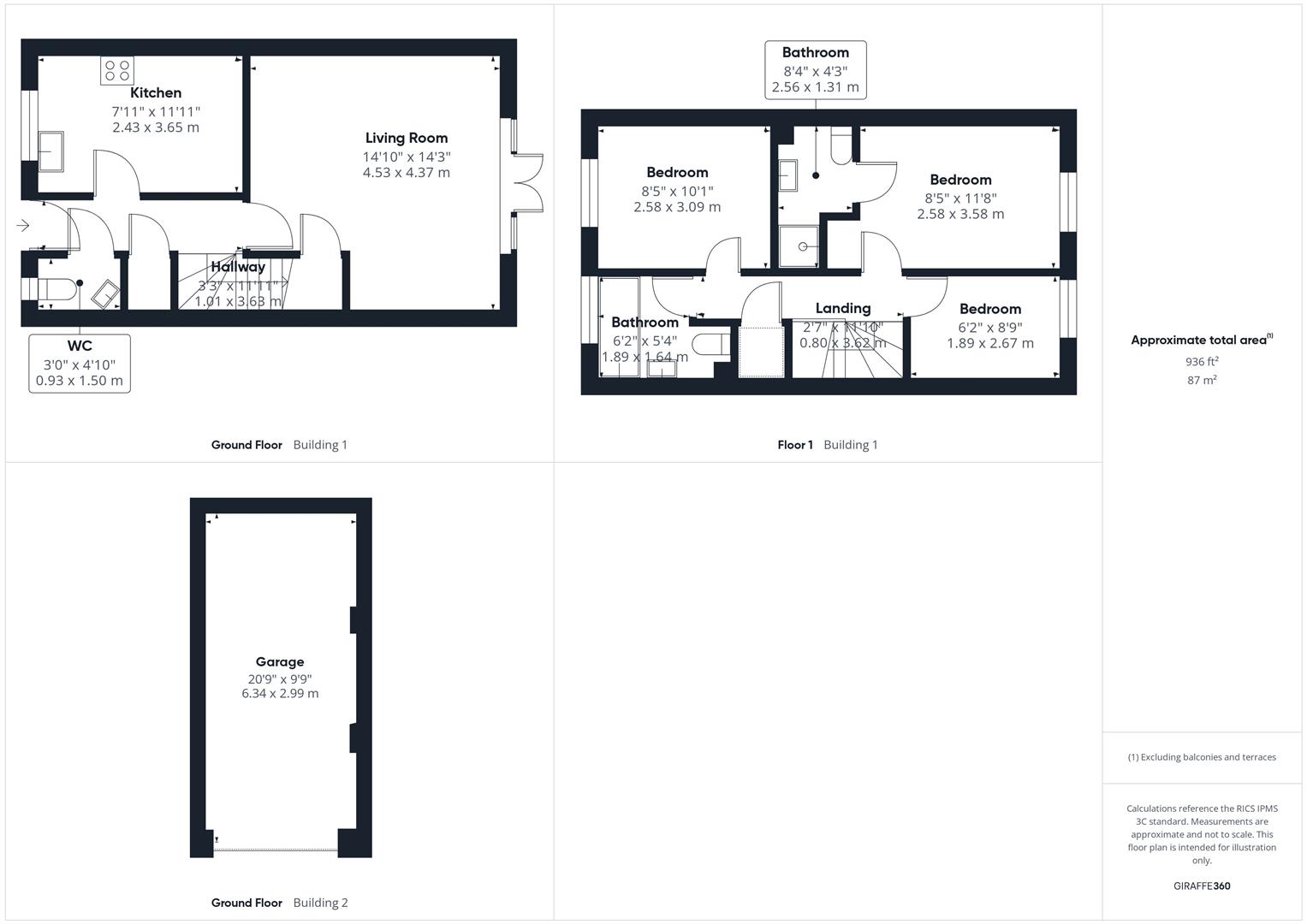
A three bedroom semi-detached home located in the new Kingsbrook development, situated close to local amenities and schools, with excellent road links for commuters. The property offers a modern kitchen, living room and a downstairs cloakroom. Upstairs features three bedrooms, including a main bedroom with en-suite, along with a contemporary family bathroom. Outside, the home benefits from a private garden, garage and driveway.

Location - Kingsbrook is an exciting new community of homes in Aylesbury. Designed in close consultation with RSPB, this beautiful location will ensure nature has a home too. Acres of meadowland, parks play areas & new schools will be built here making this a popular family destination. Kingsbrook is on the Southeast side of the town centre and offers good access to the A418 towards Milton Keynes and the A41 towards Tring & London. Please note there is an Estate Management charge.

Accommodation - The accommodation begins with an entrance hall featuring stairs rising to the first floor, a useful storage cupboard and a downstairs cloakroom. To the front of the property is a modern fitted kitchen, equipped with an inset gas hob, oven, extractor hood and splashback, along with integrated appliances including a fridge, washing machine and dishwasher.

To the rear, the spacious living room offers a bright and comfortable living space, benefitting from a built-in storage cupboard and double doors opening directly onto the rear garden.

Upstairs, the landing provides access to the loft and an airing cupboard. There are three bedrooms, with the main bedroom enjoying the added benefit of an en-suite shower room. A family bathroom serves the remaining bedrooms.

Externally, the property boasts a fully enclosed rear garden, laid mainly to lawn with a patio area and gated side access leading to the front. Further benefits include a garage with an up-and-over door, with driveway parking positioned directly in front of the garage.

Property Ref: 34404784

Share:

Similar Properties

Old Forge Gardens, Bierton, Aylesbury

2 Bedroom Detached Bungalow | Offers in excess of £385,000

A two bedroom detached bungalow situated in the village of Bierton, offered to the market with no upper chain. The prope...

Ingram Avenue, Bedgrove, Aylesbury

3 Bedroom Terraced House | Offers in excess of £380,000

A three bedroom terraced home located in the sought-after Bedgrove area, within walking distance to top rated schools an...

Ceely Road, Southcourt, Aylesbury

3 Bedroom End of Terrace House | Guide Price £375,000

A three bedroom end-terrace house located in a popular southside residential area, ideally situated close to schools and...

Welbeck Avenue, Bedgrove, Aylesbury

2 Bedroom Bungalow | Offers in excess of £400,000

A two bedroom semi-detached bungalow situated in the highly sought after Bedgrove area. The property offers a living roo...

Armstrongs Fields, Kingsbrook, Aylesbury

3 Bedroom Semi-Detached House | Offers in excess of £400,000

A three bedroom semi-detached home located in the new and popular Kingsbrook development. Arranged over three floors, th...

Edge Street, Aylesbury, Buckinghamshire

3 Bedroom End of Terrace House | Offers in excess of £400,000

An immaculately presented three bedroom house set over three floors, close to local schools & amenities. The property of...

George David & Co (Aylesbury)

Aylesbury, Buckinghamshire, HP20 1SE

01296 393393

How much is your home worth?

Use our short form to request a valuation of your property.

Request a Valuation

Mortgage Calculator

Amount Borrowed: £
Total Amount Repayable: £
Total Monthly Payment: £
©2026 The Guild of Property Professionals. All rights reserved. Terms and Conditions | Privacy Policy | Cookie Policy | Complaints Policy | Members Login
The Guild of Property Professionals Trading Address: 121 Park Lane, London W1K 7AG. GPEA Limited. Registered in England & Wales.  Company No: 02819824.  Registered Office Address: 2 St. Stephen's Court, St. Stephen's Road, Bournemouth, Dorset, England, BH2 6LA.  VAT Registration No: 576 8795 61
Book a Property Valuation Update Cookies Preferences