Tring Road, Aylesbury, Buckinghamshire

Offers in excess of
£325,000
SSTC
This property listing is now SSTC

2 Bedroom Terraced House for sale in Aylesbury

1 2 1
  • CENTRAL LOCATION
  • NO UPPER CHAIN
  • TWO BEDROOM PERIOD PROPERTY
  • MODERN BATHROOM
  • WALKING DISTANCE OF TOWN CENTRE AND STATION
  • SOUTH-FACING GARDEN
  • GARAGE TO THE REAR
  • OPEN-PLAN LIVING / DINING ROOM
  • UTILITY / WC
  • CLOSE TO GRAMMAR SCHOOLS

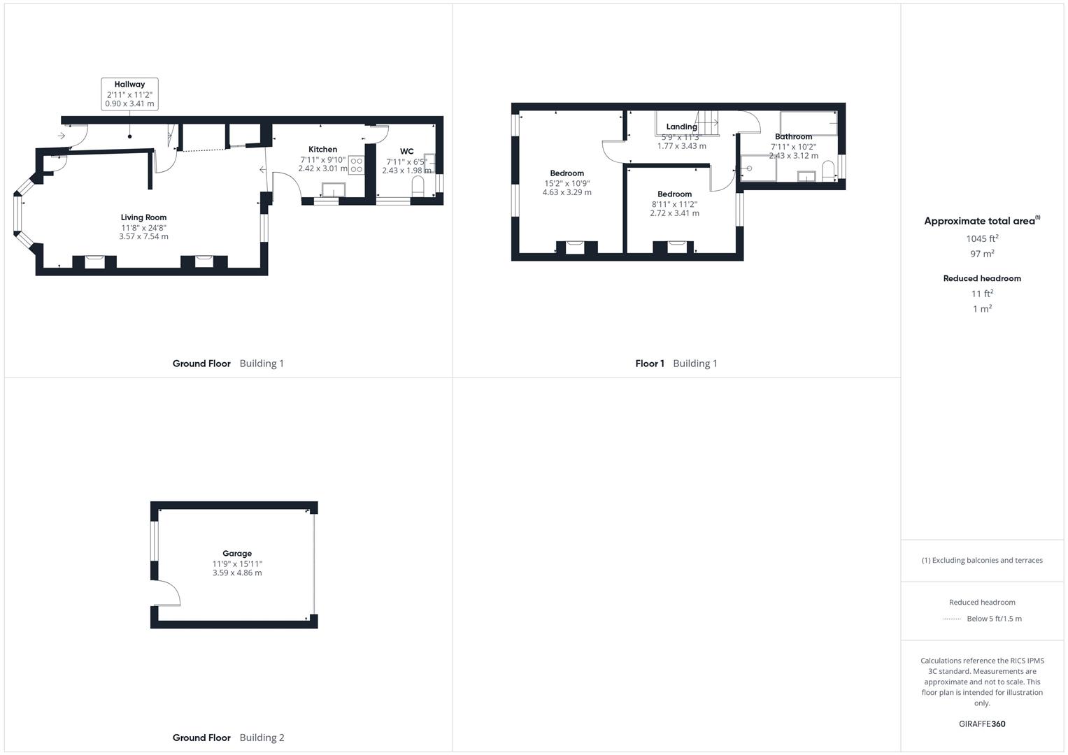
A well located two bedroom terraced house offered with no upper chain. Situated in a central position within easy walking distance of the town centre and mainline station, the property features a living room, dining room, kitchen and a useful utility/WC. Upstairs offers two bedrooms and a family bathroom. Outside, there is a south-facing garden and a garage to the rear, providing valuable additional storage or parking.

Location - Aylesbury town centre is within walking distance, with an excellent range of shopping and recreational facilities, numerous restaurants and a main line rail station (Marylebone 1 hour). Aylesbury is particularly well served by three of the area's top performing Grammar Schools- Aylesbury Grammar School for boys, High School for Girls and Sir Henry Floyd (mixed). Inspired by the rolling Chiltern Hills, the Aylesbury Waterside Theatre provides an entertaining evening out at the heart of the Canalside and beautiful outdoor purpose-built restaurant and entertainment. Short walking distance to Aquavale swimming & fitness centre, Tesco superstore & the mainline line rail station (Marylebone 1 hour) & there is good access by road onto the A41 leading towards London/M25.

Accommodation - Upon entering, you are welcomed by an entrance hall with stairs rising to the first floor. The hall leads into an inviting open-plan living room/dining room, featuring two attractive gas fireplaces and ample space for a range of furniture, creating a warm and flexible living area.

To the rear, the kitchen is fitted with an inset gas hob, oven and cooker hood, with additional space for a fridge and dishwasher. A door opens directly onto the garden. Adjacent to the kitchen is a convenient utility/WC, offering space for a washing machine and tumble dryer.

The first floor provides loft access, two well-proportioned double bedrooms, and a modern family bathroom complete with a shower cubicle, WC, sink, and separate bathtub.

Outside, the property boasts a south-facing garden with both patio and lawned areas, ideal for outdoor dining and relaxation. At the rear of the garden, there is access to a garage equipped with light and power, offering excellent storage or secure parking.

Property Ref: 6584685_34346571

Share:

Similar Properties

Grenville Road, Southcourt, Aylesbury

3 Bedroom Semi-Detached House | Guide Price £325,000

A THREE BEDROOM SEMI DETACHED PROPERTY situated to the South of the town centre with the benefits of a large rear garden...

Albion Street, Aylesbury, Buckinghamshire

2 Bedroom Terraced House | £325,000

This charming home is ideally situated within walking distance of the town centre, train station and local amenities. Th...

Belgrave Road, Aylesbury, Buckinghamshire

3 Bedroom Terraced House | £325,000

A three bedroom terraced house set back from the road, close to local amenities and schools. Offered chain free the prop...

Bicester Road, Aylesbury, Buckinghamshire

3 Bedroom End of Terrace House | Guide Price £330,000

A spacious three bedroom end-of-terrace home ideally located within walking distance of the town centre and train statio...

Elderberry Road, Berryfields, Aylesbury

2 Bedroom Terraced House | £330,000

A well presented two bedroom end-of-terrace home located in the popular Berryfields development, ideally situated close...

Highbridge Walk, Aylesbury, Buckinghamshire

2 Bedroom Terraced House | £335,000

A well presented two bedroom terraced house in a central location, conveniently close to the town centre and grammar sch...

George David & Co (Aylesbury)

Aylesbury, Buckinghamshire, HP20 1SE

01296 393393

How much is your home worth?

Use our short form to request a valuation of your property.

Request a Valuation

Mortgage Calculator

Amount Borrowed: £
Total Amount Repayable: £
Total Monthly Payment: £
©2026 The Guild of Property Professionals. All rights reserved. Terms and Conditions | Privacy Policy | Cookie Policy | Complaints Policy | Members Login
The Guild of Property Professionals Trading Address: 121 Park Lane, London W1K 7AG. GPEA Limited. Registered in England & Wales.  Company No: 02819824.  Registered Office Address: 2 St. Stephen's Court, St. Stephen's Road, Bournemouth, Dorset, England, BH2 6LA.  VAT Registration No: 576 8795 61
Book a Property Valuation Update Cookies Preferences