Betjeman Close, Larkfield, Aylesford

£290,000
SSTC
This property listing is now SSTC

2 Bedroom Semi-Detached House for sale in Aylesford

1 2 1
  • Impressively Presented Semi Detached House
  • Two Well Proportioned Bedrooms
  • Good Sized Living Room
  • Kitchen/Diner
  • Pleasant Rear Garden
  • First Floor Bathroom/Wc
  • View Over Open Green Space to the Rear
  • Allocated Parking Space
  • Cul De Sac Position
  • EPC Rating D

This beautifully presented two-bedroom semi-detached home is located on the ever-popular Poets Development in Larkfield. Decorated and maintained by the current owner to a high standard, the property features a modern interior and offers comfortable, low-maintenance living throughout.

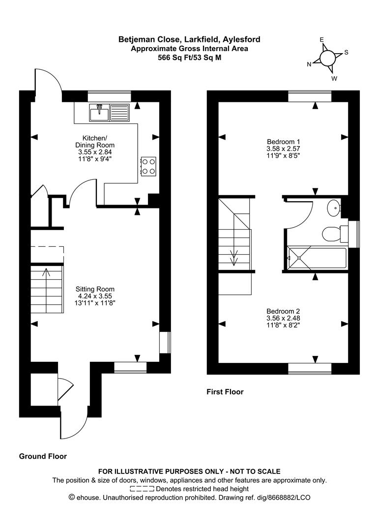
The accommodation comprises an entrance porch, a spacious living room, and a kitchen/diner to the ground floor. On the first floor, there is a landing, two good-sized bedrooms, and a modern bathroom/WC.

Externally, to the rear, there is a pleasant, low-maintenance garden, perfect for relaxing or entertaining. The property also benefits from an allocated parking space conveniently situated nearby.

The Poets Development is ideally positioned for a wide range of local amenities, including a Tesco Superstore, New Hythe railway station, and convenient access to Junction 4 of the M20 motorway.

Local Area Information For Larkfield - Larkfield is a sought after area thanks to its convenient access to so many things.

For recreation you have the local leisure centre at Larkfield, many parks, green spaces and countryside close by. Leybourne Lakes and Manor Park are particularly noteworthy.

There are a good range of shops, supermarkets and eateries in Larkfield (including Martin's Square). West Malling is the closest town (less than 2 miles away) and is one of the most attractive small towns in mid-Kent with a wide main street lined on each side by a fine collection shops and eateries. Maidstone is approximately 5 miles away.

For the commuter Junction 4 of the M20 gives access to the motorway network. There are mainline train stations at nearby West Malling, Aylesford and East Malling.

For education there is a comprehensive range of primary, grammar and private educational opportunities. For more schools information please visit www.kent-pages.co.uk/education or ask for a Page & Wells Key Facts for Buyers Guides.

Additional Information - Freehold
Council Tax Band C
EPC Rating D
UPVC Double Glazing
Gas Central Heating

Property Ref: 3221_34274504

Share:

Similar Properties

Oldfield Drive, Wouldham, Rochester

2 Bedroom Terraced House | Offers in excess of £280,000

Offers In Excess Of �280,000A well-presented 2-bedroom terraced house located in the popular village of Woul...

Whimbrel Green, Larkfield, Aylesford

3 Bedroom Terraced House | Offers Over £275,000

NO ONWARD CHAIN/ FABULOUS RENOVATION PROJECT 3 BEDROOM HOUSESituated in the popular Birds Estate is this 3 bedroom terra...

Brampton Field, Ditton

2 Bedroom Apartment | £275,000

COACH HOUSE STYLE apartment with garage situated in a most sought after location in Ditton. The property offers a spacio...

Apple Close, Snodland

3 Bedroom Terraced House | Offers Over £300,000

3 BEDROOM TERRACED HOME located in a sought after cul-de-sac in Snodland.**CHAIN FREE**This is a lovely home with good o...

Hayman Walk, Eccles, Aylesford

2 Bedroom Terraced House | Offers in region of £300,000

Located in the charming village of Eccles, Aylesford, this MODERN TWO BEDROOM house on Hayman Walk presents an excellent...

London Road, Walnut Tree Court, Larkfield, Aylesford

2 Bedroom Terraced House | Offers Over £300,000

WALNUT TREE COURT IS A SPACIOUS AND CHARMING COTTAGE in Larkfield. This lovely cottage built circa 1930-1940 is a really...

Page & Wells Larkfield Office (Larkfield)

Larkfield, Kent, ME20 6BL

01732 841164

How much is your home worth?

Use our short form to request a valuation of your property.

Request a Valuation

Mortgage Calculator

Amount Borrowed: £
Total Amount Repayable: £
Total Monthly Payment: £
©2025 The Guild of Property Professionals. All rights reserved. Terms and Conditions | Privacy Policy | Cookie Policy | Complaints Policy | Members Login
The Guild of Property Professionals Trading Address: 121 Park Lane, London W1K 7AG. GPEA Limited. Registered in England & Wales.  Company No: 02819824.  Registered Office Address: 2 St. Stephen's Court, St. Stephen's Road, Bournemouth, Dorset, England, BH2 6LA.  VAT Registration No: 576 8795 61
Book a Property Valuation Update Cookies Preferences