Ellis Street, Kilmarnock, KA1

Offers Over
£190,000
SSTC
This property listing is now SSTC

3 Bedroom Terraced House for sale in Ayrshire

2 3 2
  • Rarely available sandstone villa in sought-after Kilmarnock location
  • Flexible family accommodation arranged over three levels
  • Formal lounge with bay window
  • Additional sitting room
  • Open-plan dining room and kitchen
  • Convenient ground floor shower room
  • Private walled rear garden
  • Superb opportunity to modernise and create a forever home

*** CLOSING DATE - FRIDAY 17TH OCTOBER AT 12 NOON ***

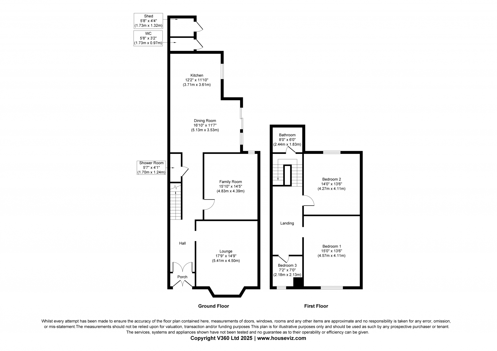
Property Matters are delighted to present to the market this rarely available sandstone villa at 13 Ellis Street, Kilmarnock. Set within a highly sought-after area, this substantial home offers flexible family accommodation arranged over three levels and represents an exciting opportunity to create a truly bespoke residence.

The ground floor features a bright formal lounge with bay window, an additional sitting room, and an open-plan dining room with adjoining kitchen — ideal for family living and entertaining. A convenient shower room completes this level.

On the mid-level landing you will find the family bathroom, while the upper floor boasts two generously proportioned bedrooms and a versatile box room, perfect as a nursery, study, or dressing room.

While the property requires modernisation, it presents superb potential to be transformed into a forever home, tailored to your own taste and lifestyle.

Externally, the villa enjoys a private walled garden to the rear, a detached garage, and gated access to the lane. Additional outbuildings offer excellent storage or the option to convert into further living space.

Location

Kilmarnock is a thriving town in East Ayrshire offering a great mix of amenities, green spaces, and excellent transport links. The town centre provides a variety of shops, cafés, and restaurants, alongside cultural attractions such as The Palace Theatre and the Dick Institute. Families benefit from highly regarded schools including the William McIlvanney Campus, Kilmarnock Academy, and Saint Joseph’s Academy. Outdoor enthusiasts can enjoy nearby Dean Castle Country Park and Kay Park, while commuters appreciate easy rail connections and direct access to the M77 for travel to Glasgow and beyond.

VIEWINGS: By appointment only.

PARTICULARS: Property Matters Ayrshire Ltd for themselves and for the sellers of this property whose agents they are, give notice that the particulars are produced in good faith, are set out as a general guide only and do not constitute any part of a contract and that no person in the employment of Property Matters Ltd has any authority to make or give any representation or warranty whatever in relation to this property. Intending purchasers must satisfy themselves, by inspection or otherwise, on all matters.

OFFERS: Offers must be submitted in Scottish legal form to the sole selling agents. Formal note of interest should be registered prior to offering. A closing date will only be notified to parties who have registered interest through their solicitors. The seller reserves the right to accept any offer at any time.

Important Information

  • This is a Freehold property.

Property Ref: 5555678_prmalt_1220130786

Share:

Similar Properties

Wallacetown Avenue, Kilmarnock, KA3

3 Bedroom Detached House | Fixed Price £190,000

Property Matters Online aredelighted to present this well-presented three-bedroom DETACHED VILLA ideallysituated within...

Seaforth Road, Stewarton, KA3

3 Bedroom Semi-Detached House | Fixed Price £190,000

Property Matters Online are delighted to present to the market this exceptional 3 BED SEMI-DETACHED VILLA.   This proper...

Westray Drive, Kilmarnock, KA3

3 Bedroom Detached House | Offers Over £190,000

Property Matters Online is delighted topresent this well-proportioned three-bedroom detached villa, ideally located inth...

PORTING CROSS PLACE, KILMARNOCK, KA3

4 Bedroom Detached House | Offers Over £194,995

Property Matters Online are delighted to offer to the market this well-proportioned and tastefully presented modern 4 be...

Pen Y Maes, Kilgrammie, KA26

4 Bedroom Detached Bungalow | Offers Over £194,995

Property Matters Online are delighted to present to the market this rarely available four bedroom DETACHED BUNGALOW situ...

Eday Crescent, Kilmarnock, KA3

3 Bedroom Detached House | Fixed Price £194,995

Property Matters Online are delighted to present thiswell-presented three-bedroom DETACHED VILLA ideally situated within...

Property Matters Online (Kilmarnock)

Kilmarnock, Ayrshire, KA1 1BG

01563 558877

How much is your home worth?

Use our short form to request a valuation of your property.

Request a Valuation

Mortgage Calculator

Amount Borrowed: £
Total Amount Repayable: £
Total Monthly Payment: £
©2025 The Guild of Property Professionals. All rights reserved. Terms and Conditions | Privacy Policy | Cookie Policy | Complaints Policy | Members Login
The Guild of Property Professionals Trading Address: 121 Park Lane, London W1K 7AG. GPEA Limited. Registered in England & Wales.  Company No: 02819824.  Registered Office Address: 2 St. Stephen's Court, St. Stephen's Road, Bournemouth, Dorset, England, BH2 6LA.  VAT Registration No: 576 8795 61
Book a Property Valuation Update Cookies Preferences