Kirkdyke, Main Street, Craigie, KA1

Fixed Price
£425,000
SSTC
This property listing is now SSTC

6 Bedroom Detached House for sale in Ayrshire

4 6 3
  • Rarely available unique home
  • Set within substantial grounds
  • Large detached stabling block offering great potential
  • Granny Annexe
  • Solar panels

Property Matters Online are delighted to present to the market “Kirkdyke” this rarely available UNIQUE DETACHED HOUSE nestled in the quaint village of Craigie. This well-maintained property boasts a blend of modern and quality traditional features with bespoke features throughout. Sure to impress the property already has its own “granny annexe” and stabling block offering great potential. In addition, the lower level lounge was previously a swimming pool which could potentially be re-instated by any new owner.

Locality

Craigie is a small village in South Ayrshire. The village is well located for access to all amenities with easy access by car to Kilmarnock, Troon, Ayr via the A77 and M77. Rail links are also close to hand as is Prestwick airport giving access to numerous destinations.

There are a selection of well-regarded schools in the area -Symington and Annanhill (Primary) and The Grange and Prestwick Academy (Secondary) which run a bus service from the village. Surrounded by open countryside Craigie is a lovely place to be.

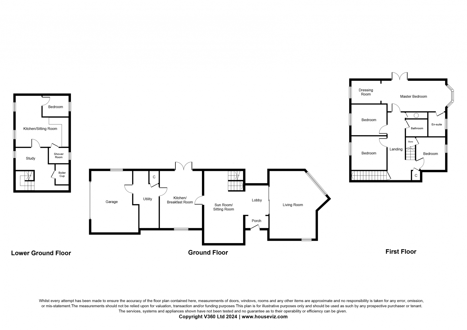
The accommodation.

The accommodation is laid out over three levels, comprising bright entrance dining hall giving access to the side facing lounge with feature stone fireplace and large window formation to the side with open country view; fully fitted modern kitchen with ample range of base and wall units with complementary worktops, integrated hob with electric hood, integrated electric double oven, microwave, dishwasher, and free-standing American fridge freezer. Off is the utility room with door leading to integrated garage, which itself has a handy storage room. There is door from the utility to the rear garden area. Stairs from the dining hall led to both lower and upper level. The lower-level accommodation has flexible living accommodation with a sitting area with side facing windows and feature wood burner. The boiler room is located off this. From the sitting area you can access the “Granny Annexe” area with lounge area (formerly swimming pool area), there is also a fitted kitchen area, shower room and good-sized double bedroom. On the upper level there is the main bedroom with dressing room and en suite and three further bedrooms. There is also a modern family bathroom. Finally, there is an attic room with was previously used as a bedroom.

Exterior

The property is set within substantial grounds. Mainly laid to lawn with decking and patio areas and large pond. This is an ideal spot for relaxation and entertainment. There is a large detached stabling bloc which could be adapted to offer many different uses.

Full double glazing and central heating. Solar Panels.

Summary

Rarely does an amazing property like this come to the market. Offering endless possibilities this lovely family home is sure to impress all who view. Early viewing advised.

Sizes Approx. (at widest points)


GROUND FLOOR

DINING HALL

8.12m x 5.96m

LOUNGE

7.07m x 5.58m

KITCHEN

5.04m x 3.78m

UTILITY

3.15m x 2.02m

GARAGE

6.83m x 5.09m

GARAGE ROOM

6.83m x 3.11m

LOWER HALL

LOUNGE AREA

4.14m x 3.81m

BOILER ROOM

2.37m x 1.78m

ANNEXE

LOUNGE AREA

6.37m x 4.21m

KITCHEN AREA

2.92m x 2.45m

BEDROOM

2.80m x 2.76m

SHOWER ROOM

3.02m x 1.36m

BEDROOM

3.54m x 3.31m

UPPR LEVEL

MAIN BEDROOM

5.24m x 2.92m

DRESSING ROOM

3.05m x 2.19m

EN SUITE

2.62m x 1.37m

BEDROOM

4.41m x 3.05m

BEDROOM

3.88m x 2.71m

BEDROOM

3.05m x 2.33m

BATHROOM

2.65m x 1.85m

ATTIC ROOM

6.13m x 2.57m


EER:- F


Viewings:- By appointment only.

PARTICULARS Property Matters Ltd for themselves and for the sellers of this property whose agents they are, give notice that the particulars are produced in good faith, are set out as a general guide only and do not constitute any part of a contract and that no person in the employment of Property Matters Ltd has any authority to make or give any representation or warranty whatever in relation to this property. Intending purchasers must satisfy themselves, by inspection or otherwise, on all matters.

OFFERS Offers must be submitted in Scottish legal form to the sole selling agents. Formal note of interest should be registered prior to offering. A closing date will only be notified to parties who have registered interest through their solicitors. The seller reserves the right to accept any offer at any time


Important Information

  • This is a Freehold property.

Property Ref: 5555678_prmalt_1469141086

Share:

Similar Properties

Dundonald Road, Kilmarnock, KA1

4 Bedroom Detached Bungalow | Offers Over £415,000

Property MattersOnline are delighted to present 107 DUNDONALD ROAD, KILMARNOCK.  This rarely available DETACHED TRADITIO...

Beech Croft, Auchencloigh, KA4

5 Bedroom Detached House | Offers Over £399,995

**** Please find a copy of the home report attached below the property text **** Property Matters Online are delighted t...

Eglintoun Road, Stewarton, KA3

4 Bedroom Detached House | Offers Over £379,995

Property Matters Online aredelighted to present to the market this very spacious four-bedroom DETACHEDVILLA situated wit...

Pollock-Morris Drive, Crosshouse, KA2

5 Bedroom Detached House | Offers Over £599,995

Property Matters Online aredelighted to present to the market 8 Pollock Morris Drive.  Set within the exclusive “Craig H...

Property Matters Online (Kilmarnock)

Kilmarnock, Ayrshire, KA1 1BG

01563 558877

How much is your home worth?

Use our short form to request a valuation of your property.

Request a Valuation

Mortgage Calculator

Amount Borrowed: £
Total Amount Repayable: £
Total Monthly Payment: £
©2025 The Guild of Property Professionals. All rights reserved. Terms and Conditions | Privacy Policy | Cookie Policy | Complaints Policy | Members Login
The Guild of Property Professionals Trading Address: 121 Park Lane, London W1K 7AG. GPEA Limited. Registered in England & Wales.  Company No: 02819824.  Registered Office Address: 2 St. Stephen's Court, St. Stephen's Road, Bournemouth, Dorset, England, BH2 6LA.  VAT Registration No: 576 8795 61
Book a Property Valuation Update Cookies Preferences