The Glebe Freshford

£475,000

3 Bedroom Semi-Detached House for sale in Bath

2 3 1
  • Large Tiered Garden Featuring A Side Patio
  • Fantastic Views Of Rolling Hills From The Garden And Front Facing Rooms
  • Fantastic Flow Featuring A Full Width Kitchen/Diner
  • Cul-De-Sac Location In The Rarely Afforded Village Of Freshford
  • Generous Room Sizes Throughout
  • Ground Floor Cloakroom

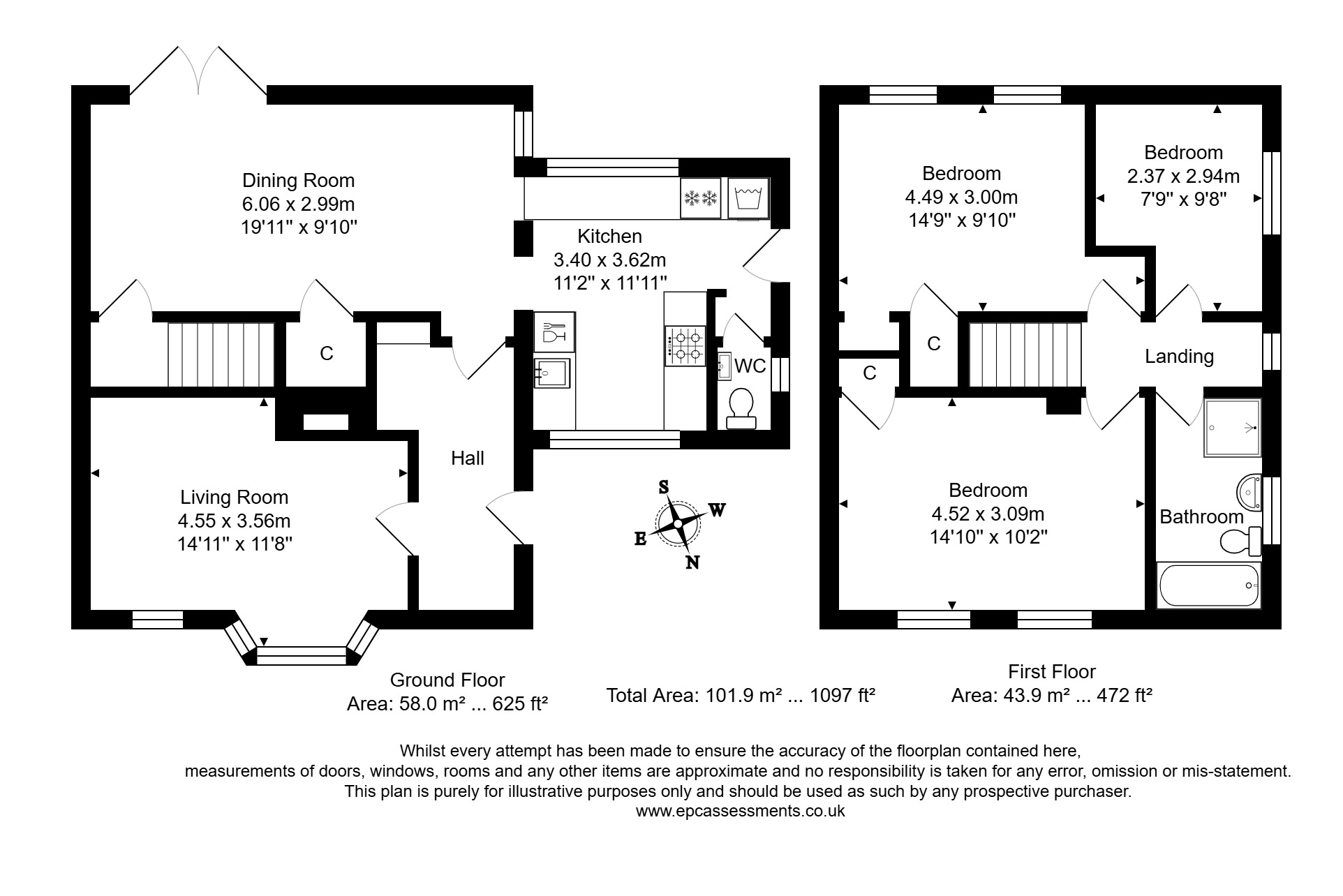
A rarely afforded opportunity to acquire a well-proportioned family home in the ever popular village of Freshford, occupying a large plot and featuring three generous bedrooms in a Cul-De-Sac location. Internally the property comprises an entrance hall which provides access to the living room and the full-width kitchen/dining space which is flooded with natural light and benefits from garden access from the dining area, patio access from the kitchen and wonderful views of rolling hills to the front aspect. The first floor accommodation comprises three spacious bedrooms and a family bathroom featuring a four piece suite. Externally the property boasts a large plot offering breath-taking rural views which must be seen to be fully appreciated! The garden offers two tiered sections of garden which are fantastic for entertaining children and guests whilst leaving enough space for those who are particularly green thumbed and enjoy gardening. The side patio is a wonderful space for alfresco dining and benefits from a glorious view to absorb.

Freshford is a beautiful village nestled into the edge of the Cotswolds AONB on the outskirts of Bath, rich in community spirit with a primary school & pre-school within the village and the Galleries Community Shop & Cafe which is run by the residents of Freshford & Limpley Stoke. There are an abundance of wooded valleys, open hills, canal-side paths and riverside walks to enjoy making this a wonderful location to be connected to the rural countryside whilst being close to the amenities of Bath. Freshford is also home to a very popular Public House named Freshford Inn which is under new management & ownership having undergone a refurbishment, Homewood Hotel & Spa is also within the village and a train station with free parking is also home to Freshford!

Important Information

  • This is a Freehold property.
  • This Council Tax band for this property is: C
  • EPC Rating is C

Property Ref: DDB_DDB220609

Share:

Similar Properties

Ashgrove Peasedown St John

3 Bedroom Detached House | Asking Price £470,000

Charming period detached house in a picturesque village setting. This 3-bedroom property boasts a large garden, off-road...

Park Corner Freshford

3 Bedroom Terraced House | Offers Over £450,000

A charming unlisted period cottage situated in the sought after village of Freshford, ideally situated just five miles f...

Baileys Barn Bradford On Avon

3 Bedroom Terraced House | Offers in excess of £450,000

Hidden away in this idyllic position overlooking the picturesque Kennet & Avon Canal, a beautifully presented modern tow...

Devizes Road Box

3 Bedroom Detached House | Guide Price £500,000

Charming detached 3-bedroom house in a picturesque village setting. Boasting a large garden and off-road parking, this p...

Frome Road Bradford on Avon

3 Bedroom End of Terrace House | Asking Price £520,000

Full of character and beautifully cared for, this end of terrace period home truly is a special offering in a highly reg...

Beckerley Lane Holt

4 Bedroom Detached House | £550,000

An executive four bedroom detached family home tucked away at the end of a well regarded cul-de-sac location offering am...

Davies & Davies (Bradford on Avon)

Bradford on Avon, Wiltshire, BA15 1JY

01225 867 555

How much is your home worth?

Use our short form to request a valuation of your property.

Request a Valuation

Mortgage Calculator

Amount Borrowed: £
Total Amount Repayable: £
Total Monthly Payment: £
©2025 The Guild of Property Professionals. All rights reserved. Terms and Conditions | Privacy Policy | Cookie Policy | Complaints Policy | Members Login
The Guild of Property Professionals Trading Address: 121 Park Lane, London W1K 7AG. GPEA Limited. Registered in England & Wales.  Company No: 02819824.  Registered Office Address: 2 St. Stephen's Court, St. Stephen's Road, Bournemouth, Dorset, England, BH2 6LA.  VAT Registration No: 576 8795 61
Book a Property Valuation Update Cookies Preferences