Baylham, Suffolk

£1,400,000

5 Bedroom Detached House for sale in Baylham

5 4
  • EXCEPTIONAL LONG STRAW CONVERTED BARN
  • 17TH CENTURY ORIGINS
  • GRADE II LISTED
  • IN ALL 7 ACRES
  • STUNNING VAULTED RECEPTION HALL
  • BEAUTIFUL CHARACTER FEATURES
  • FAR REACHING PANORAMIC VIEWS

Chamberlain Phillips is proud to present this exceptional opportunity to acquire a breathtaking 17th-century long straw thatched and part-flint converted barn, set within approximately seven acres (STMS) of idyllic countryside. Brimming with character, the property boasts an abundance of period features including exposed timbers and soaring vaulted ceilings, all complemented by panoramic views across the gently undulating landscape.

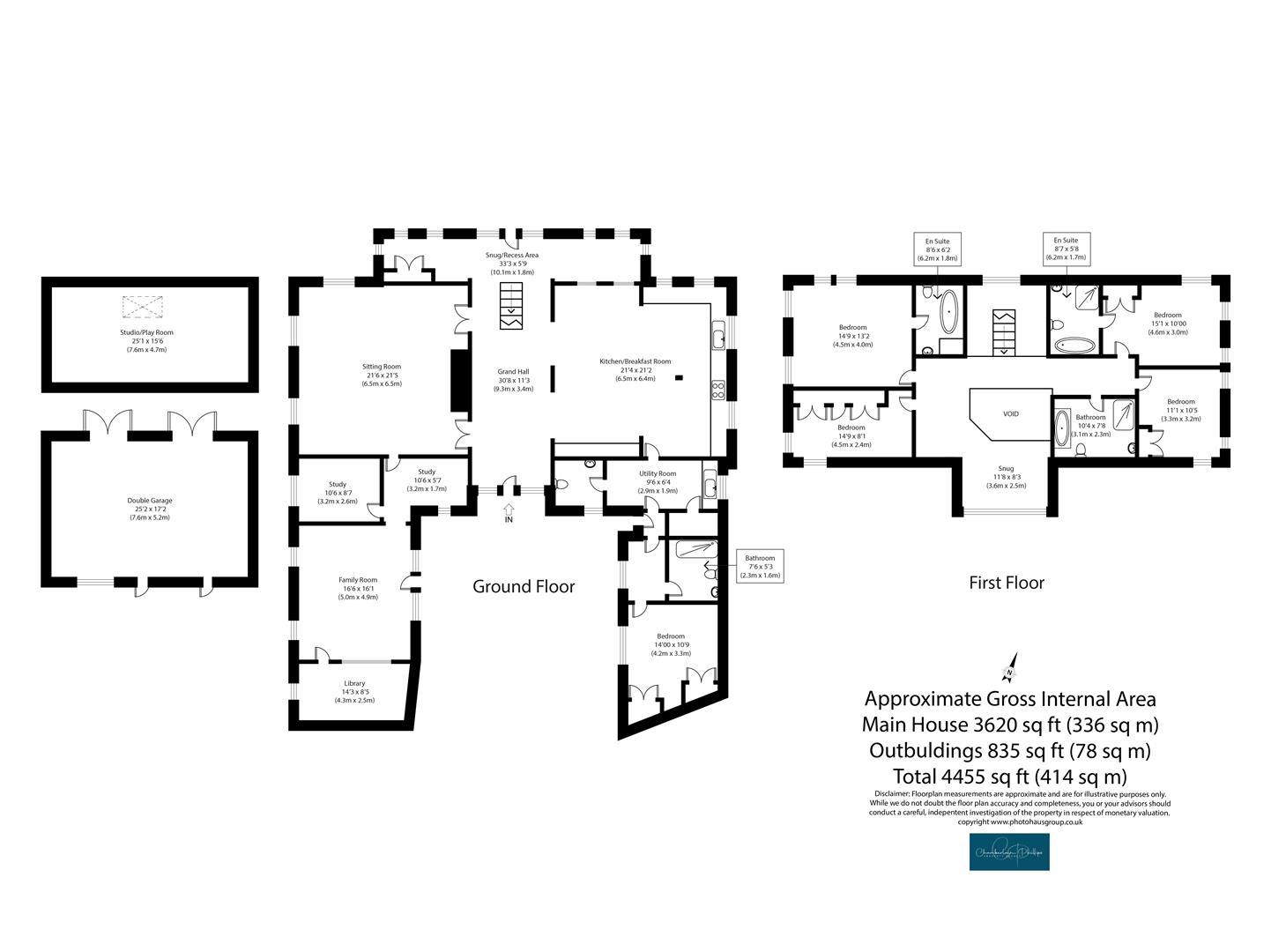
Upon entering, you are welcomed into a grand reception hall with impressive vaulted ceilings and a handcrafted oak staircase rising to a striking galleried landing. The hall leads through to a spacious kitchen/dining room-ideal for family living and entertaining-as well as a generous sitting room with charming rural views.

The ground floor also comprises a study, family room, office, utility room, cloakroom, and a versatile ground floor bedroom with en-suite, perfect for guests or easily adapted into a self-contained annexe, making this an excellent option for multi-generational living. The flexible layout offers privacy and independence, ideal for elderly relatives, adult children, or even au pair accommodation.

Upstairs, the galleried landing opens to a peaceful seating area and leads to four well-proportioned double bedrooms, two of which benefit from en-suite facilities, in addition to a well-appointed family bathroom.

The property's seven-acre grounds offer exceptional versatility and are perfectly suited for those seeking an equestrian lifestyle. With paddocks, open grazing, and space for stables (subject to any necessary permissions), the land provides excellent scope for horse owners or countryside hobbyists looking for freedom and space.

For those interested in a smallholding, the land is equally well-suited to light agricultural use, featuring a vegetable garden, orchard, and wildflower meadow-perfect for growing produce, keeping chickens or livestock, or embracing a more sustainable way of living.

A sweeping shingle driveway, accessed via electric gates, offers ample parking and leads to a detached double garage with an impressive studio above-ideal for use as a creative space, or further guest accommodation.

The landscaped gardens feature mature lawns, vibrant borders bursting with specimen plants and seasonal blooms, and a variety of majestic trees including oak, silver birch, weeping willow, and hornbeam. A circular patio in the south-facing garden provides the perfect setting for al fresco dining and entertaining, framed by nature's beauty and the tranquil sounds of the countryside and approximately ? of an acre for vegetable growing. The area also includes a shed, large compost bays and a rain collection system.

This outstanding home effortlessly combines historic charm with modern comfort, offering a unique and versatile lifestyle in one of the region's most picturesque rural settings.

The Surrounding Area:

Nestled in the heart of the Suffolk countryside, Baylham is a charming and tranquil village that perfectly captures the essence of rural English living. Surrounded by rolling farmland, meandering country lanes, and picturesque views, Baylham offers a peaceful yet well-connected lifestyle-ideal for those seeking a slower pace without sacrificing convenience.

The village is steeped in history, with roots dating back to the Domesday Book and features such as its beautiful medieval church and the popular Baylham House Rare Breeds Farm, which adds to the area's character and community charm.

Despite its rural feel, Baylham enjoys excellent connectivity. The nearby A14 and A12 provide swift access to Ipswich, Bury St Edmunds, and Colchester, while Needham Market train station-just a few minutes' drive away-offers regular services to London Liverpool Street, making it a practical choice for commuters.

The surrounding area offers a wealth of leisure and lifestyle amenities. Picturesque walking routes, bridleways, and cycling paths wind through the local countryside, and nearby market towns such as Needham Market and Stowmarket provide independent shops, cafes, pubs, and essential services. The county town of Ipswich, just under 8 miles away, offers a broader range of shopping, cultural attractions, and schooling options.

With its blend of rural beauty, strong transport links, and community warmth, Baylham is a sought-after village for families, professionals, and retirees alike-an ideal place to put down roots and enjoy the best of country living in Suffolk.

Agents Notes:
Tenure - Freehold
Council tax - G
Services - Electric/private drainage/water
Heating - Via Oil & LPG Fire
Mobile - All networks cover outdoor
Broadband - Ultrafast is available

Property Ref: 512123_34049653

Share:

Similar Properties

Stour Heights

6 Bedroom Detached House | £1,350,000

Discover an exquisite sanctuary that redefines the essence of luxurious family living and versatile accommodation. This...

Flatford Lane, East Bergholt, Colchester

5 Bedroom Detached House | £1,350,000

Nestled in the heart of the Dedham Vale National Landscape, this remarkable detached residence presents an idyllic retre...

Long Road West, Dedham

6 Bedroom Detached House | £950,000

Nestled within the bucolic splendour of the Dedham Vale, an area renowned for its outstanding natural beauty and artisti...

Flatford Lane, East Bergholt

5 Bedroom House | £1,575,000

Nestled in the heart of the idyllic East Bergholt, this exquisite five-bedroom house presents a unique opportunity for f...

Chamberlain Phillips (Manningtree)

Summers Park, Lawford, Manningtree, Essex, CO11 2BZ

01206 646479

How much is your home worth?

Use our short form to request a valuation of your property.

Request a Valuation

Mortgage Calculator

Amount Borrowed: £
Total Amount Repayable: £
Total Monthly Payment: £
©2025 The Guild of Property Professionals. All rights reserved. Terms and Conditions | Privacy Policy | Cookie Policy | Complaints Policy | Members Login
The Guild of Property Professionals Trading Address: 121 Park Lane, London W1K 7AG. GPEA Limited. Registered in England & Wales.  Company No: 02819824.  Registered Office Address: 2 St. Stephen's Court, St. Stephen's Road, Bournemouth, Dorset, England, BH2 6LA.  VAT Registration No: 576 8795 61
Book a Property Valuation Update Cookies Preferences