Clock House Road, Beckenham

Guide Price
£600,000

2 Bedroom Flat for sale in Beckenham

2 2 1
  • VICTORIAN 2/3 BED SPLIT LEVEL CONVERSION
  • PRIVATE GROUND FLOOR ACCESS
  • PRIVATE GARDEN
  • TOP FLOOR ROOM REQUIRES REFURBISHMENT - EXCELLENT POTENTIAL
  • SHARE OF FREEHOLD
  • 0.1 MILES TO CLOCK HOUSE BR STATION
  • 0.3 MILES TO BECKENHAM ROAD TRAMLINK
  • COUNCIL TAX D
  • EPC RATING D

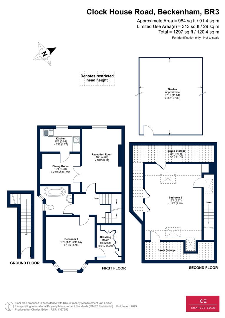
Oozing character and period charm, Charles Eden are delighted to present this Victorian era conversion arranged over three floors offering 2/3 bedrooms, a private garden, and endless potential, all just moments from excellent transport links.

Covered Entrance - Part glazed door leading into lobby.
Carpeted stairs to:

Stairs To First Floor - Part paneled walls, fitted carpet.

Landing - Part panelled walls, hardwood flooring.

Reception Room - Glazed sash window to rear, coved ceiling, ceiling rose, radiator housed in ornate radiator cover, feature fireplace with open grate, built-in base cupboards to one alcove, fitted carpet.
Double mirror doors opening to:

Dining Room - Radiator housed in ornate radiator cover, laminate wood flooring.

Kitchen - Glazed sash window to rear, recessed spot lights to ceiling, coved ceiling, range of wall and base units with worksurfaces over, stainless steel single bowl sink with mixer tap, four ring electric hob, single oven and microwave housed in tall oven unit, space for washing machine, fridge and freezer, part tiled walls, tiled flooring.

Bedroom One - Glazed sash bay windows to front, coved ceiling, ceiling rose, radiator, fitted carpet.
Door leading into:

Dressing Room (Originally Third Bedroom) - Glazed sash window to front, range of fitted wardrobes, radiator, hardwood flooring.
Agents note: We understand this was originally a bedroom however the seller blocked the entrance to the landing to create the dressing room which connects from the main bedroom

Bathroom/Wc - Two windows to side with shutters, roll top bath with claw feet and free standing chrome taps, wash hand basin with taps, low level WC, chrome ladder style heated towel rail, fully tiled walls, tiled flooring.

Stairs To Second Floor - Paneled walls, fitted carpet.

Landing - Velux style roof window.

Bedroom Two - Three Velux style roof windows, recessed spot lights to ceiling, eaves storage areas, floor boards.

Outside -

Rear Garden - Located to rear of the garden with shrubs, crazy paved patio area, and ornamental gravel.

Lease - 148 years from December 2001
124 years remaining

Maintenance Charge - Agents note: there are no annual maintenance charges but we understand, when repairs are required, these are split with the neighbouring property on an ad hoc basis.

Building Insurance £431.34 p.a.

Council Tax D -

Epc Rating D -

Property Ref: 13964_34091103

Share:

Similar Properties

Avenue Road, Beckenham

3 Bedroom Detached House | £600,000

A period detached property comprising a ground floor one bedroom garden maisonette and a two bedroom first floor maisone...

Aylesford Avenue, Beckenham

3 Bedroom Terraced House | Guide Price £587,000

Charles Eden are proud to offer this fantastic opportunity to acquire a well-maintained and spacious three bedroom terra...

Merlin Grove, Beckenham

3 Bedroom Terraced House | Offers in excess of £575,000

This three bedroom1930s built terraced house, which requires some updating, is situated in a tree lined residential road...

Eden Park Avenue, Beckenham

3 Bedroom Terraced House | Guide Price £650,000

Sold by Charles Eden. Pleasantly situated in the popular mid section of Eden Park Avenue this a three bedroom, two recep...

Allen Road, Beckenham

3 Bedroom Terraced House | Guide Price £650,000

Sold by Charles Eden. Significantly updated by the present owners over recent years this 3 bedroom family home has the s...

Faversham Road, Beckenham

3 Bedroom End of Terrace House | Guide Price £650,000

Charles Eden are delighted to present this attractive period, three bedroom end of terrace house set on a desirable road...

Charles Eden (Beckenham)

Beckenham, Kent, BR3 1AW

020 8663 1964

How much is your home worth?

Use our short form to request a valuation of your property.

Request a Valuation

Mortgage Calculator

Amount Borrowed: £
Total Amount Repayable: £
Total Monthly Payment: £
©2025 The Guild of Property Professionals. All rights reserved. Terms and Conditions | Privacy Policy | Cookie Policy | Complaints Policy | Members Login
The Guild of Property Professionals Trading Address: 121 Park Lane, London W1K 7AG. GPEA Limited. Registered in England & Wales.  Company No: 02819824.  Registered Office Address: 2 St. Stephen's Court, St. Stephen's Road, Bournemouth, Dorset, England, BH2 6LA.  VAT Registration No: 576 8795 61
Book a Property Valuation Update Cookies Preferences