160 Dunluce Avenue, Belfast

Asking Price
£150,000
SSTC
This property listing is now SSTC

3 Bedroom Terraced House for sale in Belfast

2 3 1



A bright and spacious mid-terrace in a most convenient location
Excellent proximity to Queens, the City Centre and both the City and Royal Victoria Hospitals
Generous living room to the front (optional fourth bedroom)
Separate dining room to the rear
Modern fitted kitchen with access to the rear yard
First floor bathroom with a white suite
Three generous bedrooms
Mains gas central heating, uPVC double glazing
Requiring some updating but suitable to a range of buyers

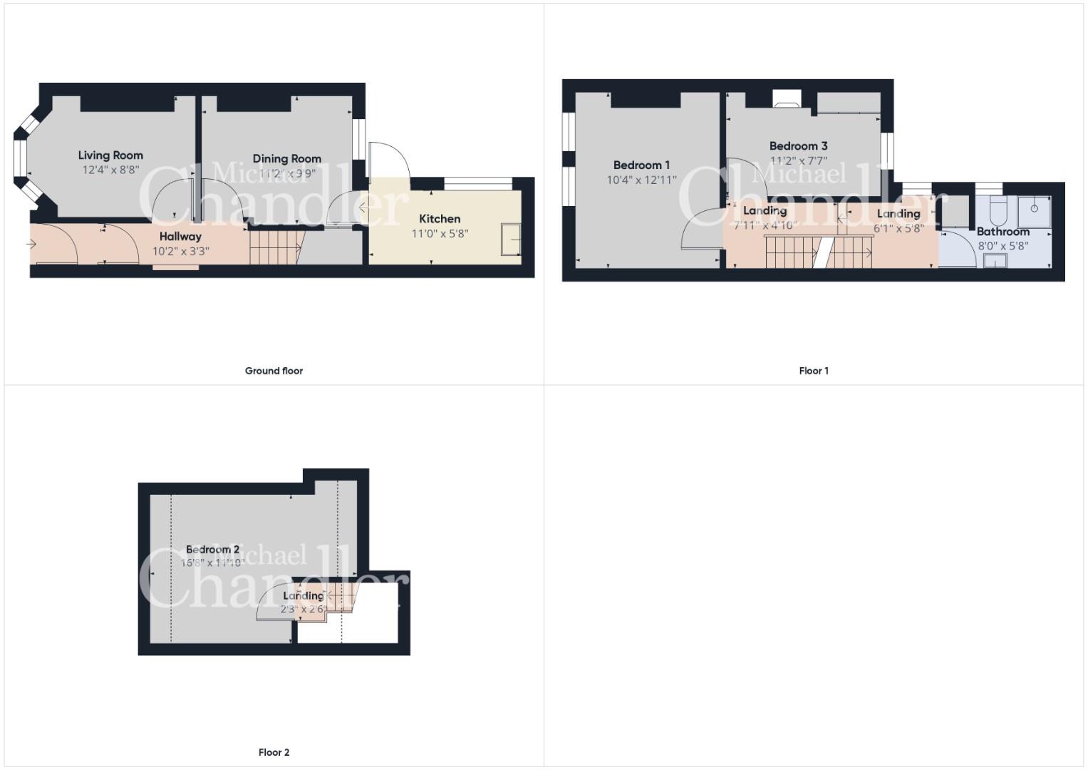
Reception Hall



Living Room



Dining Room



Kitchen



Bathroom



First Floor



Bedroom 1



Bedroom 3



Second Floor



Bedroom 2





Michael Chandler Estate Agents have endeavoured to prepare these sales particulars as accurately and reliably as possible for the guidance of intending purchasers or lessees. These particulars are given for general guidance only and do not constitute any part of an offer or contract. The seller and agents do not give any warranty in relation to the property. We would recommend that all information contained in this brochure is verified by yourself or your professional advisors. Services, fittings and equipment referred to in the sales details have not been tested and no warranty is given to their condition, nor does it confirm their inclusion in the sale. All measurements contained within this brochure are approximate.

Property Ref: 27676_33303884

Share:

Similar Properties

17 Queensfort Court, Carryduff, BT8 8NF

2 Bedroom Apartment | Asking Price £150,000

Life On The Level!Queensfort Court is an ‘over 55’s’ residential development in a very convenient location within Carryd...

2 Durness Walk, Dundonald

3 Bedroom Terraced House | Asking Price £150,000

Walk This Way!A stunning three mid-terrace property located in the Ballybeen area of Dundonald. Having been beautifully...

8 Little Enler Green, Comber

2 Bedroom Apartment | Asking Price £150,000

Little Beauty! This modern two-bedroom ground floor apartment located at 8 Little Enler Green in the charming village of...

The Walcott, Site 104 Enler Village, Comber

2 Bedroom Apartment | Asking Price £155,000

Homes Designed & Built With You In Mind!Steeped in history, Comber is renowned as the home of the designer of the Titani...

1b The Brae, Ballygowan BT23 5TH

3 Bedroom Townhouse | Asking Price £155,000

Stay in the Brae! Nestled in the charming village of Ballygowan, this modern townhouse at 1b The Brae offers a delightfu...

12 Redwood Lane, Dunmurry.

2 Bedroom Apartment | Offers Over £155,000

Why Wood You Not!This fantastic apartment is beautifully presented with a host of great benefits including its own front...

Michael Chandler Estate Agents (Belfast)

Belfast, County Down, BT7 3GU

02890 450 550

How much is your home worth?

Use our short form to request a valuation of your property.

Request a Valuation

Mortgage Calculator

Amount Borrowed: £
Total Amount Repayable: £
Total Monthly Payment: £
©2025 The Guild of Property Professionals. All rights reserved. Terms and Conditions | Privacy Policy | Cookie Policy | Complaints Policy | Members Login
The Guild of Property Professionals Trading Address: 121 Park Lane, London W1K 7AG. GPEA Limited. Registered in England & Wales.  Company No: 02819824.  Registered Office Address: 2 St. Stephen's Court, St. Stephen's Road, Bournemouth, Dorset, England, BH2 6LA.  VAT Registration No: 576 8795 61
Book a Property Valuation Update Cookies Preferences