10 Wyndham Street, BT14

£129,950

4 Bedroom Terraced House for sale in Belfast

4
  • Mid terrace house
  • Bright living room with bay window
  • Separate dining room
  • Fitted kitchen with range of units
  • Three piece bathroom suite with electric shower
  • 4 Generous bedrooms
  • Single glazed windows and oil fired heating
  • On street residence car parking
  • Residential area close to Belfast City Centre
  • No ongoing chain - Ideal project / investment

Property People are delighted to bring to the market this four-bedroom mid-terrace property, ideally located just off the Cliftonville Road. The property benefits from close proximity to Belfast City Centre, as well as a range of local amenities along the Antrim Road and excellent transport links, all within walking distance.

Internally, the property comprises a welcoming entrance hall, a bright and spacious living room and a separate generous dining room, leading through to a fitted kitchen with a range of high and low-level units. The accommodation is completed by four well-proportioned bedrooms and a three-piece family bathroom suite.

Externally, the property offers on-street resident parking to the front, while to the rear there is a privately enclosed yard with excellent potential to be transformed into a relaxing outdoor space.

Additional benefits include single-glazed windows, oil-fired central heating and the advantage of no onward chain, ensuring a smooth and straightforward purchase.

Due to the level of refurbishment required, this property is ideally suited to investors or buyers looking for a project to modernise and add value.

For further information or to arrange a viewing, please visit the Property People website or contact the North Belfast office on 028 9074 7300.

Entrance Porch
Hardwood front door to carpeted entrance to ...

Hallway 3.19m (10'6) x .99m (3'3)
Welcoming entrance hallway with high ceiling and cornice, laminated wooden floor and single panel radiator.

Living Room 3.16m (10'4) x 3m (9'10)
A bright and spacious living room, perfect for entertaining family and friends. Boasting high ceilings and a charming bay window, the space is flooded with natural light, creating a warm and inviting atmosphere. Finished with laminate wood flooring and a double panel radiator.
Dining Room 3.17m (10'5) x 3.11m (10'2)
A well-proportioned dining room, perfect for dining with family and friends - featuring high ceilings and views over the rear yard, the space is filled with natural light creating a bright and welcoming setting. There is a seamless flow through to the kitchen, enhancing both practicality and sociability.
Kitchen 2.72m (8'11) x 1.86m (6'1)
A fitted kitchen offering a range of high and low-level units, complemented by partially tiled walls surrounding the worktops. The space includes a stainless steel sink with mixer tap, along with room for a freestanding cooker and oven, fridge freezer and plumbing for a washing machine. Additional features include spotlights and a single panel radiator.

The kitchen also provides direct access to the rear yard, adding to its practicality.
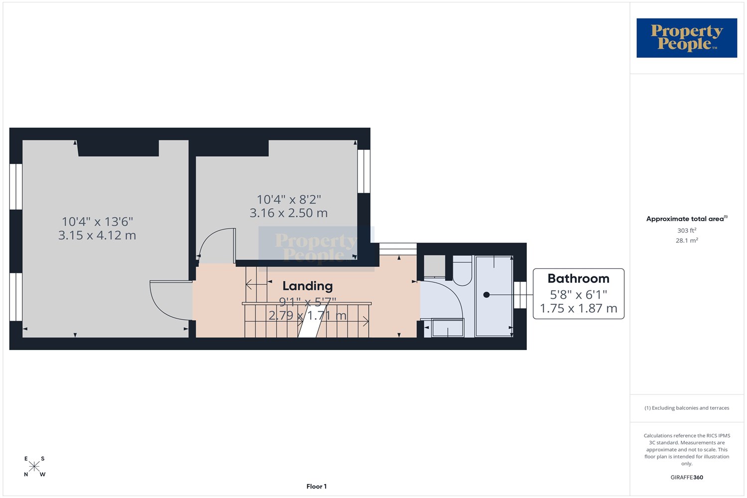
1st Floor Landing 2.79m (9'2) x 1.71m (5'7)
Carpeted stairs to 1st floor landing providing access to upper rooms ...

Bathroom 1.75m (5'9) x 1.87m (6'2)
A fully tiled, three-piece family bathroom featuring a wash handbasin with vanity unit, low-flush WC and a bath with an electric shower head. Finished with a lino floor and a single panel radiator, the room also includes a hot press storage cupboard for added convenience.
Bedroom 1 3.15m (10'4) x 4.12m (13'6)
A bright and spacious double bedroom with a front-aspect view, filled with natural light from large windows. Featuring high ceilings, a carpeted floor and a panelled radiator.
Bedroom 2 3.16m (10'4) x 2.5m (8'2)
A bright double bedroom with aspect view to rear yard area, feature high ceilings, carpet floor and single radiator.

2nd Landing 1.08m (3'7) x 1.46m (4'9)
Carpeted stairs and landing providing access to ...
Bedroom 3 3.08m (10'1) x 3.77m (12'4)
A bright and spacious top-floor bedroom featuring a Velux window that fills the room with natural light. The space is finished with a carpeted floor and a panelled radiator.
Bedroom 4 2.51m (8'3) x 2.53m (8'4)
A bright and airy top-floor bedroom, featuring a Velux window that floods the room with natural light. Finished with a carpeted floor and a panelled radiator.
Garden
To the front, there is convenient on-street residence car parking.

To the rear, a privately enclosed courtyard that offers potential to create the perfect outdoor sitting area.

Property Ref: 7289

Share:

Similar Properties

96 Oldpark Avenue, BT14

4 Bedroom Terraced House | £129,950

Listed for sale this spacious mid terrace property that would be well located within a convenient and popular area of No...

6 Ponsonby Avenue, BT15

5 Bedroom Terraced House | £129,950

Property People Ltd are delighted to bring to the market this charming 5-bedroom terraced house, located in the heart of...

3 Stanfield Place, BT7

2 Bedroom Apartment | Offers Over £129,950

Property People are delighted to bring to the market this fantastically well-appointed first floor apartment located in...

56 Tullinisky Road, BT25

3 Bedroom Detached House | £130,000

Detached 3-Bedroom House on Corner Site at 56 Tullinisky Road Ideal for Modernisation, Priced at ?130,000, Cash Offers O...

Unit 3, BT15

Commercial Property | Offers in region of £139,950

The subject premises is located on Oceanic Avenue, metres from the main Antrim Road.The Antrim Road is one of Belfast?s...

59 Atlantic Avenue, BT15

6 Bedroom Terraced House | £139,950

Property People are delighted to welcome to the open sales market this three-story family home that offers bright and sp...

Property People (Belfast)

Belfast, Antrim, BT15 2GY

028 9074 7300

How much is your home worth?

Use our short form to request a valuation of your property.

Request a Valuation

Mortgage Calculator

Amount Borrowed: £
Total Amount Repayable: £
Total Monthly Payment: £
©2026 The Guild of Property Professionals. All rights reserved. Terms and Conditions | Privacy Policy | Cookie Policy | Complaints Policy | Members Login
The Guild of Property Professionals Trading Address: 121 Park Lane, London W1K 7AG. GPEA Limited. Registered in England & Wales.  Company No: 02819824.  Registered Office Address: 2 St. Stephen's Court, St. Stephen's Road, Bournemouth, Dorset, England, BH2 6LA.  VAT Registration No: 576 8795 61
Book a Property Valuation Update Cookies Preferences