23 Alliance Avenue, Belfast

£299,950

5 Bedroom Detached House for sale in Belfast

2 5 3

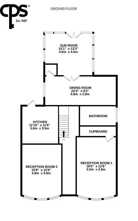
*CASH ONLY*  CPS are happy to welcome 23 Alliance Avenue, Belfast to the market. This detached home located just off the Cliftonville Road sits on a circa 0.4acre site. The property is in need of extensive refurbishment works but offers ample potential. The property previously had the benefit of full planning for 8x2 bedroom apartments. The home itself is 5 bedroom with 2 receptions and is 2389sqft. The substantially sized property has the promise of making the ideal family home with its spacious gardens to the rear and its gated driveway. The location is convenient to all local amenities, reputable schools and has great transport links to the city centre and afar. For further information or to arrange a private viewing, do not hesitate to contact our sales department on 02890958888   Features • Substantially Sized Property• Generous Garden Grounds• Five Spacious Bedrooms• Two Bright Reception Rooms• Stunning Bay Windows Ground Floor Sun room- 4.9m x 4.0mDining Room- 6.8m x 2.8mBathroom- 1.9m x 3.5mKitchen- 3.5m x 3.6mReception Room 1- 5.5m x 3.8mReception Room 2- 4.8m x 3.8m First Floor  Bedroom 1- 5.3m x 3.8mBedroom 2Bedroom 3- 3.8m x 3.7m Bedroom 4- 3.2m x 3.1m Bedroom 5- 2.8m x 2.5mBathroom- 4.2m x 2.2mW/C- 2.0m x 1.2m 

CUSTOMER DUE DILIGENCE
As a business providing estate agency services, we are legally required to verify the identity of both the vendor and the purchaser in accordance with the Money Laundering, Terrorist Financing and Transfer of Funds (Information on the Payer) Regulations 2017.

In order to buy or sell a property in the United Kingdom, estate agents must carry out identity checks on customers involved in the transaction to meet their obligations under Anti-Money Laundering legislation.

These checks are conducted on our behalf by a third-party provider, and a charge of £25 + VAT per person will apply.

Further information on the legislation is available at  www.legislation.gov.uk.

 

Property Ref: 11122682_1015338

Share:

Similar Properties

55 Abbeydale Crescent, Belfast

4 Bedroom Detached House | £289,950

29 Greystown Avenue, Belfast

3 Bedroom Semi-Detached House | £289,950

53 Danesfort, Belfast

3 Bedroom Flat | £280,000

17 Fortwilliam Demense, Belfast

4 Bedroom Semi-Detached House | £309,950

45 Ardina Road, Articlave

5 Bedroom Detached House | £324,950

1 Florenceville Drive, Belfast

6 Bedroom Flat | £350,000

CPS - Belfast (Belfast)

164 Lisburn Road, Belfast, County Antrim, BT9 6AL

028 9095 8888

How much is your home worth?

Use our short form to request a valuation of your property.

Request a Valuation

Mortgage Calculator

Amount Borrowed: £
Total Amount Repayable: £
Total Monthly Payment: £
©2026 The Guild of Property Professionals. All rights reserved. Terms and Conditions | Privacy Policy | Cookie Policy | Complaints Policy | Members Login
The Guild of Property Professionals Trading Address: 121 Park Lane, London W1K 7AG. GPEA Limited. Registered in England & Wales.  Company No: 02819824.  Registered Office Address: 2 St. Stephen's Court, St. Stephen's Road, Bournemouth, Dorset, England, BH2 6LA.  VAT Registration No: 576 8795 61
Book a Property Valuation Update Cookies Preferences