8 Magdala Street, Belfast

Asking Price
£170,000

4 Bedroom Terraced House for sale in Belfast

2 4 2



A charming four bedroom mid-terrace property situated in the University area of South Belfast
Priced to allow for modernisation and upgrading
Spacious front living room with a feature fireplace
A second reception room - perfect as a second living room or dining area
Good sized kitchen with a combination of high and low units and built in appliances
Adjoining utility area plumbed for white goods
Convenient downstairs bathroom complete with white three piece suite
Four good sized bedrooms - three doubles and one single
Spacious second bathroom complete with three piece suite and additional storage cupboard
Gas fired central heating and double glazed throughout
Enclosed rear yard offer convenient outdoor space
Within walking distance to Queens university and the Botanic Gardens
In close proximity to Belfast City Centre
Perfect opportunity as an investment property

Entrance Hall



Living Room



Living / Dining Room



Kitchen



Utility Room



Downstairs Bathroom



Landing



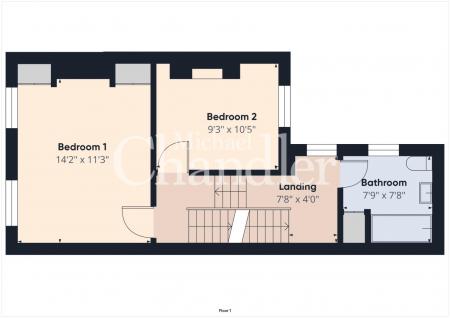
Bedroom 1



Bedroom 2



Bathroom



Landing



Bedroom 3



Bedroom 4





Michael Chandler Estate Agents have endeavoured to prepare these sales particulars as accurately and reliably as possible for the guidance of intending purchasers or lessees. These particulars are given for general guidance only and do not constitute any part of an offer or contract. The seller and agents do not give any warranty in relation to the property. We would recommend that all information contained in this brochure is verified by yourself or your professional advisors. Services, fittings and equipment referred to in the sales details have not been tested and no warranty is given to their condition. All measurements contained within this brochure are approximate.

Property Ref: 27676_33956237

Share:

Similar Properties

11 Cooke Court, Belfast

3 Bedroom End of Terrace House | Asking Price £169,950

All The Right Ingredients!We are pleased to present this well-proportioned three-bedroom end-terrace home, ideally situa...

22 Grays Park Gardens, Belfast

3 Bedroom Semi-Detached House | Asking Price £169,950

Glorious Gardens!A beautifully presented semi-detached home nestled in the desirable Belvoir area of South Belfast. This...

The Walcott, Site 112 Enler Village, Comber

2 Bedroom Apartment | Asking Price £168,000

Homes Designed & Built With You In Mind!Steeped in history, Comber is renowned as the home of the designer of the Titani...

42 Hillhead Road, Dundonald

Plot | Asking Price £175,000

A Site for Sore Eyes!This is a fabulous opportunity to purchase a unique site of circa 0.7 acres in the Ballystockart ar...

35 Eliza Street Close

3 Bedroom Terraced House | Asking Price £175,000

Market Value!This is a great opportunity to purchase a spacious property with tenant in situ until June 2025 that offers...

13 Ravenhill Court, Belfast

3 Bedroom End of Terrace House | Asking Price £175,000

A Smart Start!A beautifully presented three-bedroom end-terrace property offering a perfect blend of modern comfort and...

Michael Chandler Estate Agents (Belfast)

Belfast, County Down, BT7 3GU

02890 450 550

How much is your home worth?

Use our short form to request a valuation of your property.

Request a Valuation

Mortgage Calculator

Amount Borrowed: £
Total Amount Repayable: £
Total Monthly Payment: £
©2025 The Guild of Property Professionals. All rights reserved. Terms and Conditions | Privacy Policy | Cookie Policy | Complaints Policy | Members Login
The Guild of Property Professionals Trading Address: 121 Park Lane, London W1K 7AG. GPEA Limited. Registered in England & Wales.  Company No: 02819824.  Registered Office Address: 2 St. Stephen's Court, St. Stephen's Road, Bournemouth, Dorset, England, BH2 6LA.  VAT Registration No: 576 8795 61
Book a Property Valuation Update Cookies Preferences