17 Agincourt Street, Belfast

Asking Price
£129,950
SSTC
This property listing is now SSTC

2 Bedroom House for sale in Belfast

2 2 1



A mid terrace located just off the bustling Lower Ormeau Road
Property requires modernisation but offers great potential
Welcoming entrance hall
Family room with a tiled floor
Separate dining room with tiled floor
Kitchen with range of built in units
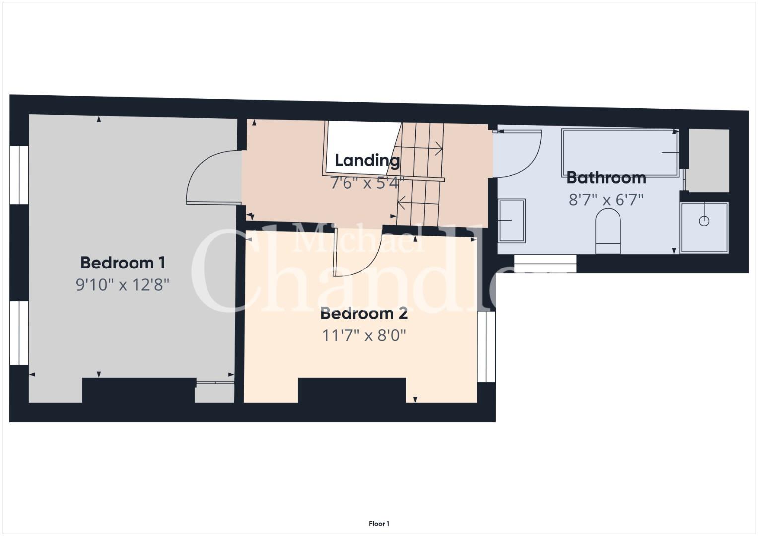
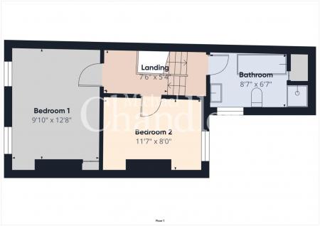
Two well-proportioned bedrooms
Bathroom with a white suite
Oil fired central heating system
Tidy and useable rear yard
Located within a short walk from the Ormeau Road and local transport
Extremely handy to Queens University, pubs, shops, restaurants and an amazing range of amenities

Entrance Hall



Family Room



Dining Room



Kitchen



Bedroom 1



Bedroom 2



Bathroom





Michael Chandler Estate Agents have endeavoured to prepare these sales particulars as accurately and reliably as possible for the guidance of intending purchasers or lessees. These particulars are given for general guidance only and do not constitute any part of an offer or contract. The seller and agents do not give any warranty in relation to the property. We would recommend that all information contained in this brochure is verified by yourself or your professional advisors. Services, fittings and equipment referred to in the sales details have not been tested and no warranty is given to their condition, nor does it confirm their inclusion in the sale. All measurements contained within this brochure are approximate.

Property Ref: 27676_34142836

Share:

Similar Properties

6 Muskett Grove, Carryduff

2 Bedroom Apartment | Asking Price £129,950

Get Your Grove On!Situated in Muskett Grove of Carryduff, this delightful first floor apartment offers a wonderful oppor...

20 Victoria Road, Belfast, BT4 1QU

3 Bedroom Terraced House | Asking Price £125,000

Start in Sydenham!This chain free three bedroom mid-terrace property is likely to appeal to a wide variety of purchasers...

Apt 27, 3 West Circular Close, Belfast

2 Bedroom Apartment | Asking Price £125,000

Close to Perfect!Apartment 27 is a luxurious second floor, two bedroom apartment situated just off the West Circular Roa...

Site @ 37 Church Road, Carryduff

Plot | Asking Price £130,000

A Heavenly Site!This is a rare and highly visible development site in the centre of Carryduff. Positioned directly on Ch...

21 Agincourt Avenue, Belfast

4 Bedroom Terraced House | Asking Price £135,000

More for your Money!This four bedroom, three storey mid townhouse is located just off the bustling Ormeau Road with its...

21 Crystal Street, Belfast

2 Bedroom Terraced House | Asking Price £135,000

Crystal Clear!This stylish period terrace is located between the Upper Newtownards Road and Bloomfield Avenue offering s...

Michael Chandler Estate Agents (Belfast)

Belfast, County Down, BT7 3GU

02890 450 550

How much is your home worth?

Use our short form to request a valuation of your property.

Request a Valuation

Mortgage Calculator

Amount Borrowed: £
Total Amount Repayable: £
Total Monthly Payment: £
©2025 The Guild of Property Professionals. All rights reserved. Terms and Conditions | Privacy Policy | Cookie Policy | Complaints Policy | Members Login
The Guild of Property Professionals Trading Address: 121 Park Lane, London W1K 7AG. GPEA Limited. Registered in England & Wales.  Company No: 02819824.  Registered Office Address: 2 St. Stephen's Court, St. Stephen's Road, Bournemouth, Dorset, England, BH2 6LA.  VAT Registration No: 576 8795 61
Book a Property Valuation Update Cookies Preferences