71 Delhi Street, Belfast

Asking Price
£259,950
SSTC
This property listing is now SSTC

4 Bedroom Terraced House for sale in Belfast

2 4 1



A simply stunning period townhouse located just off the bustling Ormeau Road
Modernised to an exacting standard throughout
Entrance vestibule leading to an impressive hall with a mosaic style floor
Wonderful living room with a feature cast iron fireplace, a solid wood floor and a bay window
Dining room with a stylish hole in wall fireplace
Open plan kitchen with an excellent range of units that flow into a glass atrium
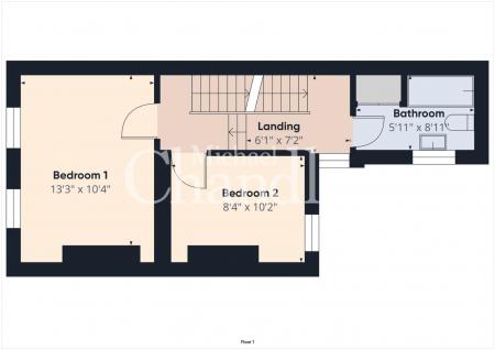
Four well-proportioned double bedrooms
Contemporary bathroom with a white three-piece suit
Gas fired central heating and double glazed throughout
Small forecourt to front and a enclosed yard area to rear
Fantastic location with a superb range of local amenities
Within the catchment area for a choice of leading schools

Entrance Hall



Living Room



Dining Room



Kitchen/Dining Area



Bedromm 1



Bedroom 2



Bathroom



Bedroom 3



Bedroom 4





Michael Chandler Estate Agents have endeavoured to prepare these sales particulars as accurately and reliably as possible for the guidance of intending purchasers or lessees. These particulars are given for general guidance only and do not constitute any part of an offer or contract. The seller and agents do not give any warranty in relation to the property. We would recommend that all information contained in this brochure is verified by yourself or your professional advisors. Services, fittings and equipment referred to in the sales details have not been tested and no warranty is given to their condition. All measurements contained within this brochure are approximate.

Property Ref: 27676_33793529

Share:

Similar Properties

The Beatty, Site 486 Enler Village, Comber

3 Bedroom Detached House | Asking Price £255,000

Homes Designed & Built With You In Mind!Steeped in history, Comber is renowned as the home of the designer of the Titani...

The Beatty, Site 481 Enler Village, Comber

3 Bedroom Detached House | Asking Price £253,000

Homes Designed & Built With You In Mind!Steeped in history, Comber is renowned as the home of the designer of the Titani...

The Beatty, Site 496 Enler Village, Comber

3 Bedroom Detached House | Asking Price £253,000

Homes Designed & Built With You In Mind!Steeped in history, Comber is renowned as the home of the designer of the Titani...

41 Onslow Parade, Belfast

3 Bedroom Semi-Detached House | Asking Price £260,000

Don't Be Slow!A charming three-bedroom semi-detached property ideally located in a very popular area of South Belfast. P...

75 Ivanhoe Avenue, Carryduff

3 Bedroom Detached Bungalow | Asking Price £260,000

Hard to Find, Easy to Love!Detached bungalows in the BT8 area are highly sought after, especially when they benefit from...

22 Mount Merrion Park, Belfast, BT6 0GB

3 Bedroom Semi-Detached House | Asking Price £260,000

A Rose In Rosetta!Located in the highly sought-after Rosetta area of South Belfast, this delightful three-bedroom semi-d...

Michael Chandler Estate Agents (Belfast)

Belfast, County Down, BT7 3GU

02890 450 550

How much is your home worth?

Use our short form to request a valuation of your property.

Request a Valuation

Mortgage Calculator

Amount Borrowed: £
Total Amount Repayable: £
Total Monthly Payment: £
©2025 The Guild of Property Professionals. All rights reserved. Terms and Conditions | Privacy Policy | Cookie Policy | Complaints Policy | Members Login
The Guild of Property Professionals Trading Address: 121 Park Lane, London W1K 7AG. GPEA Limited. Registered in England & Wales.  Company No: 02819824.  Registered Office Address: 2 St. Stephen's Court, St. Stephen's Road, Bournemouth, Dorset, England, BH2 6LA.  VAT Registration No: 576 8795 61
Book a Property Valuation Update Cookies Preferences