29 Kimberley Street, Belfast

Asking Price
£210,000

2 Bedroom Terraced House for sale in Belfast

1 2 1



An attractive mid-terrace home located just off the bustling Ormeau Road in South Belfast
Warm and welcoming entrance hall with beautiful floor tiling
Bright and airy open plan living and dining area complete with a feature fireplace
Modern kitchen plumbed for white goods and a good range of high & low level units
Two well proportioned double bedrooms
Contemporary family bathroom benefitting from a four piece suit
Gas fired central heating & fully double glazed throughout
Enclosed rear yard with raised decked area - perfect for socialising with friends
Within walking distance to a wide range of local amenities including bars, cafes and restaurants
Excellent transport links to and from Belfast city centre nearby
Within catchment to a fantastic range of leading schools in the area

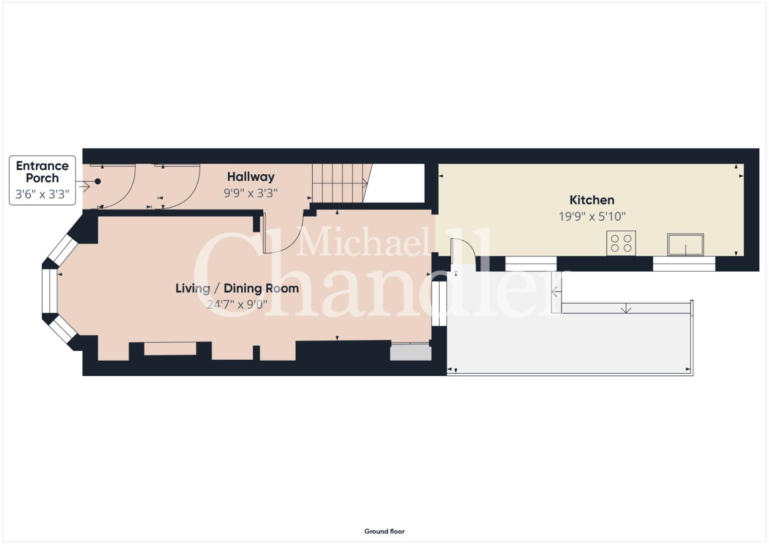
Porch



Hallway



Living / Dining Room



Kitchen



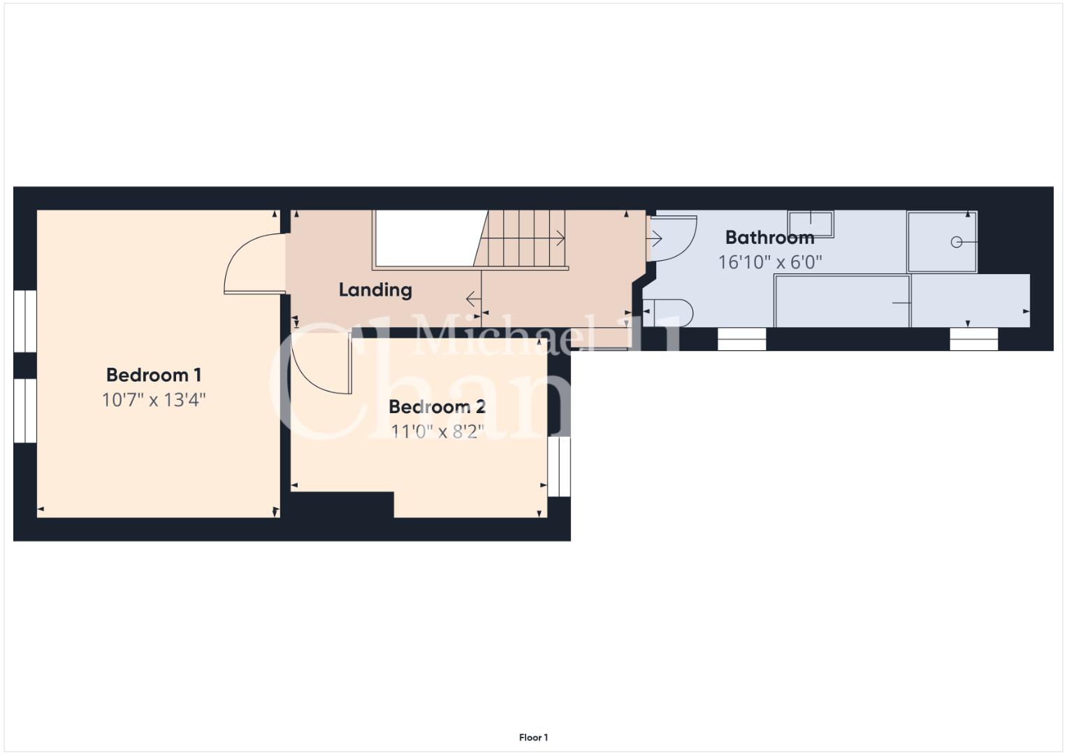
Landing



Bedroom 1



Bedroom 2



Bathroom





Michael Chandler Estate Agents have endeavoured to prepare these sales particulars as accurately and reliably as possible for the guidance of intending purchasers or lessees. These particulars are given for general guidance only and do not constitute any part of an offer or contract. The seller and agents do not give any warranty in relation to the property/ site. We would recommend that all information contained in this brochure is verified by yourself or your professional advisors. Services, fittings and equipment referred to in the sales details have not been tested and no warranty is given to their condition. All measurements contained within this brochure are approximate. Site sizes are approximate and have not been verified.

Property Ref: 27676_34230855

Share:

Similar Properties

6 Cottonmount Manor, Newtownabbey

3 Bedroom Semi-Detached House | Asking Price £210,000

Pure Perfection!An immaculately presented three bedroom semi detached home located in the Mallusk area of Newtownabbey o...

58 Forge Hill Court, Saintfield

4 Bedroom Semi-Detached House | Asking Price £210,000

Forge Forward!A beautifully presented four-bedroom semi-detached home offering the perfect blend of countryside charm an...

19 North Sperrin, Belfast

3 Bedroom Semi-Detached House | Asking Price £210,000

Take A Peek!This beautifully presented semi-detached home situated just off the Kings Road offers a rare opportunity to...

19 Mount Michael Park, Belfast

3 Bedroom Semi-Detached House | Asking Price £215,000

Move to the Mount!An immaculately presented three-bedroom semi-detached home situated in the ever popular Four Winds are...

The Newton, Site 476 Enler Village, Comber

3 Bedroom Townhouse | Asking Price £218,000

Homes Designed & Built With You In Mind!Steeped in history, Comber is renowned as the home of the designer of the Titani...

The Penrose, Site 464 Enler Village, Comber

3 Bedroom Townhouse | Asking Price £220,000

Homes Designed & Built With You In Mind!Steeped in history, Comber is renowned as the home of the designer of the Titani...

Michael Chandler Estate Agents (Belfast)

Belfast, County Down, BT7 3GU

02890 450 550

How much is your home worth?

Use our short form to request a valuation of your property.

Request a Valuation

Mortgage Calculator

Amount Borrowed: £
Total Amount Repayable: £
Total Monthly Payment: £
©2025 The Guild of Property Professionals. All rights reserved. Terms and Conditions | Privacy Policy | Cookie Policy | Complaints Policy | Members Login
The Guild of Property Professionals Trading Address: 121 Park Lane, London W1K 7AG. GPEA Limited. Registered in England & Wales.  Company No: 02819824.  Registered Office Address: 2 St. Stephen's Court, St. Stephen's Road, Bournemouth, Dorset, England, BH2 6LA.  VAT Registration No: 576 8795 61
Book a Property Valuation Update Cookies Preferences