12 Haywood Avenue, Belfast

Asking Price
£265,000
SSTC
This property listing is now SSTC

4 Bedroom End of Terrace House for sale in Belfast

1 4 2



A delightful four bedroom end terrace property located just off the bustling Ormeau Road
Welcoming entrance hall with access to the living room and kitchen
Cosy living room benefitting from a stunning feature fireplace and dual aspect windows
Modern kitchen & dining area with fitted units, built in appliances & double doors to the courtyard
Useful utility space - plumbed for white goods and convenient under stair storage
Stylish downstairs WC - accessed via the utility room
Four well proportioned double bedrooms each filled with character and charm
Luxury family bathroom boasting a contemporary white three piece suite
Gas fired central heating and double glazed throughout
Front garden laid in paving stones with feature flowerbed
Fully enclosed rear courtyard laid in paving stones - perfect for socialising with family and friends
A fantastic range of local amenities on the Ormeau Road and Stranmillis just a short distance away
Excellent transport links to and from Belfast City Centre just a short walk away
Within catchment to a fantastic range of leading primary and secondary school in the area

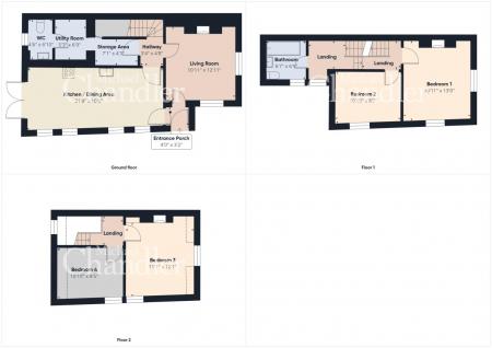
Entrance Porch



Living Room



Kitchen / Dining Area



Hallway



Storage Area



Utility Room



Downstairs WC



Landing



Bedroom 1



Bedroom 2



Bathroom



Landing



Bedroom 3



Bedroom 4





Michael Chandler Estate Agents have endeavoured to prepare these sales particulars as accurately and reliably as possible for the guidance of intending purchasers or lessees. These particulars are given for general guidance only and do not constitute any part of an offer or contract. The seller and agents do not give any warranty in relation to the property/ site. We would recommend that all information contained in this brochure is verified by yourself or your professional advisors. Services, fittings and equipment referred to in the sales details have not been tested and no warranty is given to their condition. All measurements contained within this brochure are approximate.

Property Ref: 27676_34195121

Share:

Similar Properties

49 Newton Park, Belfast, BT8 6LN

3 Bedroom Semi-Detached House | Asking Price £265,000

Your New Home!A beautifully presented three-bedroom semi-detached home located in the highly sought-after Four Winds are...

41 Onslow Parade, Belfast

3 Bedroom Semi-Detached House | Asking Price £260,000

Don't Be Slow!A charming three-bedroom semi-detached property ideally located in a very popular area of South Belfast. P...

75 Ivanhoe Avenue, Carryduff

3 Bedroom Detached Bungalow | Asking Price £260,000

Hard to Find, Easy to Love!Detached bungalows in the BT8 area are highly sought after, especially when they benefit from...

8 Frankhill Park, Carryduff

3 Bedroom Detached Bungalow | Asking Price £270,000

Let's Be Frank!This delightful three bedroom detached bungalow situated in the heart of Carryduff has a lot to offer. Fr...

6 Chesterfield Park, Belfast

3 Bedroom Semi-Detached House | Asking Price £274,950

Opportunity Knocks!A charming chain free semi-detached property located in the heart of the Rosetta area is sure to appe...

3 Bracken Hill Mews, Belfast

3 Bedroom Semi-Detached House | Asking Price £275,000

The Mews You've Been Waiting For!A fabulous, beautifully presented family home enjoying a most convenient location, easi...

Michael Chandler Estate Agents (Belfast)

Belfast, County Down, BT7 3GU

02890 450 550

How much is your home worth?

Use our short form to request a valuation of your property.

Request a Valuation

Mortgage Calculator

Amount Borrowed: £
Total Amount Repayable: £
Total Monthly Payment: £
©2025 The Guild of Property Professionals. All rights reserved. Terms and Conditions | Privacy Policy | Cookie Policy | Complaints Policy | Members Login
The Guild of Property Professionals Trading Address: 121 Park Lane, London W1K 7AG. GPEA Limited. Registered in England & Wales.  Company No: 02819824.  Registered Office Address: 2 St. Stephen's Court, St. Stephen's Road, Bournemouth, Dorset, England, BH2 6LA.  VAT Registration No: 576 8795 61
Book a Property Valuation Update Cookies Preferences