8 Glenholm Crescent

Offers Over
£235,000
SSTC
This property listing is now SSTC

3 Bedroom Semi-Detached House for sale in Belfast

2 3 1

We are delighted to offer for sale this attractive semi-detached home situated in the Four Winds area of South Belfast. Featuring bright and spacious accommodation, a private rear garden, and off-road parking, the property is ideal for families, first-time buyers, or those looking to upsize.

This property boasts ease of access to not only Lesley Forestside Shopping Centre, offering an array of retail units and cafes, but to a wide range of leading primary and post-primary schools. Main arterial routes are also located in close proximity to this residence.

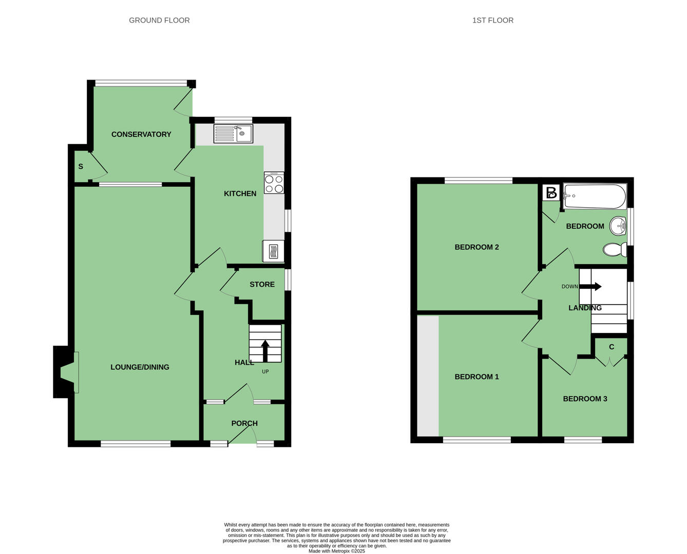
Inside the accommodation comprises entrance hall, lounge open to dining room, a modern fitted kitchen and a lean to for additional adaptable space. Upstairs there are three well-proportioned bedrooms, and a bathroom with light-coloured suite.

Outside there is a driveway for off street parking, detached garage with up and over door and garden to front and rear in lawn, ideal for outside entertaining or kids or pets at play. Other benefits include gas fired central heating and Pvc double glazed windows.

Early viewing is recommended to avoid disappointment as we expect high interest in this home.

.Well Presented Three Bedroom Semi-Detached Property Located in Four Winds in South Belfast
. Convenient Location with Many Local Amenities Closeby Including Forestside Shopping Centre, Park and Ride and Many Highly Regarded Primary and Post Primary Schools
.Lounge Open to Dining Room
.Modern Fitted Kitchen
.Lean-To with Additional Adaptable Space and Access to Rear Garden
.Three Well Appointed Bedrooms
.Bathroom with Light-Coloured Suite
.Floored and Insulated Roofspace for Excellent Storage
.Private Rear Garden in Lawn
.Driveway for Off-Street Parking and Detached Garage for Excellent Storage
.Gas Fired Central Heating
. UPVC Double Glazing
.Broadband Speed - Ultrafast
.Early Viewing Highly Recommended

Entrance - Glazed double doors into entrance porch.

Entrance Porch: - Glazed inner door with glazed side panels into entrance hall.

Ground Floor -

Entrance Hall: - With engineered wooden flooring, cornice ceiling and under stairs storage.

Lounge Open To Dining Room: - 22'8" x 12'8" - Dual aspect windows, wood laminate flooring, open fire, tiled hearth, corniced ceiling.

Modern Fitted Kitchen: - 12'9" x 8'4" - With range of high and low level units, laminate worktop, stainless steel single drainer sink unit, chrome mixer tap, built-in oven and grill, ceramic hob and extractor fan, under counter fridge space, plumbed for washing machine, double glazed door to lean-to, exposed shelving, wood laminate flooring.

Lean-To: - 8'11" x 8'10" - Storage cupboard, wooden glazed back door.

First Floor -

First Floor Return: - Picture window.

Landing: - Access to roofspace.

Roofspace: - Floored and insulated.

Bedroom One: - 11'1" x 11'0" - Outlook to front, range of built-in wardrobes, part panelled walls.

Bedroom Two: - 11'6" x 11'0" - Outlook to rear.

Bedroom Three: - 7'11" x 7'3" - Wood laminate flooring, storage cupboard.

Bathroom: - Light coloured suite comprising concealed cistern WC, vanity unit, basin with brass mixer tap, tiled panelled bath with brass mixer tap, Triton electric shower above, storage cupboard with Worcester gas boiler, tiled walls.

Outside -

Outside: - Driveway to detached garage. Gardens to front and rear in lawn.

Detached Garage: - Up and over door, garage plumbed for washing machine, tumble dryer space, light and power.

South Belfast is renowned for its fabulous residential areas which make it one of the most sought-after locations to live in Northern Ireland. The beautiful tree-lined streets, tranquil parks and excellent local schools are just a few of the reasons why so many wish to call it home.

Property Ref: 44458_34146552

Share:

Similar Properties

47 Gilnahirk Road

3 Bedroom Townhouse | Offers Over £235,000

We are delighted to bring to the market this beautifully presented end townhouse in the popular Cherryvalley area of Eas...

Ferguson Drive, BELFAST, BT4 2AZ

4 Bedroom Terraced House | Offers in region of £230,000

Located off the prestigious Belmont Road in East Belfast, 15 Ferguson Drive is a fantastically appointed four-bedroom Vi...

Apartment 34, Stranmillis Wharf 2B, BELFAST, BT9 5GN

2 Bedroom Apartment | Offers in region of £229,950

The much admired Stranmillis Wharf development occupies an enviable position on the banks of the River Lagan in Stranmil...

Millmount Village Meadows, Dundonald, BELFAST, BT16 1AT

3 Bedroom Terraced House | Offers in region of £239,950

This well-presented and spacious townhouse is located in the popular Millmount Village, a sought-after modern developmen...

Castlemore Avenue, BELFAST, BT6 9RF

3 Bedroom Detached House | Offers in region of £239,950

This fantastically presented detached property enjoys a prime position within a quiet residential development just off t...

Irwin Crescent, BELFAST, BT4 3AQ

2 Bedroom Detached House | Offers Over £240,000

We are delighted to bring to the market this well presented two-bedroom detached property located between the Upper Newt...

John Minnis Estate Agents (Greater Belfast)

404 Upper Newtownards Road, Greater Belfast, Belfast, BT4 3GE

028 9065 3333

How much is your home worth?

Use our short form to request a valuation of your property.

Request a Valuation

Mortgage Calculator

Amount Borrowed: £
Total Amount Repayable: £
Total Monthly Payment: £
©2025 The Guild of Property Professionals. All rights reserved. Terms and Conditions | Privacy Policy | Cookie Policy | Complaints Policy | Members Login
The Guild of Property Professionals Trading Address: 121 Park Lane, London W1K 7AG. GPEA Limited. Registered in England & Wales.  Company No: 02819824.  Registered Office Address: 2 St. Stephen's Court, St. Stephen's Road, Bournemouth, Dorset, England, BH2 6LA.  VAT Registration No: 576 8795 61
Book a Property Valuation Update Cookies Preferences