5 Beechill Park West, Belfast

Asking Price
£289,950
SSTC
This property listing is now SSTC

3 Bedroom Bungalow for sale in Belfast

2 3 1



A stunning detached bungalow located just off the Saintfield Road
Beautifully presented and in immaculate condition throughout
Welcoming entrance hall
Spacious living room with a large picture window
Dining room with potential to restore to 3rd bedroom if required
Modern kitchen with a range of integrated appliances
Two well-proportioned bedrooms
Contemporary shower room
Attic room via fixed staircase
Attached garage
Oil fired central heating & double glazed throughout
Spacious rear garden laid in lawns with a patio areas and an array of plants & shrubs
Front garden with a selection of trees, plants & shrubs
Spacious driveway providing off-street parking to the front of the garage
Convenient location with an excellent range of local amenities
Within the catchment area for a choice of leading schools

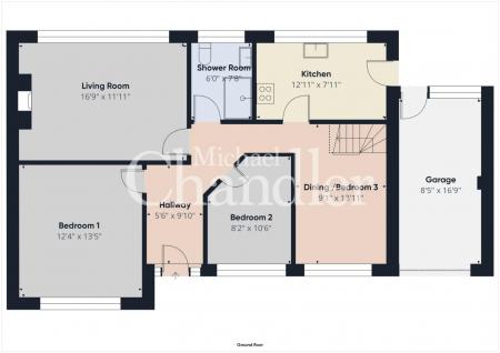
Entrance Hall



Living Room



Kitchen



Shower Room



Bedroom 1



Bedroom 2



Dining/ Bedroom 3



Attic Room



Garage





Michael Chandler Estate Agents have endeavoured to prepare these sales particulars as accurately and reliably as possible for the guidance of intending purchasers or lessees. These particulars are given for general guidance only and do not constitute any part of an offer or contract. The seller and agents do not give any warranty in relation to the property. We would recommend that all information contained in this brochure is verified by yourself or your professional advisors. Services, fittings and equipment referred to in the sales details have not been tested and no warranty is given to their condition, nor does it confirm their inclusion in the sale. All measurements contained within this brochure are approximate.

Property Ref: 27676_33985475

Share:

Similar Properties

3 Glendale Avenue North, Belfast

3 Bedroom Semi-Detached House | Asking Price £285,000

What A Dale!A delightful three bedroom extended semi detached property situated in the highly sought after Four Winds Ar...

41 Lenaghan Crescent, Belfast

3 Bedroom Detached House | Asking Price £280,000

Lovely Lenaghan!Situated in popular Lenaghan Crescent of South Belfast, this attractive detached family home offers a pe...

4 Baronsgrange Rise, Carryduff

3 Bedroom Semi-Detached House | Offers Over £279,950

Rise Up!This wonderful semi-detached property is simply stunning from top to bottom and certainly wouldn’t look out of p...

8 Murlough View Cottages, Newcastle

2 Bedroom Cottage | Asking Price £290,000

Nestled in the charming area of Newcastle, 8 Murlough View Cottages presents an exceptional opportunity to acquire a stu...

39 Saintfield Road, Ballygowan

4 Bedroom Detached House | Asking Price £299,950

Game On!Located in the charming village of Ballygowan, this delightful detached family home on Saintfield Road is a true...

35 Glenholm Crescent, Belfast

4 Bedroom Detached House | Asking Price £310,000

Holm is Where The Heart Is!A delightful four-bedroom detached home offering generous accommodation and flexible living s...

Michael Chandler Estate Agents (Belfast)

Belfast, County Down, BT7 3GU

02890 450 550

How much is your home worth?

Use our short form to request a valuation of your property.

Request a Valuation

Mortgage Calculator

Amount Borrowed: £
Total Amount Repayable: £
Total Monthly Payment: £
©2025 The Guild of Property Professionals. All rights reserved. Terms and Conditions | Privacy Policy | Cookie Policy | Complaints Policy | Members Login
The Guild of Property Professionals Trading Address: 121 Park Lane, London W1K 7AG. GPEA Limited. Registered in England & Wales.  Company No: 02819824.  Registered Office Address: 2 St. Stephen's Court, St. Stephen's Road, Bournemouth, Dorset, England, BH2 6LA.  VAT Registration No: 576 8795 61
Book a Property Valuation Update Cookies Preferences