Scarsdale Road, Duffield, Belper, Derbyshire

Offers in region of
£245,000
SSTC
This property listing is now SSTC

3 Bedroom Semi-Detached House for sale in Belper

1 3 1
  • Semi-Detached Home
  • Ecclesbourne School Catchment Area
  • Requiring Full Modernisation
  • Lounge
  • Kitchen/Dining Room with Walk-In Pantry
  • Three Bedrooms & Family Bathroom
  • Manageable Front & Rear Gardens
  • Driveway
  • Offers Potential
  • Cul-de-Sac Location - No Chain Involved

ECCLESBOURNE SCHOOL CATCHMENT AREA - A three bedroom, semi-detached property requiring modernisation occupying a cul-de-sac location within the popular village of Duffield.

The property offers excellent potential and, in brief, consists on the ground floor entrance hall with staircase leading to first floor, lounge, kitchen/dining room and walk-in pantry. The first floor landing leads to three bedrooms and a family bathroom with separate WC.

Outside there are manageable front and rear gardens. Two outside brick stores. Driveway providing off-road car parking spaces.

The Location - The village of Duffield provides an excellent range of amenities including a varied selection of shops, banks, post office, library, historic St Alkmund's Church and a selection of good restaurants. The village has excellent medical and educational facilities both at primary and secondary level (Ecclesbourne Secondary School). There is a regular bus service along the A6 between Derby and Belper. Also a regular train service into Derby City centre, which lies some 5 miles to the south of the village. Local recreational facilities within the village include squash, tennis, cricket, football and the noted Chevin Golf course. A further point to note is that the Derwent Valley in which the village of Duffield nestles, is one of the few world heritage sites and is surrounded by beautiful countryside.

The famous market town of Ashbourne, known as the gateway to Dovedale and The Peak District National Park lies approximately 10 miles to the west. The thriving market town of Belper is situated 3 miles north of the village and provides a more comprehensive range of shops and leisure facilities.

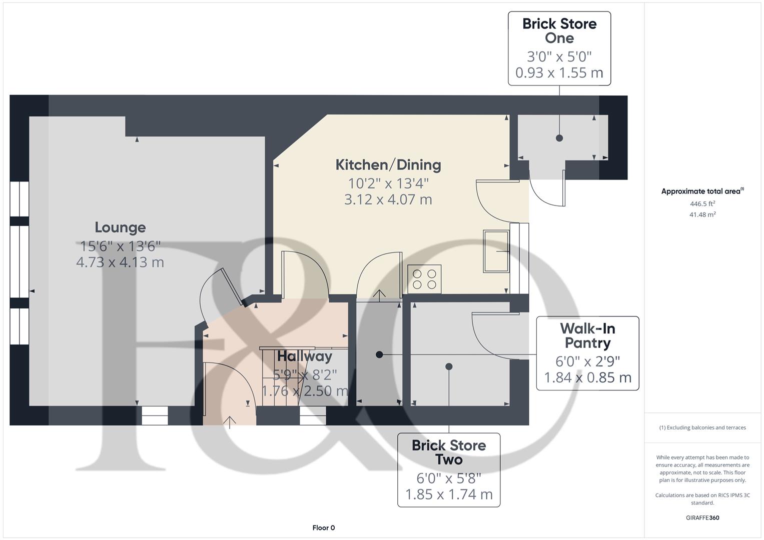
Accommodation -

Ground Floor -

Entrance Hall - 2.50 x 1.76 (8'2" x 5'9") - With double glazed entrance door, understairs storage cupboard and stairs leading to first floor.

Lounge - 4.73 x 4.13 (15'6" x 13'6") - With gas fire and four double glazed windows.

Kitchen/Dining Room - 4.07 x 3.12 (13'4" x 10'2") - With single stainless steel sink unit with hot and cold tap, wall and base cupboards, gas fire, double glazed window, plumbing for automatic washing machine and double glazed door giving access to garden.

Walk-In Pantry - 1.84 x 0.85 (6'0" x 2'9") - With shelving.

First Floor Landing - 0.85 x 0.72 (2'9" x 2'4") - With access to roof space.

Bedroom One - 4.08 x 3.13 (13'4" x 10'3") - With double glazed window to rear.

Bedroom Two - 4.11 x 2.44 (13'5" x 8'0") - With built-in cupboard housing the hot water cylinder and double glazed window to front.

Bedroom Three - 3.21 x 2.56 (10'6" x 8'4") - With wardrobe and double glazed window to front.

Bathroom - 1.80 x 1.69 (5'10" x 5'6") - With bath with electric shower, wash basin and double glazed window.

Separate Wc - 1.63 x 0.82 (5'4" x 2'8") - With low level WC and double glazed window.

Front Garden - The property is set back from the pavement edge behind a lawned fore-garden with privet hedgerow.

Rear Garden - An enclosed rear garden with timber shed and two outside brick stores.

Brick Store One - 1.55 x 0.93 (5'1" x 3'0") - With shelving.

Brick Store Two - 1.85 x 1.74 (6'0" x 5'8") - With power and lighting.

Driveway - A driveway provides off-road car parking spaces.

Council Tax Band C -

Property Ref: 10877_33839999

Share:

Similar Properties

West Row, Darley Abbey Village, Derby

2 Bedroom Cottage | Offers in region of £239,950

BEAUTIFUL COTTAGE - The property is located in the heart of the village and a short walk to Mill View Gardens, Darley Pa...

Hopping Hill, Milford, Belper, Derbyshire

2 Bedroom Cottage | Offers in region of £239,950

Nestled in the charming area of Hopping Hill, Milford, Belper, this delightful Grade II listed historic cottage offers a...

Hopping Hill, Milford, Belper, Derbyshire

3 Bedroom Cottage | Offers in region of £239,950

Nestled in the picturesque area of Hopping Hill, Milford, this charming Grade II listed cottage offers a delightful blen...

Appletree Court, Duffield, Belper, Derbyshire

2 Bedroom Apartment | Offers in region of £249,950

A superb first floor, two double bedroom apartment, occupying a prime location within the sought after village of Duffie...

Tamworth Street, Duffield, Belper, Derbyshire

2 Bedroom End of Terrace House | Offers in region of £249,950

Nestled in the charming village of Duffield, this highly appealing end-terraced cottage on Tamworth Street offers a deli...

Clement Road, Horsley Woodhouse, Derbyshire

3 Bedroom Semi-Detached House | Offers in region of £249,950

This is a traditional, three bedroom, semi-detached residence occupying a quiet cul-de-sac location in the popular villa...

Fletcher & Company (Duffield)

Duffield, Derbyshire, DE56 4GD

01332 843390

How much is your home worth?

Use our short form to request a valuation of your property.

Request a Valuation

Mortgage Calculator

Amount Borrowed: £
Total Amount Repayable: £
Total Monthly Payment: £
©2025 The Guild of Property Professionals. All rights reserved. Terms and Conditions | Privacy Policy | Cookie Policy | Complaints Policy | Members Login
The Guild of Property Professionals Trading Address: 121 Park Lane, London W1K 7AG. GPEA Limited. Registered in England & Wales.  Company No: 02819824.  Registered Office Address: 2 St. Stephen's Court, St. Stephen's Road, Bournemouth, Dorset, England, BH2 6LA.  VAT Registration No: 576 8795 61
Book a Property Valuation Update Cookies Preferences