Derby Road, Duffield, Belper, Derbyshire

Offers in region of
£499,950
SSTC
This property listing is now SSTC

3 Bedroom Detached House for sale in Belper

2 3 1
  • Detached Property with Potential
  • Ecclesbourne School Catchment Area
  • Countryside Views
  • Potential to Extend (Subject to Planning Permission)
  • Requiring Modernisation
  • Lounge, Dining Room, Study & Kitchen
  • Three Double Bedrooms & Family Bathroom
  • Private Front & Rear Gardens
  • Driveway & Double Garage
  • No Chain Involved

ECCLESBOURNE SCHOOL CATCHMENT AREA - This highly appealing detached house presents a wonderful opportunity for those seeking a property with potential.

Set against a backdrop of picturesque countryside views, this property not only offers a tranquil setting but also the potential for improvement and extension, subject to planning permission. This means you can truly make this house your own, tailoring it to your specific needs and desires.

While the property does require some modernisation, it is a blank canvas waiting for your creative touch. Whether you envision a contemporary family home or a stylish retreat, the possibilities are endless.

The Location - The village of Duffield provides a range of amenities, including a varied selection of shops, fine restaurants, village inns and schools to include The Meadows and William Gilbert Primary School together with the noted Ecclesbourne School. In addition there is a train service to Derby city centre which lies some five miles to the south of the village. Local recreational facilities within the village include squash, tennis and the Chevin golf course. The thriving market town of Belper lies approximately three miles north and provides a more comprehensive range of shops and leisure facilities.

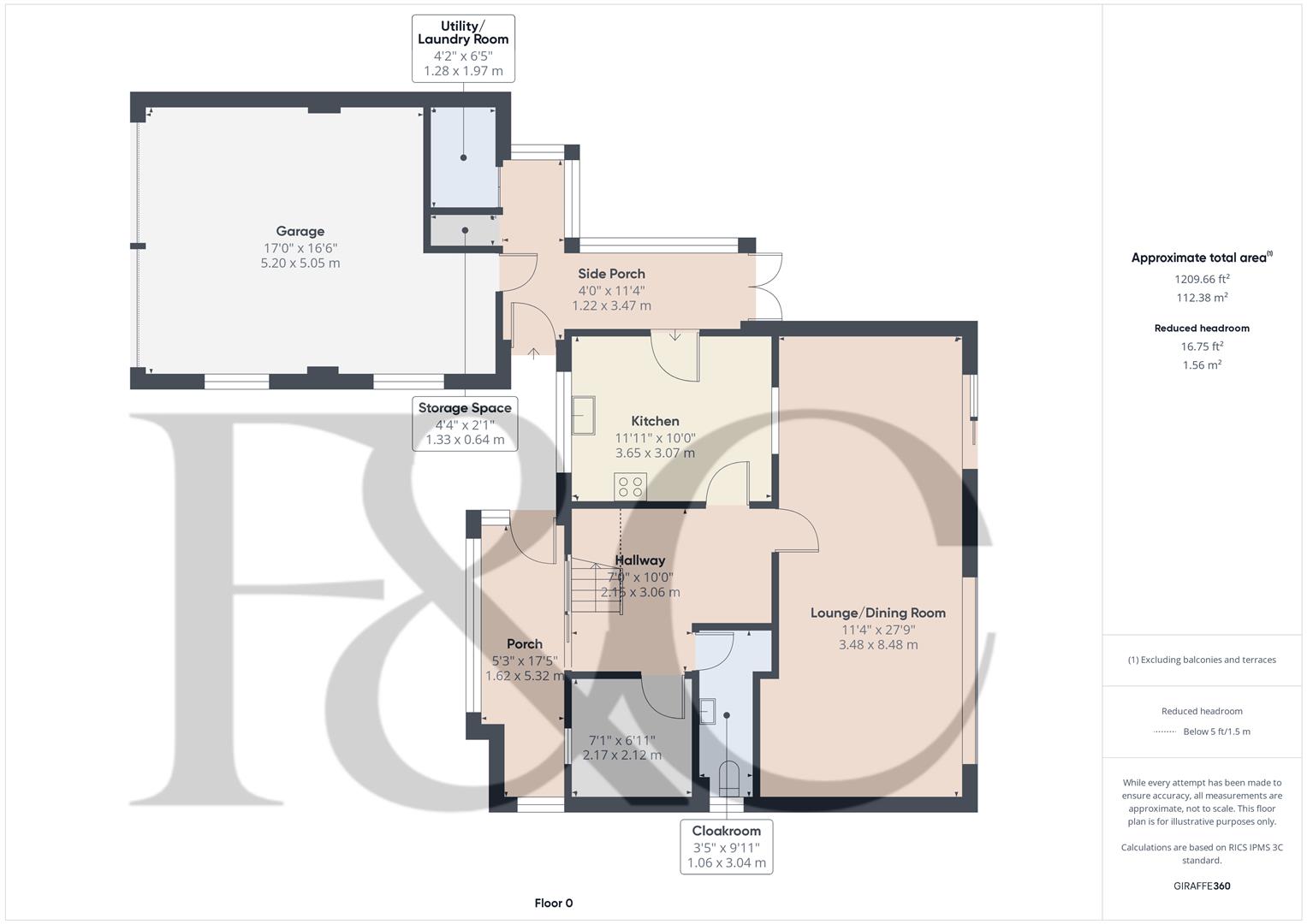
Accommodation -

Ground Floor -

Porch - 5.32 x 1.62 (17'5" x 5'3") - With glazed front door, glazed windows and double glazed sliding patio door opening into hallway.

Hallway - 3.06 x 2.15 (10'0" x 7'0") - With radiator and split-level staircase leading to first floor.

Cloakroom - 3.04 x 1.06 (9'11" x 3'5") - With low level WC, wash basin, storage cupboard and double glazed window.

Lounge/Dining Room - 8.48 x 3.48 (27'9" x 11'5") -

Lounge Area - With fireplace with inset living flame gas fire, two radiators, coving to ceiling, double glazed bay window with deep window sill, countryside views to rear and open space leading to dining area.

Dining Area - With radiator, coving to ceiling, open archway into kitchen, countryside views, open archway to lounge area and double glazed sliding patio door opening onto patio and private rear garden.

Kitchen - 3.65 x 3.07 (11'11" x 10'0") - With one and a half stainless steel sink unit with mixer tap, wall and base units with matching worktops, plumbing for dishwasher, electric cooker point, telephone point, tile flooring, radiator, double glazed window and internal stable door.

Side Porch - 3.47 x 1.22 (11'4" x 4'0") - With half glazed door, double doors opening to garden, single glazed window and integral door giving access to double garage.

Utility/Laundry - 1.97 x 1.28 (6'5" x 4'2") - With plumbing for automatic washing machine and space for tumble dryer.

First Floor Landing - 3.06 x 0.86 (10'0" x 2'9") - With window and access to roof space.

Double Bedroom One - 4.24 x 3.96 (13'10" x 12'11") - With wardrobes, dressing table, chest of drawers, radiator, coving to ceiling, countryside views and double glazed window.

Double Bedroom Two - 4.19 x 3.53 (13'8" x 11'6") - With radiator, countryside views and double glazed window.

Double Bedroom Three - 3.67 x 3.11 (12'0" x 10'2") - With radiator and double glazed window.

Walk-In Airing Cupboard - 2.30 x 1.09 (7'6" x 3'6") - With central heating boiler, shelving and hot water cylinder.

Family Bathroom - 3.18 x 2.15 (10'5" x 7'0") - With corner bath with mixer tap/hand shower attachment, pedestal wash handbasin, low level WC, tile splashbacks, tile flooring, radiator and double glazed window.

Front Garden - The property is set well back behind a deep, lawned fore-garden with monkey puzzle tree.

Rear Garden - To the rear of the property is a private, westerly facing garden backing directly onto open fields and countryside. The garden is laid to lawn with paved patio, ornamental pond, shrubs, plants and tree.

Driveway - A double width, tarmac driveway provides car standing spaces for three/four vehicles.

Double Garage - 5.20 x 5.05 (17'0" x 16'6") - With concrete floor, power, lighting, two side windows and two up and over metal front doors.

Council Tax - E - Amber Valley

Property Ref: 33844896

Share:

Similar Properties

Honeysuckle Barn, Church Broughton, Derby

3 Bedroom Barn Conversion | Offers in region of £499,950

Honeysuckle Barn is a spacious two-storey barn conversion that beautifully combines modern living with rustic charm. Spa...

Church Walk, Duffield, Belper, Derbyshire

3 Bedroom Cottage | Offers in region of £495,000

STYLISH COTTAGE - A three bedroom, two bathroom cottage located a short walk away to Duffield village. The property is n...

The Old Post Office, Turnditch, Belper, Derbyshire

3 Bedroom Detached House | Offers in region of £489,950

Nestled in the picturesque village of Turnditch, this charming detached house, known as The Old Post Office, offers a de...

Broadway, Duffield, Belper, Derbyshire

3 Bedroom Detached House | Offers Over £500,000

ECCLESBOURNE SCHOOL CATCHMENT AREA - This detached family home offers potential to be improved. Set back from the popula...

Darley Park Road, Darley Abbey, Derby

3 Bedroom Detached House | Offers Over £500,000

ECCLESBOURNE SCHOOL CATCHMENT AREA - A three double bedroom detached property with private rear garden backing directly...

Coalburn Crescent, Crich, Belper, Derbyshire

6 Bedroom Detached House | Offers in excess of £500,000

Attractive stone built six bedroom detached residence occupying an exclusive estate in the pretty village of Crich in De...

Fletcher & Company (Duffield)

Duffield, Derbyshire, DE56 4GD

01332 843390

How much is your home worth?

Use our short form to request a valuation of your property.

Request a Valuation

Mortgage Calculator

Amount Borrowed: £
Total Amount Repayable: £
Total Monthly Payment: £
©2026 The Guild of Property Professionals. All rights reserved. Terms and Conditions | Privacy Policy | Cookie Policy | Complaints Policy | Members Login
The Guild of Property Professionals Trading Address: 121 Park Lane, London W1K 7AG. GPEA Limited. Registered in England & Wales.  Company No: 02819824.  Registered Office Address: 2 St. Stephen's Court, St. Stephen's Road, Bournemouth, Dorset, England, BH2 6LA.  VAT Registration No: 576 8795 61
Book a Property Valuation Update Cookies Preferences