Hilltop House, Heage, Belper, Derbyshire

Offers in region of
£895,000

5 Bedroom Detached House for sale in Belper

5 5 4
  • Extensive Accommodation
  • Over 3500 sq ft of Living Accommodation
  • Large Private Plot
  • Stunning Views Towards Nether Heage, Fields & Historic Windmill
  • Extremely Spacious & Versatile Accommodation
  • Extensive Driveway & Tandem Double Garage
  • Private Low Maintenance Garden - Ideal for Entertaining
  • Rarity on the Market
  • Viewing Highly Recommended
  • Close to Open Countryside

A stunning, characterful, five double bedroom, detached residence in the sought after village of Heage.

This is a rare and exciting opportunity to acquire a sizeable detached residence of true style and character. Perched on a hillside location in the sought after village of Heage and with over 3500 sq ft of living space. Aptly named Hilltop House occupies a large private plot affording magnificent views towards Nether Heage, open fields and historic windmill. The plot is accessed by electric gates which culminate in an extensive driveway providing ample off-road parking for multiple vehicles and tandem garage which gives vehicular access to both front and rear. The gardens have been cleverly landscaped for ease of maintenance and feature extensive artificial lawn, a stone terrace/entertaining area with gazebo ideal for hot tub and further tiered landscape section.

The property features impressive high ceilings, larger than average windows and oozes character throughout. The accommodation comprises entrance hall leading to an inner lobby and fabulous staircase to first floor, cloak cupboard, well-appointed ground floor shower room, large living room with feature fireplace incorporating cast iron log burner, impressive open plan dining kitchen with views towards the windmill, utility off, further ground floor accommodation featuring dining room, study, gymnasium and games room. There is a lower ground floor, previously a cellar, which has now been converted to form a cinema room, games room and lobby/storage room with access to garden via steps. To the first floor there is a fabulous galleried landing with feature high ceilings incorporating remote controlled Velux windows, principle suite with double bedroom, bespoke fitted cupboards, dressing area, well-appointed en-suite shower room, a further double bedroom with en-suite shower room, three further double bedrooms and a large well-appointed main bathroom with four piece suite.

The Location - The village of Heage is known for the historic windmill which is believed to date back to 1797 and was restored in 2002. Heage and Nether Heage combine to offer a selection of amenities including reputable primary school, pubs, shop, beautiful walks in the surrounding open countryside and easy access to nearby towns of Belper and Ripley which offer a further range of excellent amenities. The property is also convenient for Derby and Nottingham, A38, A610 and M1. There is also easy access to the Peak District.

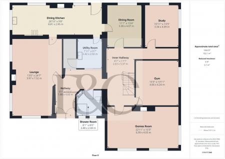
Accommodation -

Ground Floor -

Entrance Hall - 4.60 x 1.88 (15'1" x 6'2") - A twin, panelled, composite entrance door with sealed unit double glazed insets provides access to impressive entrance hall with porcelain tile floor, period style central heating radiator, decorative coving and archway to inner hallway.

Inner Hallway - 5.37 x 2.63 (17'7" x 8'7") - With impressive staircase to first floor incorporating polished wooden balustrade, two period style central heating radiators, continuation of the polished porcelain flooring, decorative coving and recessed ceiling spotlighting.

Cloak Cupboard - With continuation of the tile flooring and wall mounted Worcester gas fired boiler.

Superbly Appointed Ground Floor Shower Room - 2.48 x 2.44 (8'1" x 8'0") - Fully tiled with a contemporary white suite comprising low flush WC, pedestal wash handbasin, large walk-in shower cubicle, stylish towel radiator, recessed ceiling spotlighting and two double glazed and leaded windows to front.

Lounge - 7.52 x 3.97 (24'8" x 13'0") - A fabulous room with high ceilings, coving to ceiling, ceiling rose, focal point by way of a feature fireplace incorporating decorative brick surround, raised hearth and herringbone pattern brick interior with large cast iron log burner, two period style central heating radiators, TV aerial point and three double glazed and leaded windows, one of which offers particularly impressive views towards Nether Heage.

Large Open Plan Dining Kitchen - 8.81 x 2.95 (28'10" x 9'8") -

Dining Area - A spacious area with feature chimney breast with arched brick surround, tiled hearth and ornamental stove, two central heating radiators, decorative coving, recessed ceiling spotlighting and double glazed and leaded window with matching door to rear.

Kitchen Area - Comprising granite preparation surfaces with matching upstands and window sills, inset stainless steel sink unit with mixer tap, fitted oak base cupboards and drawers, appliance spaces suitable for a large seven plate gas range with double oven with extractor hood over, American style fridge freezer and dishwasher, recessed ceiling spotlighting, decorative coving and double glazed windows to side and rear, the latter offering impressive views of the historic windmill in Heage.

Utility - 2.92 x 2.42 (9'6" x 7'11") - Having granite effect worktops, inset stainless steel sink unit, fitted base cupboards and drawers, complementary wall mounted cupboards, appliance space suitable for washing machine, central heating radiator, decorative coving and recessed ceiling spotlighting.

Dining Room - 4.07 x 3.38 (13'4" x 11'1") - With floor to ceiling central heating radiator, decorative coving with ceiling rose, TV aerial point and double glazed and leaded window to rear.

Study - 4.09 x 3.34 (13'5" x 10'11") - With period style central heating radiator, decorative coving with ceiling rose and double glazed and leaded windows to side and rear with bespoke shutters.

Gym - 4.24 x 4.06 (13'10" x 13'3") - Having a period style central heating radiator, decorative coving, recessed ceiling spotlighting and double glazed and leaded window to side with bespoke shutters.

Games Room - 6.99 x 4.05 (22'11" x 13'3") - Having a feature fireplace with high level oak surround, Cornish slate hearth and interior with coal effect gas fire, two period style central heating radiators, stylish bar, decorative coving with ceiling rose, TV aerial point and two double glazed and leaded windows to front and one to side.

Cinema Room - 4.46 x 2.75 (14'7" x 9'0") - With central heating radiator.

Gaming Room - 3.80 x 2.77 (12'5" x 9'1") - With central heating radiator.

Rear Lobby - 3.00 x 2.31 (9'10" x 7'6") - With central heating radiator and door leading to steps to garden.

First Floor Landing - 5.36 x 2.56 (17'7" x 8'4") - A fabulous galleried landing with polished wooden balustrade, two stylish central heating radiators, recessed ceiling spotlighting, two sealed unit double glazed Velux windows, recessed ceiling spotlighting and steps leading up to principle bedroom.

Bedroom One - 6.15 x 4.08 (20'2" x 13'4") - Having a central heating radiator, exposed beam, storage into eves and double glazed and leaded window.

Superbly Appointed En-Suite Shower Room - 2.00 x 1.80 (6'6" x 5'10") - Partly tiled with a low flush WC, walk-in shower enclosure, vanity unity with wash handbasin and drawer beneath, central heating radiator and Velux window.

Double Bedroom Two - 5.03 x 3.59 (16'6" x 11'9") - With stylish central heating radiator, bespoke fitted wardrobe and desk, access to loft space and double glazed and leaded window to side offering views over fields in the distance and the historic windmill.

Superbly Appointed Shower Room - 3.87 x 1.34 (12'8" x 4'4") - Fully tiled with a low flush WC, vanity unit with wash handbasin and drawer beneath, walk-in shower cubicle, chrome towel radiator and recessed ceiling spotlighting.

Double Bedroom Three - 4.76 x 4.07 (15'7" x 13'4") - Having a central heating radiator, bespoke fitted wardrobes, storage recess and double glazed and leaded window to front.

Double Bedroom Four - 3.56 x 3.07 (11'8" x 10'0") - With stylish central heating radiator and double glazed and leaded window to side with views over fields and towards windmill.

Double Bedroom Five - 3.45 x 3.02 (11'3" x 9'10") - With central heating radiator, airing cupboard housing the hot water cylinder and double glazed and leaded window to front.

Superbly Appointed Bathroom - 3.38 x 1.78 (11'1" x 5'10") - Fully tiled with a white suite comprising low flush WC, vanity unit with drawers beneath, panelled bath, separate shower cubicle, chrome towel radiator, recessed ceiling spotlighting and double glazed and leaded window to side.

Outside - The property is set on a sizable plot on a hillside location affording fabulous views towards Nether Heage and towards the historic windmill and fields. The property is accessed via electric gates offering a high degree of security and culminating in an extensive block paved driveway providing off-road parking for several vehicles. To the rear of the property is a tandem garage with vehiclar access to both front and rear. The main gardens lie to the side of the property and feature a large artificial lawn, fabulous landscaped terrace offering outdoor dining and enjoying wonderful views. There is a timber framed gazebo ideal for a hot tub beneath. The garden is bounded by attractive brick walling and wrought iron railings with a further tiered landscaped section which is well planted with shrubs and flowers. Further features include CCTV and ornamental lighting as well as outdoor power and water supply.

Council Tax Band F -

Property Ref: 10877_34377801

Share:

Similar Properties

Bobbin Mill Hill, Fritchley, Belper, Derbyshire

4 Bedroom Detached House | £875,000

Located in the charming village of Fritchley, Belper, this remarkable detached stone cottage, once part of the historic...

Short Avenue, Allestree Park, Derby

5 Bedroom Detached House | Offers in region of £875,000

ALLESTREE PARK & LAKE - A beautifully renovated and extremely versatile, four to six bedroom, detached family home.The p...

Ashbourne Road, Cowers Lane

5 Bedroom Farm House | Offers Over £850,000

A fine stone built detached farmhouse believed to date back to circa 1750 and set in the most beautiful mature grounds o...

Ashover House, Duffield Road, Darley Abbey, Derby

5 Bedroom Detached House | £925,000

ECCLESBOURNE SCHOOL CATCHMENT AREA - This is a superbly appointed, recently constructed, spacious detached residence for...

Burland Green Lane, Weston Underwood, Ashbourne

4 Bedroom Detached House | £1,000,000

AN OUTSTANDING ULTRA MODERN HOME - Enjoy an enviable lifestyle within a hyper environmental property with stunning and f...

New Road House, Alderwasley, Belper, Derbyshire

5 Bedroom Detached House | Offers in region of £1,150,000

This stunning stone detached country home with panoramic countryside views offers a perfect blend of elegance and comfor...

Fletcher & Company (Duffield)

Duffield, Derbyshire, DE56 4GD

01332 843390

How much is your home worth?

Use our short form to request a valuation of your property.

Request a Valuation

Mortgage Calculator

Amount Borrowed: £
Total Amount Repayable: £
Total Monthly Payment: £
©2026 The Guild of Property Professionals. All rights reserved. Terms and Conditions | Privacy Policy | Cookie Policy | Complaints Policy | Members Login
The Guild of Property Professionals Trading Address: 121 Park Lane, London W1K 7AG. GPEA Limited. Registered in England & Wales.  Company No: 02819824.  Registered Office Address: 2 St. Stephen's Court, St. Stephen's Road, Bournemouth, Dorset, England, BH2 6LA.  VAT Registration No: 576 8795 61
Book a Property Valuation Update Cookies Preferences