Oak Cottages, Bentham

Offers in region of
£184,000
Under Offer
This property listing is now Under Offer

2 Bedroom Cottage for sale in Bentham

1 2 1
  • 2 Bed Character Cottage
  • Exposed Beams & Feature Fireplaces
  • Spacious Kitchen/Diner
  • Freehold
  • EPC Rating: C
  • Front Garden
  • No Chain
  • Parking to Rear
  • Ideal First Home, Holiday or Residential Let
  • Dales, Bowland & Lakes

4 Oak Cottages is a charming 2 bed character cottage in High Bentham. The property comprises a kitchen with front and rear access, a lounge with a log-burning stove, two double bedrooms, and a bathroom. Outside, there is a front garden, rear yard, and off-road parking.

An ideal first home or a holiday/residential let.

Property Description - Welcome to 4 Oak Cottages - a beautifully presented, double-fronted 2-bedroom character cottage located in the popular market town of Bentham. Conveniently positioned for local amenities and travel, this charming home effortlessly combines period character with modern comforts.

The property retains many original features, including feature fireplaces, deep window sills with seating, exposed beams, and pine doors throughout, all complemented by a high standard of refurbishment.

On the ground floor, you'll find a good sized kitchen with attractive stone-flagged flooring, and a separate, cosy dual-aspect lounge featuring a log-burning stove - perfect for relaxing evenings. Upstairs, there are two spacious double bedrooms and a modern, fully fitted bathroom.

Externally, the property benefits from a low-maintenance front garden, a good-sized rear yard, and off-road parking.

An ideal first home or a successful holiday let opportunity in a sought-after destination, 4 Oak Cottages is full of charm and character.

Property Information - Tenure: Freehold
Council Tax Band: SBR
EPC Rating: C
Services: All mains
Broadband: Available

High Bentham Location - High Bentham is a vibrant market town offering a good variety of shops, bars, and takeaways. The town benefits from a well-regarded primary school, a medical surgery, and a train station on the Leeds-Lancaster line, providing excellent connectivity.

Families can access excellent secondary education within the catchment areas of Queen Elizabeth School in Kirkby Lonsdale and Settle College. Both of these nearby market towns feature Booths supermarkets and a charming mix of independent shops.

High Bentham is conveniently located about 30 minutes by car from Kendal and Lancaster, with easy access to the M6 motorway. Situated on the northern edge of the Forest of Bowland Area of Outstanding Natural Beauty, it also offers close proximity to the Yorkshire Dales, Lake District, and Morecambe Bay-perfect for scenic day trips and outdoor adventures.

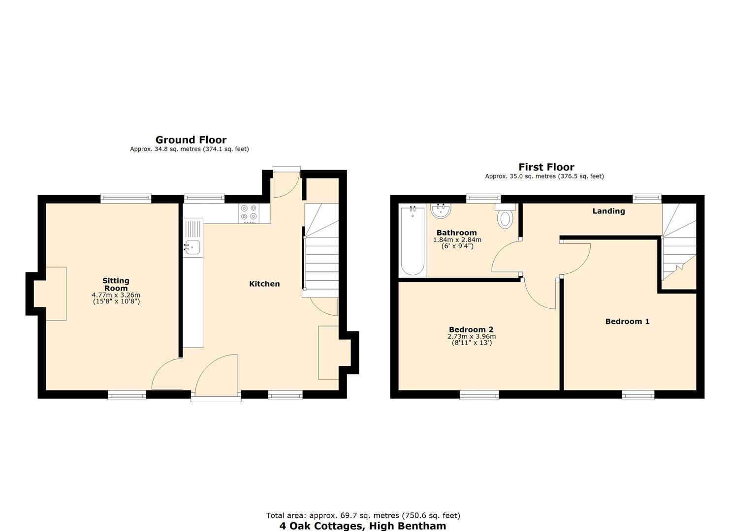
Ground Floor -

Dining Kitchen - 16' 1" x 13' 2" (4.9m x 4.01m) - Multicolour flagged stone flooring, radiator, open fireplace with stone hearth, range of wall and base units with under cupboard lighting, single drainer sink, double oven with 4 ring gas hob and extractor hood over, under stairs cupboard, exposed beams, double glazed window to front and rear aspect, glazed timber door to front, double glazed UPVC door to rear yard.

Sitting Room - 15' 10" x 10' 8" (4.83m x 3.25m) - Fitted carpet, radiator, stone hearth housing wood burning stove, shelved alcove, exposed beams, double glazed window to both front and rear aspect.

First Floor -

Landing - 12' 4" x 12' 8" (3.76m x 3.86m) - Fitted carpet, radiator, access to all rooms, staircase to ground floor, loft access, exposed beam, double glazed window to rear aspect.

Bedroom One - 12' 7" x 9' 4" (3.84m x 2.84m) - Double room with fitted carpet, radiator, fireplace, exposed beam, double glazed window to front aspect.

Bedroom Two - 0" x 0' 0" (0m x 0m) - Double room with fitted carpet, radiator, exposed beam, double glazed window to front aspect.

Bathroom - Wooden floorboards, heated towel rail, wash basin, toilet, bath with shower over, exposed beam, double glazed window with privacy glass to rear aspect.

External -

Front - Low maintenance gravelled garden to front.

Rear - Concrete yard with parking.

Agent Notes - Fisher Hopper has not tested services, fixtures, fittings, central heating, gas and electrical systems. If in doubt, purchasers should seek professional advice. Items in these photographs may not be included in the sale of the property.

OFFER PROCEDURE

Fisher Hopper, as agents in the sale of the property, are required to formally check the identification of prospective purchasers. In addition, purchasers may be asked to provide information regarding the source of funds as part of our offer handling process.

At the point an offer is accepted, an Onboarding Fee of £25.00 (inc. VAT) will be payable. This fee covers the legally required Anti-Money Laundering (AML) searches and secure digital verification to progress your purchase promptly and safely.

You can pay this fee securely online at:
https://shorturl.at/zAqJj

FINANCIAL ADVICE
Free and no obligation mortgage advice is available on our website. Alternatively, please contact us to arrange a call from our mortgage broker.
Your home is at risk if you do not keep up the repayments on a mortgage or other loan secured on it. Written details available upon request

MARKET APPRAISALS
If you have a property or business which needs a market appraisal or valuation, our local knowledge, experience and coverage will ensure you get the best advice. Our Guild Referral Network of over 800 specially selected offices can provide this no obligation service anywhere in the country. Call or email now to let us get you moving.

INTRODUCERS FEES
Fisher Hopper Ltd receives and introducers fee from Napthens Solicitors of £100.00 + VAT for all successful introductions.

FISHER HOPPER
Fisher Hopper is a trading name for Fisher Hopper Limited, which is registered in England No 08514050. The registered office for the company is: 5 Battalion Court, Colburn Business Park, Catterick Garrison, England, DL9 4QN. Company Director: M. Alexander
The office address for Fisher Hopper is: 43 Main Street, Bentham, Lancaster, North Yorkshire LA2 7HJ.

FLOOR PLANS
Please note, floor plans are not to scale and are for illustration purposes only. Plans are produced using PlanUp.

Property Ref: 780361_34137719

Share:

Similar Properties

2 Sawmill Cottages, Burton In Lonsdale

2 Bedroom Terraced House | Offers in region of £180,000

This charming two-bedroom character cottage is quietly tucked away in the heart of the popular village of Burton in Lons...

3 Baynes Cottages, Low Bentham

2 Bedroom Terraced House | Offers Over £175,000

A charming two-bedroom cottage in peaceful Low Bentham, with a spacious open-plan layout and a generous low-maintenance...

4 South View, High Bentham

4 Bedroom End of Terrace House | Offers in region of £175,000

A substantial four bed end-terrace in High Bentham, offering easy access to the train station and local amenities. Arran...

Craven Cottage, Ingleton

2 Bedroom Terraced House | Offers in region of £185,000

A rare opportunity with this charming, 2 double bedroom character terraced cottage located in the popular village of Ing...

3 Stonebower Cottages, Burton in Lonsdale

2 Bedroom Terraced House | Guide Price £185,000

Charming two-bedroom period cottage in Burton in Lonsdale, full of character and period features, with a private enclose...

16 Goodenber Road, High Bentham

3 Bedroom Terraced House | Offers in region of £189,000

Spacious 3 bed mid-terraced family home is presented in good order, benefitting from a generous rear garden, good-sized...

Fisher Hopper Ltd (Bentham)

43 Main Street, Bentham, North Yorkshire, LA2 7HJ

015242 62044

How much is your home worth?

Use our short form to request a valuation of your property.

Request a Valuation

Mortgage Calculator

Amount Borrowed: £
Total Amount Repayable: £
Total Monthly Payment: £
©2026 The Guild of Property Professionals. All rights reserved. Terms and Conditions | Privacy Policy | Cookie Policy | Complaints Policy | Members Login
The Guild of Property Professionals Trading Address: 121 Park Lane, London W1K 7AG. GPEA Limited. Registered in England & Wales.  Company No: 02819824.  Registered Office Address: 2 St. Stephen's Court, St. Stephen's Road, Bournemouth, Dorset, England, BH2 6LA.  VAT Registration No: 576 8795 61
Book a Property Valuation Update Cookies Preferences