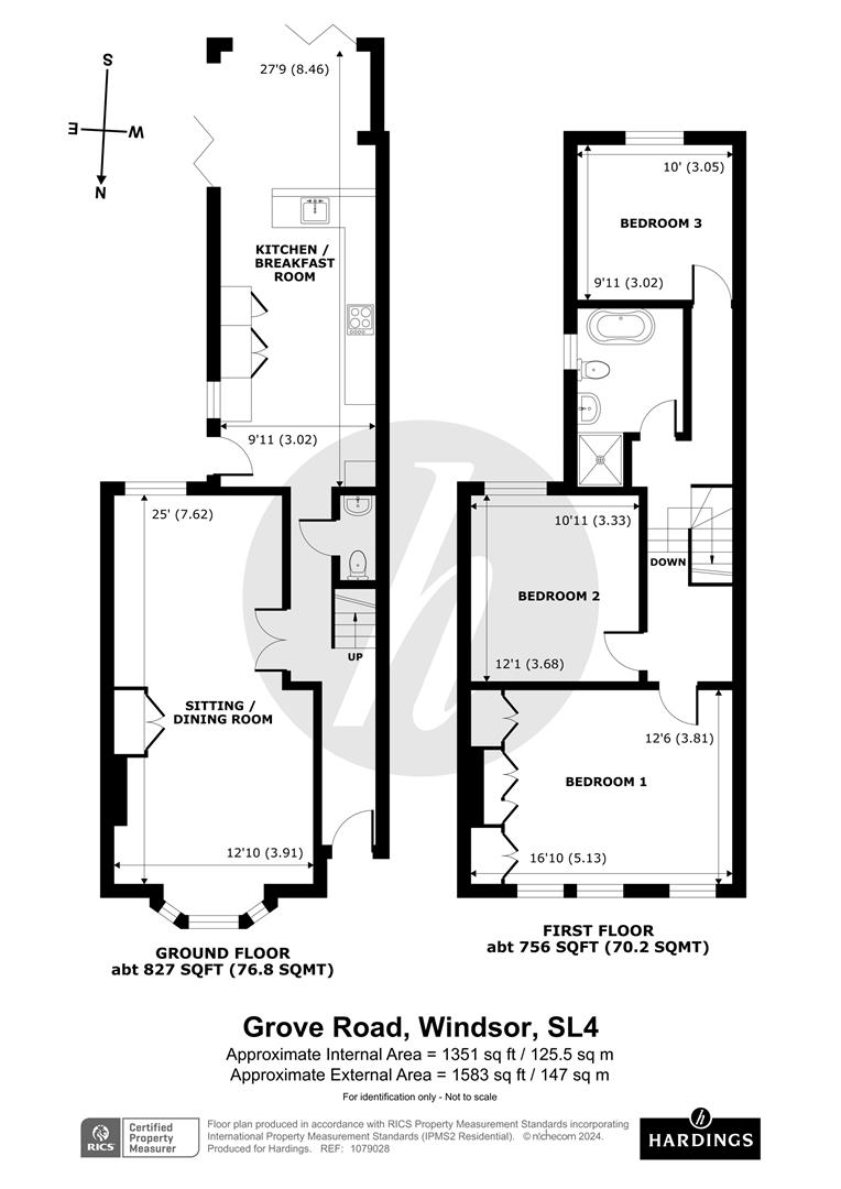
Grove Road, Windsor

Guide Price
£885,000
SSTC
This property listing is now SSTC

3 Bedroom Semi-Detached House for sale in Berkshire

2 3 1
  • 3 Bedroom Period Property
  • Semi-Detached with Side Access
  • High Ceilings and Period Features
  • South Facing Garden
  • Council tax Band F
  • Cloakroom
  • Kitchen/Breakfast Room
  • Potential to Extend (stpp)
  • Popular Town Centre Location
  • Short Walk to Mainline Rail Links to London (Waterloo & Paddington) & Local Amenities

A superb 3 bedroom semi-detached period property located on this popular residential road in the heart of Windsor town centre, just a short walk to Windsor's colorful array of shops, bars and restaurants and mainline rail links to London. Offering spacious and well proportioned rooms with high ceilings and a wealth of period features, the further benefits from side access, cloakroom, south facing garden and potential to extend (stpp).

Property Ref: 6500824_32866991

Share:

Similar Properties

Queens Road, Windsor, Berkshire

4 Bedroom Terraced House | Offers Over £885,000

A superb 4 bedroom period villa located on a popular residential road, just a short walk to Windsor's shops, restaurants...

Queens Road, Windsor

4 Bedroom House | Guide Price £885,000

A stunning four bedroom Victorian villa situated in a desirable residential road just a moments walk from Windsor Town C...

Nightingale Walk, Windsor

4 Bedroom Townhouse | £875,000

A superb 4 bedroom, 2 bathroom town house offering well presented and spacious living accommodation arranged over 3 floo...

Queens Road, Windsor

4 Bedroom Terraced House | Guide Price £899,950

An attractive 4 bedroom period villa occupying a central location on a popular residential street just a short walk to l...

Alma Road, Windsor, Berkshire

5 Bedroom End of Terrace House | Offers Over £900,000

**REFURBISHMENT OPPORTUNITY**A superb opportunity to acquire this period townhouse in the heart of Windsor's town centre...

Springfield Road, Windsor

4 Bedroom Semi-Detached House | Guide Price £900,000

We are delighted to introduce 'Laverock' to the market, a stunning 4 bedroom newbuild smart home, one of a pair of ident...

Hardings Estate Agents (Windsor)

Windsor, Berkshire, SL4 1LD

01753 833118

How much is your home worth?

Use our short form to request a valuation of your property.

Request a Valuation

Mortgage Calculator

Amount Borrowed: £
Total Amount Repayable: £
Total Monthly Payment: £
©2025 The Guild of Property Professionals. All rights reserved. Terms and Conditions | Privacy Policy | Cookie Policy | Complaints Policy | Members Login
The Guild of Property Professionals Trading Address: 121 Park Lane, London W1K 7AG. GPEA Limited. Registered in England & Wales.  Company No: 02819824.  Registered Office Address: 2 St. Stephen's Court, St. Stephen's Road, Bournemouth, Dorset, England, BH2 6LA.  VAT Registration No: 576 8795 61
Book a Property Valuation Update Cookies Preferences