Southcote Road, Reading, Berkshire, RG30

£200,000

1 Bedroom Apartment for sale in Berkshire

1 1 1

Offered to the market with no onward chain complications is this well-presented and spacious one-bedroom apartment is located on a sought-after, tree-lined road just west of Reading town centre. Ideally situated for convenient access to the town centre, it is also just over half a mile from the newly refurbished Reading West station as well excellent transport links.

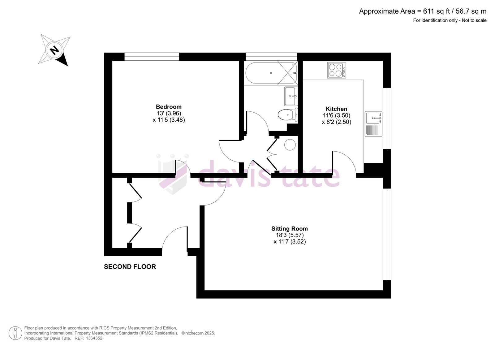
Positioned on an upper floor, the property features a generous 18' reception room with floor-to-ceiling windows, offering stunning views across Reading. Additional highlights include a spacious modern-style kitchen, a modern bathroom, a spacious bedroom, and a generously sized entrance hall. The apartment also benefits from a share of the freehold and a long lease. EPC D.

Local Information
Located to the west of the town centre, West Reading covers the three main roads leading into Reading - Bath Road, Tilehurst Road and the Oxford Road. There are some prominent schools in the area such as Wilson Road Primary School & St Edward's Prep School. The Oxford Road is a vibrant area and has a huge diversity of shops and restaurants. Transport links include Reading West train station, newly refurbished in 2023 with trains to Newbury and London and key bus routes helping you access all areas of Reading. It is certainly an area that is popular amongst families and the business professional. There are some excellent outside spaces such as Prospect Park which is a lovely area for the family.

Accommodation
The property opens into a generous sized entrance hall with spacious storage cupboard and doors leading to the bedroom and the spacious living room, the living room gives access to the kitchen and an inner hall with doors leading to the bathroom and the bedroom.

Outside Space
Outside there are generously sized, well maintained communal gardens and off street parking on a first come first serve basis. There is also on street parking on the Southcote Road.

Additional Information
Water, mains drainage and electric connected
Reading Borough Council
Council Tax Band B

Lease Information
Lease Length 999 years as of 11th January 2008
Ground Rent £0.00
Service Charge £1809.00 PA

Important Information

  • This is a Share of Freehold property.

Property Ref: 242456_DRE250658

Share:

Similar Properties

Maltings Place, Reading, Berkshire, RG1

1 Bedroom Apartment | £200,000

Rembrandt Way, Reading, Berkshire, RG1

1 Bedroom Apartment | £180,000

Redlands Road, Reading, Berkshire, RG1

1 Bedroom Apartment | £170,000

Duke Street, Reading, RG1

1 Bedroom Apartment | Offers in excess of £230,000

Crane Wharf, Reading, Berkshire, RG1

1 Bedroom Apartment | Guide Price £237,500

London Road, Reading, Berkshire, RG1

2 Bedroom Apartment | Guide Price £270,000

Davis Tate (Reading)

10 Kings Road, Reading, Berkshire, RG1 3AA

0118 958 7979

How much is your home worth?

Use our short form to request a valuation of your property.

Request a Valuation

Mortgage Calculator

Amount Borrowed: £
Total Amount Repayable: £
Total Monthly Payment: £
©2025 The Guild of Property Professionals. All rights reserved. Terms and Conditions | Privacy Policy | Cookie Policy | Complaints Policy | Members Login
The Guild of Property Professionals Trading Address: 121 Park Lane, London W1K 7AG. GPEA Limited. Registered in England & Wales.  Company No: 02819824.  Registered Office Address: 2 St. Stephen's Court, St. Stephen's Road, Bournemouth, Dorset, England, BH2 6LA.  VAT Registration No: 576 8795 61
Book a Property Valuation Update Cookies Preferences