Hatch Ride, Crowthorne, Berkshire, RG45

£665,000

4 Bedroom House for sale in Berkshire

4

Offered to the market with NO ONWARD CHAIN is this family home, that has been completely transformed, extended and reconfigured by the current owners and is presented in excellent order throughout!
Located on the popular Hatch Ride in the heart of Crowthorne village, this property boasts versatile living space with generous bright and airy rooms and is perfect for buyers looking for open plan accommodation!
This semi-detached home is just a short walk of well-regarded schools, including Hatch Ride Primary School, Oaklands Infant School and the outstanding Edgbarrow Secondary School.
On top of this, you are conveniently situated within close proximity of local shops and woodland walks including Bucklers Forest, Heath Lake Nature Reserve and Pinewood Activity Centre.
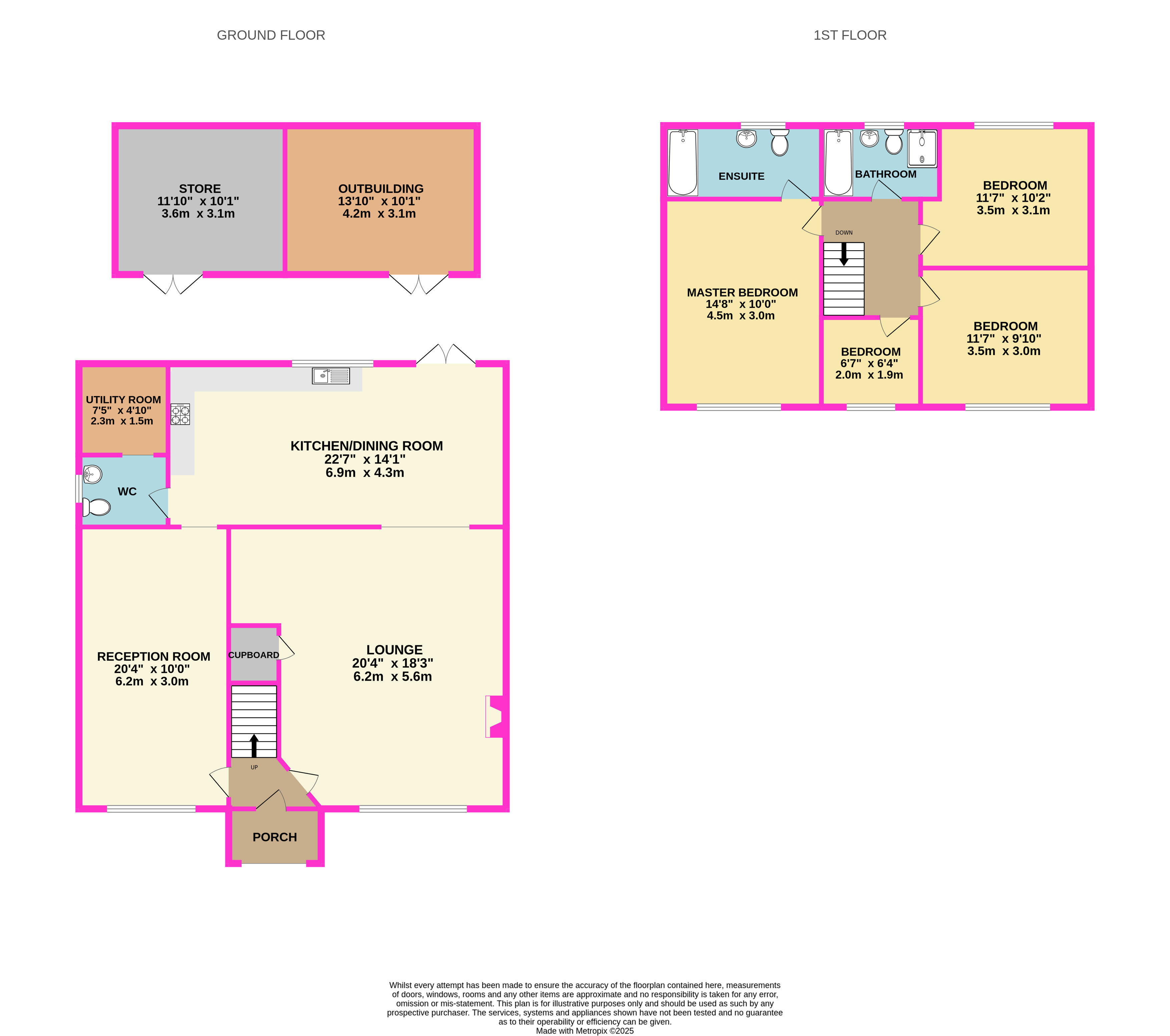
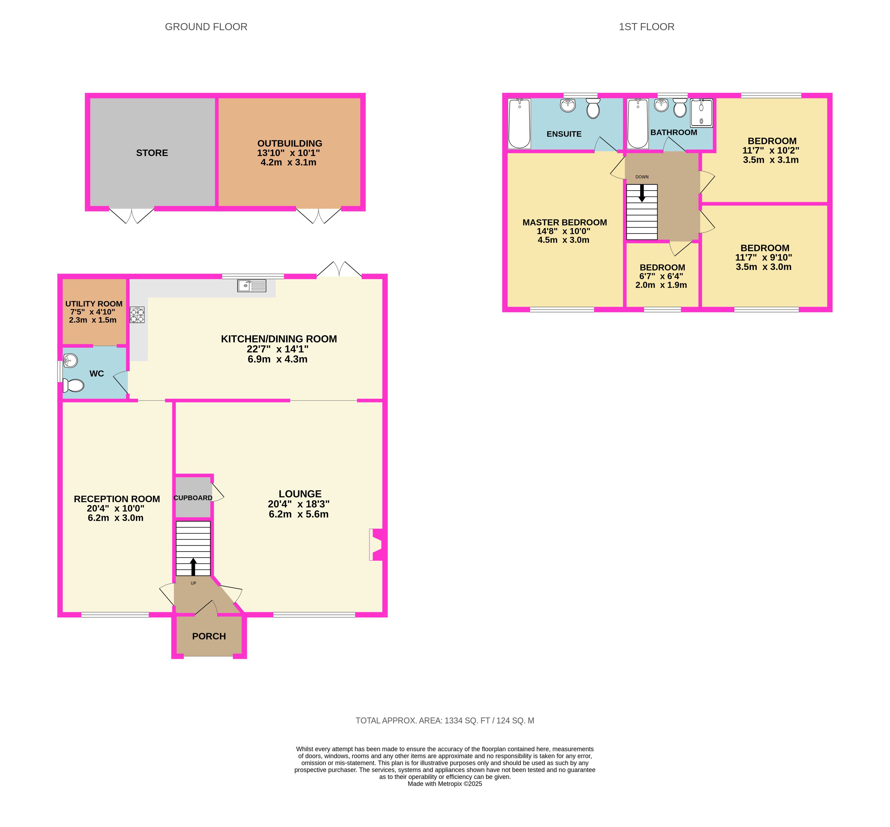
Accommodation of this extended home comprises of a spacious lounge, another good sized reception room, downstairs WC, utility room and the heart of the home; the refitted kitchen/dining room, boasting 22ft of entertaining space.
Upstairs there are four bedrooms (three of them doubles) with a refitted en suite bathroom to the master and a refitted four piece family bathroom.
Outside there is a large driveway for ample parking and a generous well-maintained garden to the rear, with an outbuilding that could prove perfect for a home office/gym setup.
Viewings are highly advised as we expect a high demand for this substantial semi-detached home!

Important Information

  • This is a Freehold property.

Property Ref: 9768854_CAS240075

Share:

Similar Properties

Murdoch Road, Wokingham, Berkshire, RG40

2 Bedroom House | £650,000

noir by david cliff - SO MUCH SPACE Tucked away on the ever-popular Murdoch Road, just moments from the vibrant heart of...

Challenor Close, Finchampstead, Wokingham, Berkshire, RG40

4 Bedroom House | £650,000

COMFY & CONTEMPORARY- Tucked away on a wonderfully peaceful cul-de-sac within the ever-desirable Fern Lea development, t...

Lowther Close, Wokingham, Berkshire, RG41

4 Bedroom House | Offers in excess of £650,000

NO ONWARD CHAIN- Set in a peaceful cul-de-sac in the sought-after Emmbrook area of Wokingham, this well-maintained four-...

The Street, Swallowfield, Reading, Berkshire, RG7

5 Bedroom House | Guide Price £685,000

TRUE VILLAGE LIFE – Family life is easy to imagine here and yet you still have potential, if you have the imaginati...

Greystoke Court, Crowthorne, Berkshire, RG45

4 Bedroom House | Guide Price £699,950

Ideally located in the heart of Crowthorne, on this sought after and quiet no-through road, conveniently within a short...

Maple Drive, Crowthorne, Berkshire, RG45

4 Bedroom House | Offers in excess of £700,000

Offered to the market with NO ONWARD CHAIN is this rarely available extended family home, boasting plenty of potential.T...

David Cliff (Wokingham)

Wokingham, Berkshire, RG40 1XJ

0118 989 9770

How much is your home worth?

Use our short form to request a valuation of your property.

Request a Valuation

Mortgage Calculator

Amount Borrowed: £
Total Amount Repayable: £
Total Monthly Payment: £
©2026 The Guild of Property Professionals. All rights reserved. Terms and Conditions | Privacy Policy | Cookie Policy | Complaints Policy | Members Login
The Guild of Property Professionals Trading Address: 121 Park Lane, London W1K 7AG. GPEA Limited. Registered in England & Wales.  Company No: 02819824.  Registered Office Address: 2 St. Stephen's Court, St. Stephen's Road, Bournemouth, Dorset, England, BH2 6LA.  VAT Registration No: 576 8795 61
Book a Property Valuation Update Cookies Preferences