Oakdene Road, Brockham

Offers in excess of
£425,000

2 Bedroom End of Terrace House for sale in Betchworth

2 1
  • TWO DOUBLE BEDROOMS
  • NO ONWARD CHAIN
  • FRONT & REAR GARDENS
  • 11FT LIVING ROOM
  • BRIGHT AND SPACIOUS ACCOMMODATION
  • DINING ROOM
  • MASTER BEDROOM WITH ENSUITE BATHROOM
  • BROCKHAM VILLAGE LOCATION
  • SHORT WALK TO THE VILLAGE SHOP, GREEN, PHARMACY AND CHURCH
  • CLOSE TO MILES OF OPEN COUNTRYSIDE ON YOUR DOORSTEP

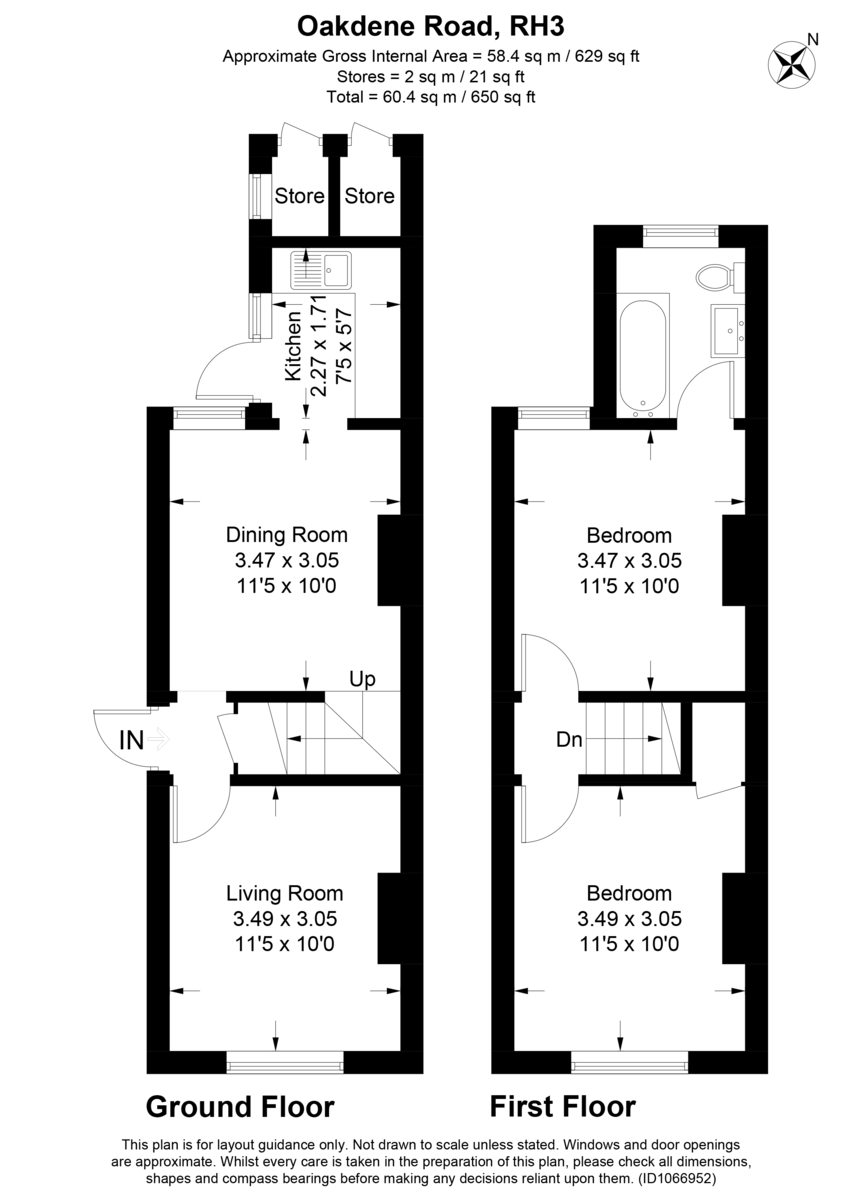
A charming end of terrace house, nestled in the popular village of Brockham, offering two double bedrooms, a large garden and bright, spacious living accommodation. Situated just a few moments away from everything the wonderful village of Brockham has to offer including the village shop, excellent butchers, bus stop, nursery, doctor's surgery and popular local school.

This updated property begins in the hallway, which leads into the front aspect living room which offers bright and generous proportions, ideal for housing a large suite. From here you are lead through to the dining room which enjoys views out to the garden. There is an extra area of worktop and space for freestanding kitchen appliances. The kitchen sits at the back of the property and has been fitted with a contemporary range of base and eye level cupboards, electric hob and hood as well as plenty of workspace for all of the modern-day appliances. There is also space for a freestanding fridge/freezer and convenient access out to the garden.

Upstairs, there are two good sized double bedrooms, the front aspect bedroom benefits from fitted storage cupboards and additional room for freestanding furniture. The principal bedroom enjoys views out to the rear garden as well as access to the bathroom which has been fitted with a white three-piece suite and has been tiled for a clean and practical feel.

Outside
To the front of the property there is a paved garden with a path leading to the front door as well as a side access gate into the rear garden. The delightful back garden is yet another wonderful feature to this home which enjoys a North-West facing aspect. The garden has been split into two zones beginning with a generous patio area, ideal for outdoor entertaining and leads round to the two very useful stores. Towards the back is an area of lawn all of which is fully fence enclosed creating a sense of privacy with a mixture of mature trees, shrubs and beds.

Parking
The property does not include allocated parking, however residents of Oakdene Road can park on the street which does not require a permit to use.

Council Tax & Utilities
This property falls under Council Tax Band D. The property is connected to mains water, drainage, gas and electricity. There is broadband connection to the property.


Location
Brockham is 1.5 miles east of Dorking and is highly regarded in the area, with its picturesque Green, famous Bonfire night. This property is walking distance to the doctor's surgery, shops, pubs, Church, school and veterinary centre. The village website www.brockham.org identifies many of the clubs, societies and local facilities. Dorking and Reigate market town centres are a short drive away offering major supermarkets, leisure centres, theatres, cinemas and main line stations connecting to London Victoria, London Waterloo and Reading. The area is particularly well known for the surrounding countryside which is ideal for walking, riding and outdoor pursuits. Brockham sits at the base of Box Hill and Leith Hill National Trust areas, part of the Surrey Hills area of outstanding natural beauty.

VIEWING - Strictly by appointment through Seymours Estate Agents, Cummins House, 62 South Street, Dorking, RH4 2HD

FIXTURES AND FITTINGS - We have not carried out a detailed survey, nor tested the appliances, mechanical or electrical fittings.

MISREPRESENTATION ACT - Whilst every care has been taken to prepare these sales particulars, they are for guidance purposes only and should not be relied upon. Potential buyers are advised to recheck the measurements.
 

Property Ref: 58865_102709003558

Share:

Similar Properties

Riverside, Pixham

2 Bedroom Terraced House | Guide Price £425,000

A well-presented, two-bedroom period terrace house offering bright and spacious accommodation with charming and characte...

Bennetts Wood, Capel

2 Bedroom Terraced Bungalow | Offers in excess of £425,000

A stunning two-bedroom, mid terraced bungalow, which has been meticulously refurbished and extended to an exceptional st...

Vincent Lane, Dorking

2 Bedroom End of Terrace House | Offers in excess of £425,000

A charming end-of-terrace cottage featuring two double bedrooms and a bonus loft room, offering well presented accommoda...

Abinger Close, North Holmwood

3 Bedroom End of Terrace House | Guide Price £435,000

Set in a peaceful, tucked-away position within the ever-popular North Holmwood Park development, this modern three-bedro...

Furlong Road, Westcott

2 Bedroom Semi-Detached House | Guide Price £439,950

A charming semi-detached home boasting two delightful double bedrooms, seamlessly blending period charm with contemporar...

Tanners Meadow, Brockham

2 Bedroom Semi-Detached House | Guide Price £439,950

A two-bedroom semi-detached home, tucked away in a peaceful position with a delightful south-facing garden, single garag...

Seymours (Dorking)

62 South Street,, Dorking, Surrey, RH4 2HD

01306 776674

How much is your home worth?

Use our short form to request a valuation of your property.

Request a Valuation

Mortgage Calculator

Amount Borrowed: £
Total Amount Repayable: £
Total Monthly Payment: £
©2026 The Guild of Property Professionals. All rights reserved. Terms and Conditions | Privacy Policy | Cookie Policy | Complaints Policy | Members Login
The Guild of Property Professionals Trading Address: 121 Park Lane, London W1K 7AG. GPEA Limited. Registered in England & Wales.  Company No: 02819824.  Registered Office Address: 2 St. Stephen's Court, St. Stephen's Road, Bournemouth, Dorset, England, BH2 6LA.  VAT Registration No: 576 8795 61
Book a Property Valuation Update Cookies Preferences