near Haverfordwest Pembrokeshire, Haverfordwest

Offers in region of
£130,000

Land for sale in Bethlehem Haverfordwest

*An opportunity to purchase a conveniently located parcel of level pasture land woodland providing natural shelter.
*Suitable for grazing or cropping or for equestrian purposes or conservation use.

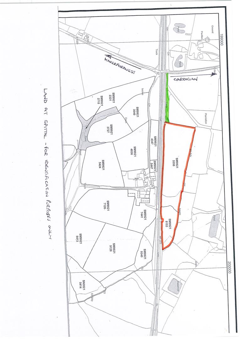
Situation - The land is situated on the B4329 Haverfordwest to Cardigan roadway close to the Scolton Manor Country Park, in a rural setting some 4-5 miles or so north of Haverfordwest. The land lies within easy reach of the villages of Spittal, Clarbeston Road, Crundale and Poyston Cross.

Description - A plan of the land is attached for identification purposes only. The land is approached off the B4329 by virtue of a short green lane, that is subject to a right of way in favour of the owner of the roadside field. This lane opens into the land being sold, which comprises two fields together with natural woodland which is a nice feature providing a degree of natural shelter.

The land is level productive farmland all down to pasture and within a boundary fence which in the main is two strand wire to hedgerows. The boundary to the south is with the railway line.

The land is ideally suited for grazing and cropping whilst the woodland area could perhaps be used for conservation or amenity use.

Services - There are no services connected to the land although there is a small stream in the woodland.

Local authority: Pembrokeshire County Council, County Hall, Haverfordwest, Pembrokeshire. Telephone 01437 764551

General Remarks - The sale of this parcel of land offers a rare opportunity to purchase a conveniently located block of land that has potential for grazing and cropping.
Viewing is highly recommended.

Anti Money Laundering & Ability To Purchase - Please note when making an offer we will require information to enable us to confirm all parties identities as required by Anti Money Laundering (AML) Regulations. We may also conduct a digital search to confirm your identity.

We will also require full proof of funds such as a mortgage agreement in principle, proof of cash deposit or if no mortgage is required, we will require sight of a bank statement. Should the purchase be funded through the sale of another property, we will require confirmation the sale is sufficient enough to cover the purchase.

Broadband Availability - According to the Ofcom website, this property has both standard and ultrafast broadband available, with speeds up to 4mbps upload and 1mbps download and Ultrafast 220 upload and 1800 download. Please note this data was obtained from an online search conducted on ofcom.org.uk and was correct at the time of production.
Some rural areas are yet to have the infrastructure upgraded and there are alternative options which include satellite and mobile broadband available. Prospective buyers should make their own enquiries into the availability of services with their chosen provider.

Mobile Phone Coverage - The Ofcom website states that the property has the following mobile coverage

EE - Variable (outdoor only)
Three - Variable (indoor), Good (outdoor)
O2 - Variable (outdoor only)
Vodafone. - Poor to none.

Results are predictions and not a guarantee. Actual services available may be different from results and may be affected by network outages. Please note this data was obtained from an online search conducted on ofcom.org.uk and was correct at the time of production. Prospective buyers should make their own enquiries into the availability of services with their chosen provider.

Property Ref: 856974_34067665

Share:

Similar Properties

Orchard Row, Llangwm

2 Bedroom Cottage | £125,000

*Former Fisherman's Cottage close to the tidal waters of the Cleddau Estuary*Character 2 Bedroom Accommodation*In need o...

Tasker Way, Haverfordwest

1 Bedroom Flat | £120,000

*Modern first-floor flat in a desirable cul-de-sac location*Remainder of NHBC guarantee for peace of mind*Nicely present...

South Court, Haverfordwest

End of Terrace House | Offers in region of £117,000

*Three-bedroom mid-terrace house located at 11 South Court*Two spacious reception rooms offering flexible living space*F...

Caer Farchell, Solva, Haverfordwest

3 Bedroom End of Terrace House | Guide Price £140,000

*Character Property*Countryside Views*2 Reception Rooms & 3 Bedrooms*Village Location*In Need Of Updating*Informal Tende...

Hawthorn Rise, Haverfordwest

4 Bedroom End of Terrace House | Offers Over £140,000

A Spacious, Extended & Well Presented Family Home.Off Road Parking, Enclosed Rear Garden & Views Towards the Preseli's.C...

Camuset Close, Hakin

3 Bedroom Terraced House | Offers in region of £145,000

*Immaculate three-bedroom mid-terrace home in pristine condition*High specification finish throughout - stylish, modern,...

JJ Morris (Haverfordwest)

4 Picton Place, Haverfordwest, Pembrokeshire, SA61 2LX

01437 760440

How much is your home worth?

Use our short form to request a valuation of your property.

Request a Valuation

Mortgage Calculator

Amount Borrowed: £
Total Amount Repayable: £
Total Monthly Payment: £
©2025 The Guild of Property Professionals. All rights reserved. Terms and Conditions | Privacy Policy | Cookie Policy | Complaints Policy | Members Login
The Guild of Property Professionals Trading Address: 121 Park Lane, London W1K 7AG. GPEA Limited. Registered in England & Wales.  Company No: 02819824.  Registered Office Address: 2 St. Stephen's Court, St. Stephen's Road, Bournemouth, Dorset, England, BH2 6LA.  VAT Registration No: 576 8795 61
Book a Property Valuation Update Cookies Preferences