Durham Road, Wolviston, TS22

Offers in excess of
£400,000

4 Bedroom Detached House for sale in Billingham

3 4 2
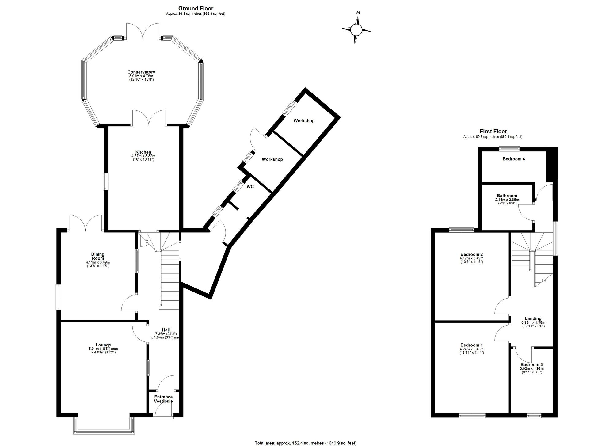
  • Four Bedroom Detached
  • Located In Wolviston Village
  • Garden To Rear
  • Garage
  • Gas Central Heating & UPVC Double Glazing
  • EPC Rating: F

Situated in the sought-after Wolviston Village, this impressive four bedroom detached home offers a blend of character, original features, and modern convenience. The property welcomes you with an inviting entrance vestibule and hallway, leading to a spacious lounge with an attractive bay window that fills the room with natural light. The separate dining room provides an ideal setting for family meals or entertaining guests, while the well-appointed kitchen offers ample storage and workspace. To the rear, the conservatory allows for pleasant views of the garden, creating a peaceful retreat within the home. Upstairs, the first floor landing gives access to four bedrooms and a family bathroom, ensuring comfortable living for families of all sizes. Throughout the property, gas central heating and UPVC double glazing contribute to a warm and energy-efficient environment. The inclusion of a garage adds further practicality, providing secure parking or additional storage. Combining period charm with modern updates, this stunning home is a rare opportunity to acquire a property of such quality and character in a desirable village location.

While we have made efforts to ensure the accuracy of the information provided in our sales particulars, please note that we have gathered this information from the seller. Should you require further details or clarification on any specific matter, we kindly request you to contact our office where we are ready to gather evidence or conduct further investigations on your behalf.

It is important to note that Northgate has not tested any of the services, appliances, or equipment within this property. Therefore, we strongly recommend that prospective buyers arrange for their independent surveys or service reports before finalising the purchase of the property.

Important Information

  • This is a Freehold property.
  • This Council Tax band for this property is: E
  • EPC Rating is F

Property Ref: 9b0e6c10-7c48-43e5-b451-e70fd45f0dec

Share:

Similar Properties

Dillside, Stockton-On-Tees, TS19

4 Bedroom Detached House | Offers in excess of £375,000

Bloomfield Drive, Wynyard, TS22

4 Bedroom Detached House | Offers in excess of £350,000

Whitehouse Road, Billingham, TS22

3 Bedroom Detached Bungalow | Offers in excess of £325,000

Northgate Estate Agents (Billingham)

8 Town Square, Billingham, County Durham, TS23 2LY

01642 813 222

How much is your home worth?

Use our short form to request a valuation of your property.

Request a Valuation

Mortgage Calculator

Amount Borrowed: £
Total Amount Repayable: £
Total Monthly Payment: £
©2026 The Guild of Property Professionals. All rights reserved. Terms and Conditions | Privacy Policy | Cookie Policy | Complaints Policy | Members Login
The Guild of Property Professionals Trading Address: 121 Park Lane, London W1K 7AG. GPEA Limited. Registered in England & Wales.  Company No: 02819824.  Registered Office Address: 2 St. Stephen's Court, St. Stephen's Road, Bournemouth, Dorset, England, BH2 6LA.  VAT Registration No: 576 8795 61
Book a Property Valuation Update Cookies Preferences