Thames Road, Billingham, TS22

Offers in excess of
£180,000
SSTC
This property listing is now SSTC

3 Bedroom Semi-Detached House for sale in Billingham

2 3 1
  • Three Bedroom Semi Detached
  • No Onward Chain
  • Driveway & Garage
  • Garden to Side & Rear
  • UPVC Double Glazing & Gas Central Heating
  • EPC: C

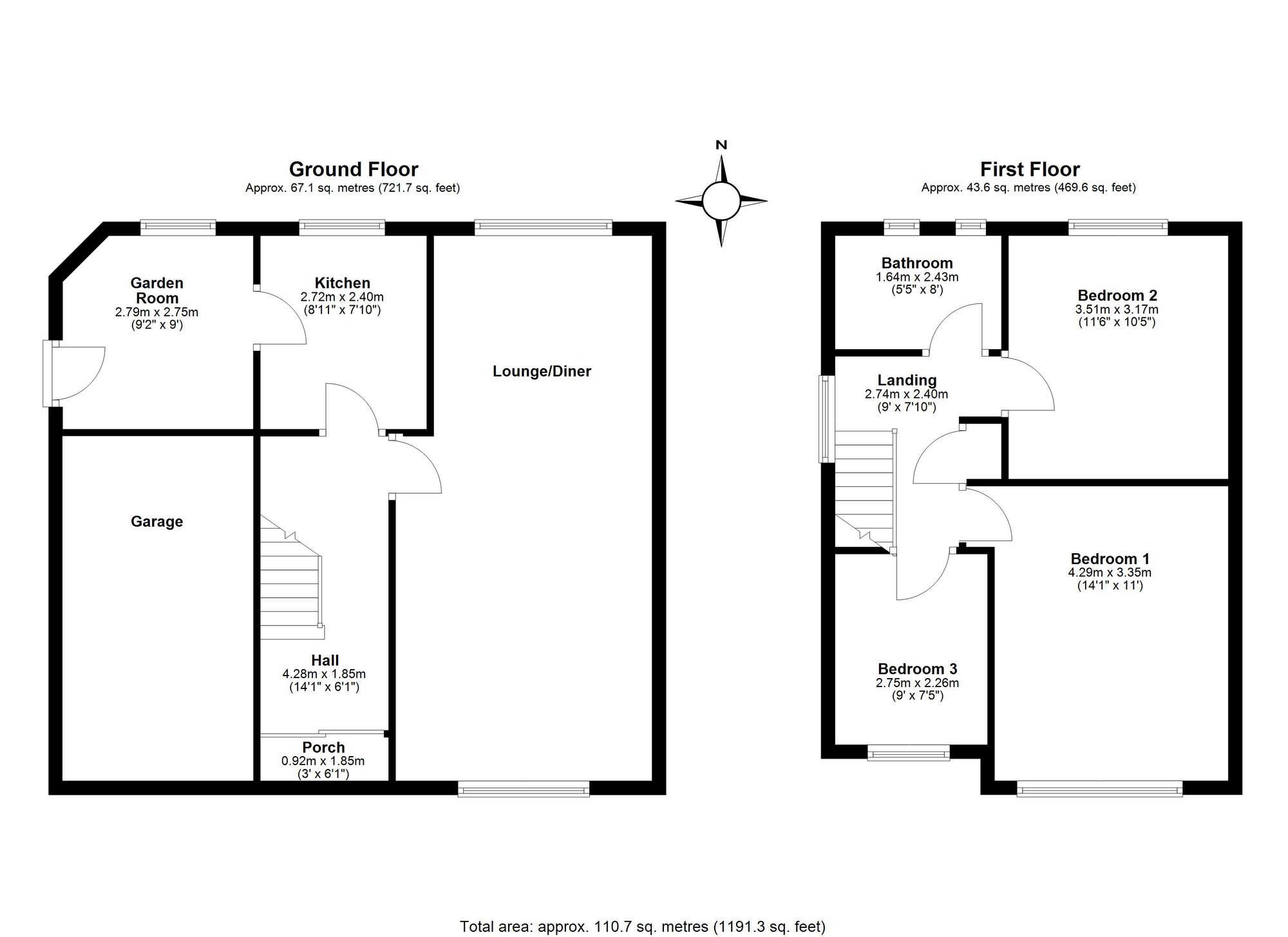
Presenting this three-bedroom semi-detached property on Wolviston Court, boasting a convenient location with proximity to primary and secondary schools, making it an ideal family home. With no onward chain, this property offers a seamless transition for prospective buyers. The house features a driveway and garage, providing ample parking space. Enjoy the comfort of a garden to the side and rear, perfect for outdoor activities and relaxation.

Enhanced with modern amenities including UPVC double glazing and gas central heating, this property ensures a cosy and energy-efficient living environment. The accommodation spans a porch, hallway, spacious lounge/diner, kitchen, inviting garden room, a staircase leading to the landing, a bathroom, and three generously sized bedrooms, offering ample living space for residents.

This property is a haven of comfort, convenience, and style, making it a must-see for those seeking a new place to call home.

While we have made efforts to ensure the accuracy of the information provided in our sales particulars, please note that we have gathered this information from the seller. Should you require further details or clarification on any specific matter, we kindly request you to contact our office where we are ready to gather evidence or conduct further investigations on your behalf.

It is important to note that Northgate has not tested any of the services, appliances, or equipment within this property. Therefore, we strongly recommend that prospective buyers arrange for their independent surveys or service reports before finalising the purchase of the property.

Energy Efficiency Current: 70.0
Energy Efficiency Potential: 77.0

Important Information

  • This is a Freehold property.
  • This Council Tax band for this property is: C

Property Ref: 8c308d67-644d-4143-b1c6-6291b1015e74

Share:

Similar Properties

Gleneagles Close, Billingham, TS22

3 Bedroom Semi-Detached House | Offers in excess of £180,000

Whitfield Road, Stockton-On-Tees, TS20

2 Bedroom End of Terrace House | Offers in excess of £180,000

Edgley Road, Stockton-On-Tees, TS18

2 Bedroom Semi-Detached Bungalow | Guide Price £180,000

Countisbury Road, Stockton-On-Tees, TS20

3 Bedroom Semi-Detached House | Offers Over £190,000

Atwick Close, Billingham, TS23

3 Bedroom Detached House | Guide Price £200,000

Stapleton Street, Stockton-On-Tees, TS20

3 Bedroom Detached Bungalow | Offers in excess of £220,000

Northgate Estate Agents (Billingham)

8 Town Square, Billingham, County Durham, TS23 2LY

01642 813 222

How much is your home worth?

Use our short form to request a valuation of your property.

Request a Valuation

Mortgage Calculator

Amount Borrowed: £
Total Amount Repayable: £
Total Monthly Payment: £
©2025 The Guild of Property Professionals. All rights reserved. Terms and Conditions | Privacy Policy | Cookie Policy | Complaints Policy | Members Login
The Guild of Property Professionals Trading Address: 121 Park Lane, London W1K 7AG. GPEA Limited. Registered in England & Wales.  Company No: 02819824.  Registered Office Address: 2 St. Stephen's Court, St. Stephen's Road, Bournemouth, Dorset, England, BH2 6LA.  VAT Registration No: 576 8795 61
Book a Property Valuation Update Cookies Preferences