Marsh House Avenue, Billingham, TS23

Offers in excess of
£230,000
SSTC
This property listing is now SSTC

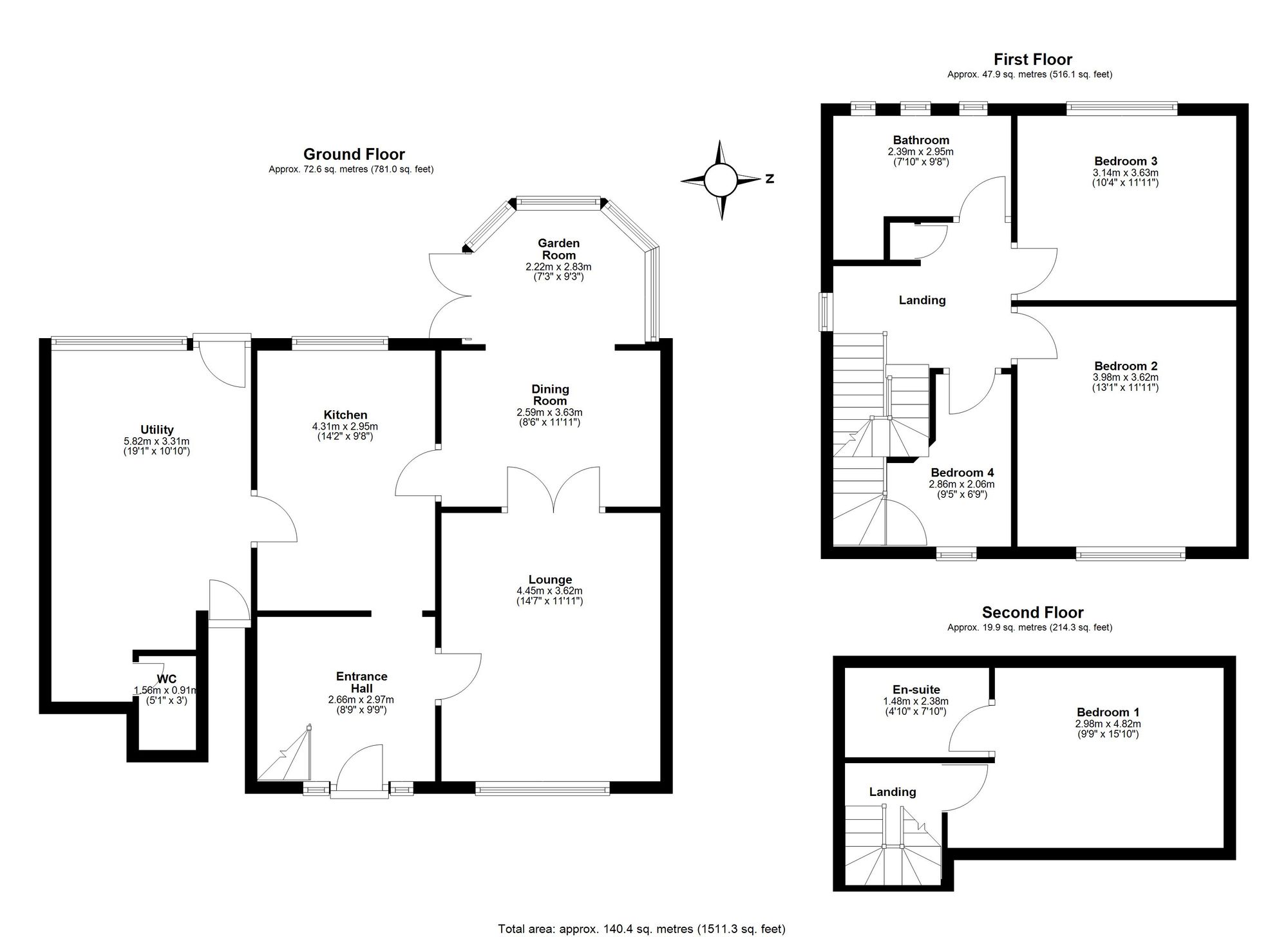
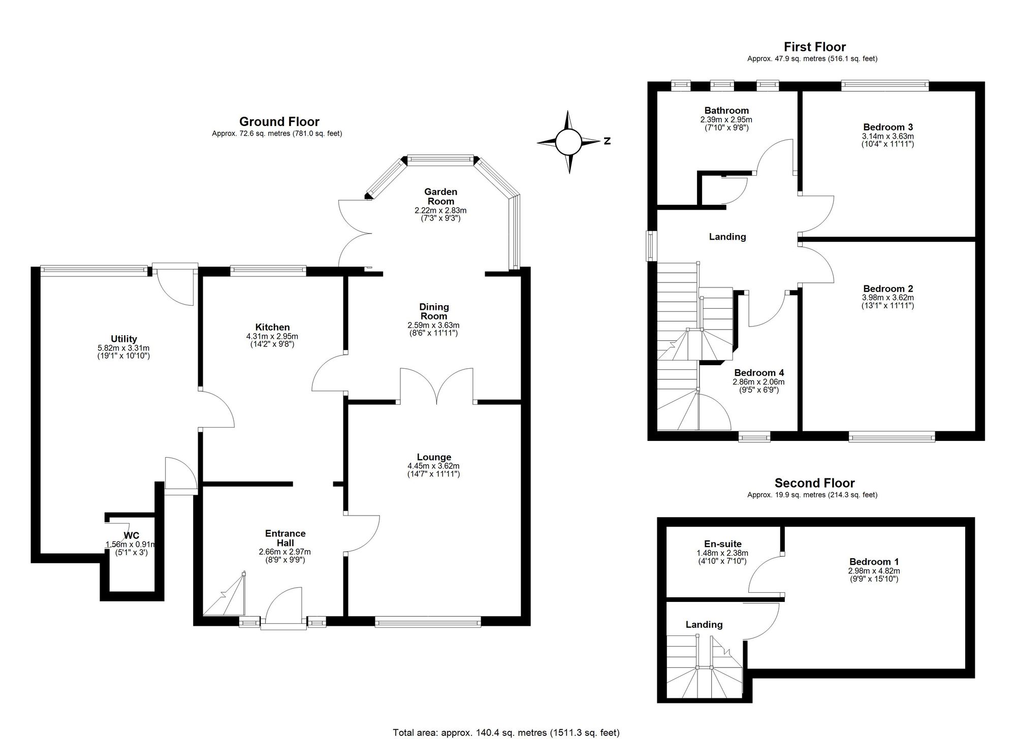
4 Bedroom Semi-Detached House for sale in Billingham

3 4 3
  • Spacious & Extended Four Bedroom Semi Detached
  • Ground Floor Wc, Family Bathroom & En-Suite
  • West Facing Rear Garden
  • EV Charging Point
  • Three Reception Rooms
  • EPC: C

This impressive four-bedroom, three-bathroom semi-detached house offers generous accommodation and a wealth of desirable features, making it the ideal family home. Upon arrival, the property welcomes you with ample off-road parking, a spacious gravel driveway, and a convenient garage. The well-maintained front garden with neatly arranged plants provides excellent kerb appeal. Inside, the entrance hallway impresses with a stylish staircase, decorative wall panelling, and abundant natural light, setting the tone for the contemporary elegance found throughout the home.

The heart of the house is its modern kitchen, complete with integrated appliances, sleek cabinetry, and breakfast bar seating - perfect for casual meals and entertaining. The open plan living and dining areas flow seamlessly, enhanced by wood flooring, stylish decor, and large windows that flood the space with natural light. A cosy wood burning stove set within a charming brick fireplace adds warmth and character to the inviting living room. Multiple reception rooms provide flexibility for family relaxation, entertaining, or a home office. The conservatory extends the living space, offering direct access to the beautifully landscaped rear garden and patio - ideal for outdoor dining and leisure. Upstairs, four well-proportioned bedrooms benefit from modern decor, and large Velux windows to the top floor. The luxurious bathrooms feature contemporary walk-in showers, marble effect tiles, heated towel rails, and decorative flooring. This property perfectly combines modern style with practical family living, making it an exceptional opportunity for buyers.

While we have made efforts to ensure the accuracy of the information provided in our sales particulars, please note that we have gathered this information from the seller. Should you require further details or clarification on any specific matter, we kindly request you to contact our office where we are ready to gather evidence or conduct further investigations on your behalf.

It is important to note that Northgate has not tested any of the services, appliances, or equipment within this property. Therefore, we strongly recommend that prospective buyers arrange for their independent surveys or service reports before finalising the purchase of the property.

Energy Efficiency Current: 69.0
Energy Efficiency Potential: 74.0

Important Information

  • This is a Freehold property.
  • This Council Tax band for this property is: B

Property Ref: 7e8b1bdb-4b61-4a80-bf0c-8a409e95dfd3

Share:

Similar Properties

Rossetti Way, Billingham, TS23

3 Bedroom Detached House | Guide Price £230,000

Bowes Road, Billingham, TS23

4 Bedroom Detached House | Offers Over £230,000

Hutton Avenue, Hartlepool, TS26

6 Bedroom Semi-Detached House | Offers in excess of £230,000

Haydon Green, Billingham, TS23

4 Bedroom Detached House | Guide Price £270,000

Chillingham Court, Billingham, TS23

5 Bedroom Detached House | Guide Price £290,000

Whitehouse Road, Billingham, TS22

4 Bedroom Detached House | Offers in excess of £300,000

Northgate Estate Agents (Billingham)

8 Town Square, Billingham, County Durham, TS23 2LY

01642 813 222

How much is your home worth?

Use our short form to request a valuation of your property.

Request a Valuation

Mortgage Calculator

Amount Borrowed: £
Total Amount Repayable: £
Total Monthly Payment: £
©2025 The Guild of Property Professionals. All rights reserved. Terms and Conditions | Privacy Policy | Cookie Policy | Complaints Policy | Members Login
The Guild of Property Professionals Trading Address: 121 Park Lane, London W1K 7AG. GPEA Limited. Registered in England & Wales.  Company No: 02819824.  Registered Office Address: 2 St. Stephen's Court, St. Stephen's Road, Bournemouth, Dorset, England, BH2 6LA.  VAT Registration No: 576 8795 61
Book a Property Valuation Update Cookies Preferences