Victoria Road, Harborne, Birmingham, B17

Guide Price
£350,000
SSTC
This property listing is now SSTC

2 Bedroom Terraced House for sale in Birmingham

2 2 1
  • Desirable Location
  • Two Bedrooms
  • Period Terraced Home
  • Close Proximity To The Harborne High Street
  • Private Garden
  • Set On A Quiet Road

We are pleased to offer this immaculately maintained and much improved freehold terraced residence which is situated in this sought after location within close proximity to Harborne High Street with its excellent shopping and restaurant facilities. In addition the Queen Elizabeth Medical Complex and Birmingham University are close at hand and Birmingham City Centre itself is readily accessible.
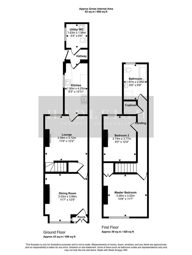
Fully meriting an internal inspection the property is set back from the road beyond on neat fore garden with conifer hedge and grey brick pathway and at ground floor level are two good reception rooms, kitchen, separate utility/WC, whilst at first floor level are two double bedrooms and spacious family bathroom. To further compliment the property there is a fully boarded loft and there is an easily maintained garden.
Benefiting from gas central heating and fully meriting an internal inspection, the accommodation which is in excellent decorative order throughout comprises in more details:

Front Reception Room - Having as its focal point a feature fireplace enclosing wrought iron log basket with a contemporary fireplace surround and hearth beneath, exposed tongue and groove floor boarding, double panelled radiator, meter cupboard, ceiling light point with original plaster rose, cornice, hardwood inner front door and sealed unit double glazed bay window to front with fitted shutters.

Rear Reception Room - Having feature open fireplace with painted mantle and hearth beneath, double panelled radiator, staircase rising off, several power points, ceiling light point with decorative rose, cornice, pine part stained glass door to kitchen and double glazed window to rear.

Kitchen - Having a range of free standing style units, matching wall unit, range gas cooker with stainless steel extractor hood, wall tiling, plumbing for dish washer, double bowl stainless steel sink unit, wall mounted gas boiler, low wattage halogen spot lighting, space for fridge/freezer, sealed unit double glazed window to side.

Utility Room/Wc - Having Belfast sink, base and wall units, plumbing for washing machine, space for tumble dryer, radiator, floor tiling, low level WC, Xpelair, window to side.

Landing - A tread staircase leads to the first floor landing with two ceiling light points, large walk in wardrobe with hanging rail. Doors to:

Master Bedroom - Having built in double door wardrobe, radiator, power points, ceiling light point, two sash style double glazed window to front.

Bedroom Two - Having radiator, power points, ceiling light point, original fireplace, double glazed window to rear. Further providing access to boarded out loft offering ample natural light.

Bathroom - Comprising suite of panelled bath with hand held microphone shower, separate corner shower cubicle with on line mixer and glazed door, vanity wash hand basin with circular sink and mixer tap, space saver chrome towel rail, low wattage halogen ceiling light points, coordinating floor and wall tiling, low level WC, double glazed window to rear.

Garden - The property is set back beyond a neat fore garden with conifer hedge and grey brick pathway. The rear gardens comprise timber decked patio, lawn established borders and rear gate.

General Information - We have been advised the following information, however we advise for you to confirm this with your legal representative as Hadleigh Estate Agents cannot be held accountable.
EPC - D
Council Tax Band - C
POSSESSION: Vacant possession will be given upon completion of the sale.
SERVICES: Mains electricity, gas, water and drainage are available
LOCAL AUTHORITY : Birmingham City Council - 0121 303 9944
WATER AUTHORITY: Severn Trent Water - 0345 500500
TENURE: The agents are advised that the property is Freehold.
FIXTURES and FITTINGS: All items not mentioned in these particulars are excluded from the sale, some items are available by separate negotiation.
VIEWING: Strictly by appointment with the selling agents, Hadleigh on 0121 427 1213.

Property Ref: 60184_34281507

Share:

Similar Properties

Beaks Farm Gardens, Edgbaston, Birmingham, B16

3 Bedroom House | Guide Price £350,000

Hadleigh Estate Agents are delighted to offer this three bedroom detached property for sale, offered with no upward chai...

South Street, Harborne, Birmingham, B17

2 Bedroom Terraced House | Guide Price £349,999

Hadleigh Estate Agents are delighted to offer this fantastic two bedroom terraced house for sale. Located on the ever po...

Muscott Grove, Harborne, Birmingham, B17

3 Bedroom Semi-Detached House | Guide Price £349,995

Hadleigh Estate Agents are delighted to offer this three bedroom semi detached house for sale. Located on Muscott Grove,...

The Place, Abbey Road, Harborne, Birmingham, B17

2 Bedroom Apartment | Offers in region of £362,500

Hadleigh Estate Agents are delighted to offer this two bedroom third floor apartment for sale. Offered with no upward ch...

West Pathway, Harborne, Birmingham, B17

2 Bedroom Terraced House | £365,000

Hadleigh Estate Agents are delighted to offer this fantastic two bedroom terraced home for sale. Located on West Pathway...

Earls Court Road, Harborne, Birmingham, B17

3 Bedroom Terraced House | Guide Price £365,000

Hadleigh Estate Agents are delighted to offer this refurbished three bedroom terraced property for sale. Offered with no...

Hadleigh Estate Agents (Harborne)

High Street, Harborne, Birmingham, B17 9QG

01214 271 213

How much is your home worth?

Use our short form to request a valuation of your property.

Request a Valuation

Mortgage Calculator

Amount Borrowed: £
Total Amount Repayable: £
Total Monthly Payment: £
©2026 The Guild of Property Professionals. All rights reserved. Terms and Conditions | Privacy Policy | Cookie Policy | Complaints Policy | Members Login
The Guild of Property Professionals Trading Address: 121 Park Lane, London W1K 7AG. GPEA Limited. Registered in England & Wales.  Company No: 02819824.  Registered Office Address: 2 St. Stephen's Court, St. Stephen's Road, Bournemouth, Dorset, England, BH2 6LA.  VAT Registration No: 576 8795 61
Book a Property Valuation Update Cookies Preferences