Metchley Lane, Harborne, Birmingham, B17

Guide Price
£343,000

2 Bedroom End of Terrace House for sale in Birmingham

1 2 1
  • DRIVEWAY PARKING
  • CLOSE PROXIMITY TO Q.E
  • UNIVERSITY STATION NEARBY
  • EXCELLENT TRANSPORT LINKS
  • THREE STOREY
  • MODERN KITCHEN AND BATHROOM

Welcome to Metchley Lane, we are appreciative of you viewing our thoroughly refurbished home for sale.

Hadleigh Estate Agents are delighted to offer a unique and superbly presented two bedroom period property. Located on the doorstep of Queen Elizabeth Hospital, the property has undergone an immaculate refurbishment throughout by the current owner, further benefitting from a driveway for two cars and being sold with no upward chain.

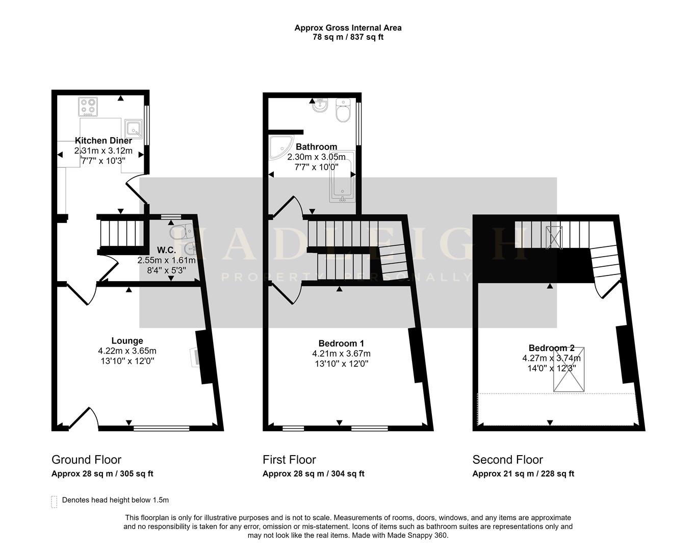
In brief the property offers a generous driveway for two cars and fore garden, welcoming lounge with feature fireplace, inner hallway with Italian porcelain tiles and spacious guest WC. A fantastic breakfast kitchen with oak wall and base units including breakfast bar. Natural light floods the landing leading to a spacious double bedroom, modern bathroom suite with walk in shower and freestanding bath. A further staircase leads up to an additional double bedroom, complete with Velux skylights. The property boasts natural light throughout and is ready to move into. To the rear of the property is a private courtyard with beneficial side access and requiring low maintenance.

Location - This sought after Harborne location is on the doorstep of the Queen Elizabeth Medical Complex, The University of Birmingham and also the Barber Institute. Harborne High Street is within easy reach offering an array of shops, bars and restaurants, along with the redeveloped Selly Oak retail park. There is also excellent links to Birmingham City Centre with the University train station just a short walk away offering frequent connections into Birmingham, Worcester and South Wales.

Lounge - Hardwood oak entrance door, large window to the front elevation, bespoke reading nook and feature fireplace with open fire. Benefitting from insulated flooring.

Hallway - Italian porcelain tiling throughout, leading into the kitchen, with stairs to the first floor accommodation and a cleverly designed guest cloakroom.

Guest Wc - Cleverly designed cloakroom, offering plumbing connection for washing machine. Low level flush WC, wash hand basin and obscure glazed window to rear elevation.

Kitchen Diner - Oak wall and base level units with complimentary work surfaces, ceramic butler sink and tiled splash-back, with an integrated oven, hob and extractor fan, integrated 'Neff' fridge freezer and dishwasher, with a breakfast bar area and access out to the rear.

Bedroom One - Dual aspect double glazing allowing for plenty of light to come through, along with two gas central heated radiators and ceiling light point.

Bathroom - Luxurious bathroom suite to the rear with the matching Italian porcelain tiling to the downstairs. Partially tiled walls, low level flush WC, wall mounted hand basin, freestanding bath with a separate walk-in shower cubicle, and storage that houses the central heating boiler.

Bedroom Two - Leading up from the bespoke staircase with additional skylight and signature lighting is a double bedroom with Velux skylight.

Garden - Low maintenance private courtyard, with decking and artificial lawn. Also offering side access.

General Information - We have been advised the following information, however we advise for you to confirm this with your legal representative as Hadleigh Estate Agents cannot be held accountable.
Tenure - Freehold
EPC - D
Council Tax Band - C


Thank you for reading this far, you are more than welcome to view the property at anytime to suit yourselves. We are confident you will not be disappointed and most pleasantly surprised. Open to negotiation!

Property Ref: 60184_33468392

Share:

Similar Properties

Hartledon Road, Harborne, Birmingham, B17

2 Bedroom Terraced House | Guide Price £340,000

Hadleigh Estate Agents are delighted to offer this fantastic two bedroom terraced property for sale, located on the ever...

High Street, Harborne, Birmingham, B17

2 Bedroom Terraced House | Guide Price £335,000

Hadleigh Estate Agents are delighted to offer this fantastic two bedroom terraced property for sale. Located on Harborne...

Martineau Drive, Harborne, Birmingham, B32

2 Bedroom Mews House | Offers Over £335,000

Hadleigh Estate Agents are delighted to offer this fantastic two bedroom property for sale. Benefitting from having no u...

Grosvenor Road, Harborne, Birmingham, B17

3 Bedroom Terraced House | Guide Price £349,950

Hadleigh Estate Agents are delighted to offer this fantastic refurbished three bedroom terraced property for sale. Offer...

Muscott Grove, Harborne, Birmingham, B17

3 Bedroom Semi-Detached House | Guide Price £349,995

Hadleigh Estate Agents are delighted to offer this three bedroom semi detached house for sale. Located on Muscott Grove,...

South Street, Harborne, Birmingham, B17

2 Bedroom Terraced House | Guide Price £349,999

Hadleigh Estate Agents are delighted to offer this fantastic two bedroom terraced house for sale. Located on the ever po...

Hadleigh Estate Agents (Harborne)

High Street, Harborne, Birmingham, B17 9QG

01214 271 213

How much is your home worth?

Use our short form to request a valuation of your property.

Request a Valuation

Mortgage Calculator

Amount Borrowed: £
Total Amount Repayable: £
Total Monthly Payment: £
©2026 The Guild of Property Professionals. All rights reserved. Terms and Conditions | Privacy Policy | Cookie Policy | Complaints Policy | Members Login
The Guild of Property Professionals Trading Address: 121 Park Lane, London W1K 7AG. GPEA Limited. Registered in England & Wales.  Company No: 02819824.  Registered Office Address: 2 St. Stephen's Court, St. Stephen's Road, Bournemouth, Dorset, England, BH2 6LA.  VAT Registration No: 576 8795 61
Book a Property Valuation Update Cookies Preferences