Station Road, Harborne, Birmingham, B17

Guide Price
£270,000

3 Bedroom Flat for sale in Birmingham

1 3 2

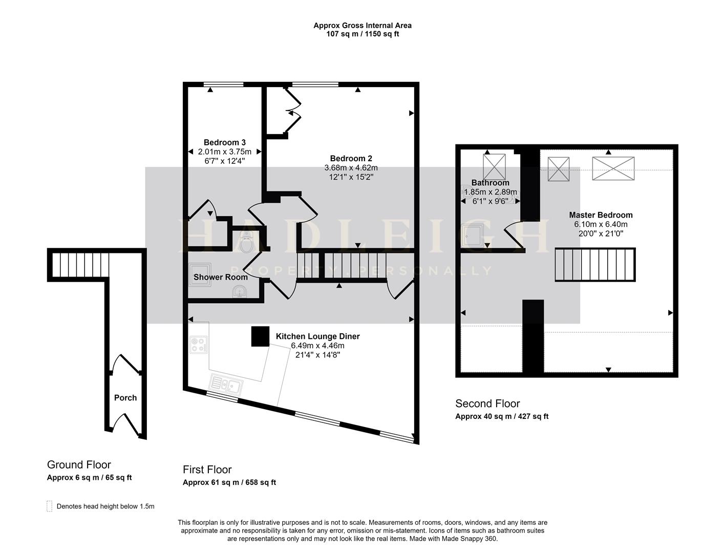
Hadleigh Estate Agents are delighted to offer a three bedroom first floor duplex conversion on Station Road, Harborne.

The property briefly comprises of: Spacious hallway, to the first floor we have a large open plan living room and kitchen with appliances, two double bedrooms and family shower room, to the top floor there is a wonderfully spacious third bedroom with en-suite.

Location - Station Road is conveniently located for all Harborne High Street has to offer. Being within walking distance to an array of bars, restaurants and shops, including Marks and Spencers and Waitrose. Excellent transport links are on offer into Birmingham City Centre, nearby Queen Elizabeth Hospital and University of Birmingham.

Entrance Hall - Solid panelled front door, door to inner hallway, radiator, stairs to first floor.

Lounge - Windows to front elevation, radiator, open plan to kitchen, door to stairs to second floor.

Kitchen - Window to front elevation, range of base units surmounted by a laminate work surface with cupboards over, plumbing and space for a washing machine, integrated oven, hob and extractor hood.

Bedroom Two - Double glazed window to rear elevation, fitted wardrobes, radiator.

Bedroom Three - Double glazed window to rear elevation, fitted wardrobes, radiator.

Shower Room - Double shower cubicle, wash hand basin over vanity cupboard, low flush WC, chrome effect heated towel rail.

Master Bedroom (2nd Floor) - Skylight windows to rear elevation, two radiators, dressing area with hanging rails, door to en-suite.

En-Suite - Skylight window to rear elevation, wash hand basin over vanity cupboard, shower cubicle, low flush WC, chrome effect heated towel rail.

Property Ref: 60184_34464660

Share:

Similar Properties

Viceroy Close, Edgbaston, Birmingham

3 Bedroom Apartment | Guide Price £270,000

A charming 2/3 bedroom ground floor apartment situated in this prestigious development and enjoying superb views over th...

Ravenhurst Road, Harborne, Birmingham, B17

3 Bedroom Maisonette | Guide Price £270,000

Hadleigh Estate Agents are delighted to offer this unique three bedroom duplex for sale. Being a Grade 2 listed maisonet...

Augustus Road, Edgbaston, Birmingham, B15

2 Bedroom Apartment | Guide Price £269,950

Hadleigh Estate Agents are delighted to offer this fantastic two bedroom apartment for sale. Offered with no upward chai...

Viceroy Close, Edgbaston, Birmingham, B5

4 Bedroom Apartment | Guide Price £280,000

Hadleigh Estate Agents are delighted to offer this substantial mansion style apartment for sale, offered with no upward...

Hartford Close, Harborne, Birmingham, B17

3 Bedroom Terraced House | Guide Price £285,000

Hadleigh Estate Agents are happy to offer this three bedroom family home situated in Hartford close, Harborne. This prop...

Kelfield Avenue, Harborne, Birmingham, B17

2 Bedroom Semi-Detached House | Guide Price £285,000

Hadleigh Estate Agents are delighted to offer this beautifully presented two bedroom semi detached house for sale. Conve...

Hadleigh Estate Agents (Harborne)

High Street, Harborne, Birmingham, B17 9QG

01214 271 213

How much is your home worth?

Use our short form to request a valuation of your property.

Request a Valuation

Mortgage Calculator

Amount Borrowed: £
Total Amount Repayable: £
Total Monthly Payment: £
©2026 The Guild of Property Professionals. All rights reserved. Terms and Conditions | Privacy Policy | Cookie Policy | Complaints Policy | Members Login
The Guild of Property Professionals Trading Address: 121 Park Lane, London W1K 7AG. GPEA Limited. Registered in England & Wales.  Company No: 02819824.  Registered Office Address: 2 St. Stephen's Court, St. Stephen's Road, Bournemouth, Dorset, England, BH2 6LA.  VAT Registration No: 576 8795 61
Book a Property Valuation Update Cookies Preferences