Regent Road, Harborne, Birmingham, B17

Guide Price
£560,000
SSTC
This property listing is now SSTC

4 Bedroom Terraced House for sale in Birmingham

3 4 1

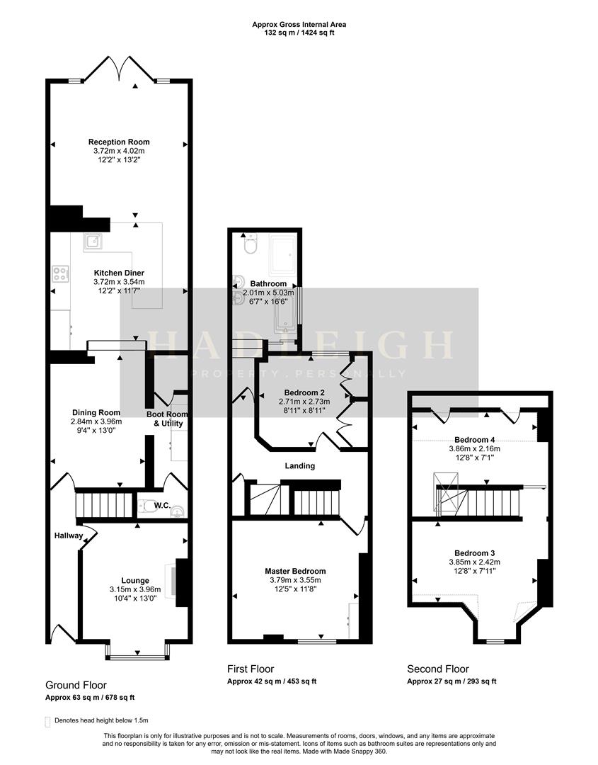
Hadleigh Estate Agents are delighted to offer this fantastic four bedroom terraced home for sale. The property had been fully renovated and extended by the current owners in 2020. Throughout, the property has been carefully designed to a high specification.

The property boasts; entrance hallway leading to the lounge offering original features, modern and contemporary dining room. Further benefitting from boot room and utility area, along with guest WC.

To the rear, the property offers a modern kitchen, including breakfast bar and reception room. High end Neff appliances, underfloor wet heating and skylights along with designer lighting throughout the property. A new boiler was installed in 2020 along with landscaped garden accessed via the bi-fold doors. The first floor offers two double bedrooms, and modern Lusso bathroom suite, with stairs to the second floor offering an additional two bedrooms.

Location - Regent Road is conveniently located for easy access to Harborne High Street, offering an array of bars, award winning restaurants including Harborne Kitchen, Tropea and popular supermarkets. Excellent transport links are on offer into Birmingham City Centre, nearby Queen Elizabeth Hospital, University of Birmingham including University train station. Nearby leisure facilities include Harborne Leisure Centre, Harborne Golf Club and the world renowned Edgbaston Priory and Tennis Club.

Hallway - Engineered Oak flooring, designer ceiling light point, central heating radiator and stairs to first floor accommodation.

Lounge - Restored, original feature fireplace, cornices and ceiling rose along with ceiling light point. Bespoke fitted shutters, carpeted flooring, central heating radiator and bay window seating.

Dining Room - Spacious dining room, benefitting from Engineered Oak Flooring running throughout, central heating radiator, designer ceiling light point and open access into the kitchen and boot room.

Boot Room & Utility - Bespoke fitted built-in Utility and Boot Room, made from Oak. Including built-in washing machine and tumble dryer. Engineered Oak flooring, central heating radiator and ceiling spotlights.

Guest Wc - Low level flush WC, hand wash basin, wall lighting and ceiling spotlight. Partially tiled walls, engineered Oak flooring and extractor fan.

Kitchen - Bespoke fitted kitchen with Quartz worktops, Wet underfloor heating, boiling water tap and high end Neff kitchen appliances, including Fridge Freezer, Oven, Combi Microwave Oven, Induction Hob and Dishwasher. Designer ceiling light and spotlights, engineered Oak flooring and skylights.

Reception Room - Extended in 2020, boasting skylights running the course of the extension, engineered Oak flooring, underfloor Wet heating, ceiling spotlights and bi-fold doors.

Landing - Carpeted flooring, ceiling light points and internal storage cupboard. Offering access to second floor accommodation.

Master Bedroom - Large master bedroom boasting bespoke fitted shutters and Oak built fitted wardrobes. Carpeted flooring, ceiling rose and light point, window to front elevation and central heating radiator.

Bedroom Two - Double bedroom offering bespoke fitted Oak wardrobes, window to rear elevation, ceiling light point, central heating radiator and carpeted flooring.

Bathroom - Lusso Stone bathroom suite including solid stone freestanding bath, 'his and hers' wash basins. Walk in shower, low level flush WC, central heating radiator, wall light and spotlights. Window to side elevation and siding door cupboard.

Bedroom Three - Spacious double bedroom offering window to front elevation, central heating radiator, internal glazed windows and ceiling light point.

Bedroom Four - Fourth bedroom offering original features, internal glazed windows, carpeted flooring and eaves storage.

Garden - Three tiered garden, with paved patio area, leading to gravelled dining area and lower lawn. Fenced boundaries, outside security light and high spec, police approved metal shed.

Property Ref: 60184_33984803

Share:

Similar Properties

Ravenhurst Road, Harborne, Birmingham, B17

4 Bedroom House | Guide Price £550,000

Hadleigh Estate Agents are delighted to offer this fantastic four bedroom end terraced property for sale located on the...

Moor Pool Avenue, Harborne, Birmingham, B17

3 Bedroom End of Terrace House | £540,000

Hadleigh Estate Agents are delighted to offer this beautiful family home for sale, situated on Moor Pool Avenue, set wit...

Lelant Grove, Harborne, Birmingham, B17

4 Bedroom Semi-Detached House | Guide Price £525,000

Hadleigh Estate Agents are delighted to offer this substantial four bedroom semi detached property for sale. Boasting am...

Lonsdale Road, Harborne, Birmingham, B17

4 Bedroom Terraced House | Offers in region of £565,000

Hadleigh Estate Agents are delighted to offer this CHAIN FREE four bedroom period property, located on the ever popular...

Court Oak Road, Birmingham, B32

6 Bedroom Semi-Detached House | £570,000

Hadleigh Estate Agents are delighted to offer this substantial property for sale, offered with no upward chain. Located...

Woodland Road, Northfield, Birmingham

5 Bedroom Semi-Detached House | Guide Price £575,000

Elegant five bedroom period property located on Woodland Road, Northfield.Set in a prime and convenient location, this b...

Hadleigh Estate Agents (Harborne)

High Street, Harborne, Birmingham, B17 9QG

01214 271 213

How much is your home worth?

Use our short form to request a valuation of your property.

Request a Valuation

Mortgage Calculator

Amount Borrowed: £
Total Amount Repayable: £
Total Monthly Payment: £
©2026 The Guild of Property Professionals. All rights reserved. Terms and Conditions | Privacy Policy | Cookie Policy | Complaints Policy | Members Login
The Guild of Property Professionals Trading Address: 121 Park Lane, London W1K 7AG. GPEA Limited. Registered in England & Wales.  Company No: 02819824.  Registered Office Address: 2 St. Stephen's Court, St. Stephen's Road, Bournemouth, Dorset, England, BH2 6LA.  VAT Registration No: 576 8795 61
Book a Property Valuation Update Cookies Preferences