Canfield Road, Takeley, Bishop's Stortford

Guide Price
£895,000
SSTC
This property listing is now SSTC

4 Bedroom Detached House for sale in Bishop's Stortford

3 4 2
  • Four Bedrooms
  • Detached Country Home
  • Grade II Listed
  • Approximately Third Of An Acre
  • In/Out Gated Driveway
  • Three Receptions
  • Kitchen/Dining Room
  • Utility Room & Cloakroom
  • Family Bathroom & Shower Room
  • Countryside Views

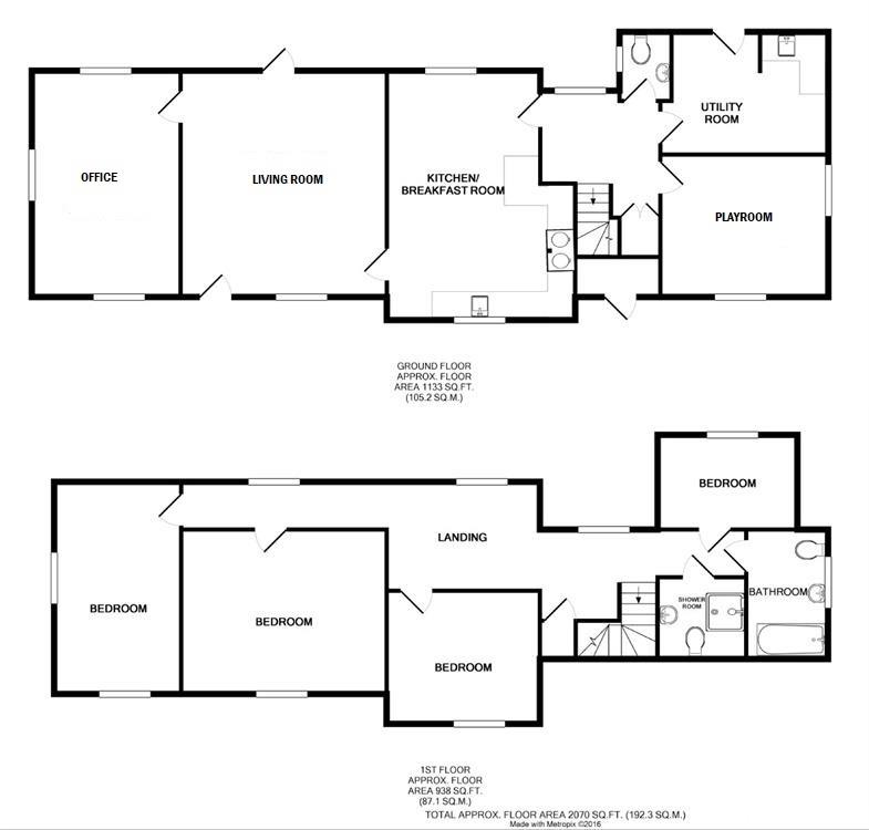
Set within approximately a third of an acre in the quiet hamlet of Hope End is this stunning four bedroom detached country home with views over open countryside. The ground floor accommodation comprises:- three reception rooms, kitchen/dining room, utility room, cloakroom and hallway. On the first floor are four bedrooms , a family bathroom and shower room. Externally the property benefits from beautifully landscaped gardens, outbuilding and a in/out gated driveway providing parking for several vehicles.

Living Room - 5.08m x 4.80m (16'8" x 15'9") - Window to front aspect, feature fireplace with inset wood burning stove, Parquet flooring, Victorian style radiator, exposed timbers, T.V points, power points,, single door to rear aspect, single door to front aspect, door to.

Office - 4.88m x 2.90m (16' x 9'6") - Windows to multiple aspects, feature brick fireplace, Victorian style radiator, exposed timbers, Parquet flooring, power points,

Kitchen/Dining Room - 5.74m x 3.45m (18'10" x 11'4") - Windows to multiple aspects, bespoke kitchen comprising of base and eye level units with solid Oak working surfaces over, inset Butler sink with mixer taps, AGA, integrated dishwasher, reclaimed brick flooring, feature fireplace, inset spotlights, exposed timbers, power points, built-in bench seat with dresser, door to.

Hallway - 2.95m x 2.06m (9'8" x 6'9") - Window to rear aspect, Victorian style radiator, reclaimed brick flooring, inset spotlights, stairs rising to the first floor landing, under stairs storage cupboard, door leading to the rear garden, doors to.

Playroom - 3.91m x 3.33m (12'10" x 10'11") - Windows to multiple aspects, part wood panelled walls, fitted books shelf with base level cupboards, inset spotlights, radiator, laminate flooring, power points.

Utility Room - 3.33m x 2.77m (10'11" x 9'1") - Window to side aspect, base and eye level units with solid Oak working surfaces over, inset Butler sink with drainer unit, space for washing machine, space for tumble dryer, fitted Bench, reclaimed brick flooring, inset spotlights, power points, Stable door leading to the rear garden.

Cloakroom - Window to side aspect, Victorian style W.C, wash hand basin, radiator, reclaimed brick flooring.

First Floor Landing - Three windows to rear aspect, Victorian style radiator, semi-vaulted ceiling with exposed timbers, power points, doors to.

Principal Bedroom - 4.24m x 3.91m (13'11" x 12'10") - Window to front aspect, vaulted ceiling with exposed timbers, a range of built-in wardrobes, Victorian style radiator, power points.

Bedroom Two - 4.90m x 2.87m (16'1" x 9'5") - Windows to multiple aspects, vaulted ceiling with exposed timbers, a range of fitted wardrobes, Victorian style radiator, power points.

Bedroom Three - 3.56m x 2.92m (11'8" x 9'7") - Window to front aspect, vaulted ceiling with exposed timbers, a range of fitted wardrobes & drawers, radiator, power points.

Bedroom Four - 3.20m x 2.16m (10'6" x 7'1") - Window to rear aspect, exposed timbers, radiator, power points.

Family Bathroom - Window to side aspect, freestanding bath with floor mounted mixer taps & shower attachment, wash hand basin with vanity unit below, W.C, heated towel rail, part wood panelled walls, tiled flooring, inset spotlights.

Shower Room - Enclosed shower with glass door, wash hand basin, W.C, heated towel rail, inset spotlights, extractor fan.

Landscaped Gardens - To the rear of the property is a two tier patio area leading to the remainder lawn with a variety of mature shrubs and trees. The garden has been beautifully landscaped with extensive flower beds and various pathways. The garden further benefits from a Pergola seating area, timber shed, an additional patio area to the foot of the garden, external lighting, power points and an outside water tap.

Outbuilding - The outbuilding is currently used as a workshop but could be used as an office/studio with separate internet connection and power connected.

In/Out Gated Driveway - To the front of the property is a recently re-laid in/out driveway providing parking for several vehicles with a variety of mature shrub borders and external lighting. The driveway is accessed via two five bar timber gates and benefits from an electric car charging point. An additional water tap is situated to the front of the property.

Property Ref: 34448192

Share:

Similar Properties

Braintree Road, Dunmow

4 Bedroom Detached House | Guide Price £850,000

***NO ONWARD CHAIN***Located on a highly regarded residential road in the centre of the thriving market town of Great Du...

Chapel End, Broxted, Dunmow, Essex

Land | Guide Price £850,000

***DEVELOPMENT OPPORTUNITY* ***Daniel Brewer are pleased to market this substantial building plot located in a superb vi...

Maynards Lane, Little Sampford, Saffron Walden

4 Bedroom Detached House | £850,000

Set within approximately one third of an acre, tucked away off a quiet country lane and surrounded by open countryside,...

Radwinter, Saffron Walden

6 Bedroom Detached House | Offers Over £900,000

Nestled down a private lane and surrounded by countryside and open farmland, this fantastic Grade II Listed farmhouse pr...

Copthall Lane, Thaxted, Dunmow, Essex

5 Bedroom Detached House | Offers Over £900,000

Tucked away on a quiet lane in the charming village of Thaxted, Dunmow, this exquisite detached five-bedroom home offers...

Stebbing Road, Felsted, Dunmow

4 Bedroom Link Detached House | Offers Over £900,000

***No Onward Chain*** Set within approximately 1.75 acres on the outskirts of the highly desirable village of Felsted, a...

Daniel Brewer Estate Agents (Great Dunmow)

51 High Street, Great Dunmow, Essex, CM6 1AE

01371 856 585

How much is your home worth?

Use our short form to request a valuation of your property.

Request a Valuation

Mortgage Calculator

Amount Borrowed: £
Total Amount Repayable: £
Total Monthly Payment: £
©2026 The Guild of Property Professionals. All rights reserved. Terms and Conditions | Privacy Policy | Cookie Policy | Complaints Policy | Members Login
The Guild of Property Professionals Trading Address: 121 Park Lane, London W1K 7AG. GPEA Limited. Registered in England & Wales.  Company No: 02819824.  Registered Office Address: 2 St. Stephen's Court, St. Stephen's Road, Bournemouth, Dorset, England, BH2 6LA.  VAT Registration No: 576 8795 61
Book a Property Valuation Update Cookies Preferences