Central Drive, Blackpool, FY1

Offers Over
£140,000

4 Bedroom Block of Apartments for sale in Blackpool

3 4 3
  • Three Self Contained Flats Within Close Proximity To Blackpool Town Centre And Transportation Links
  • Selling With Tenants In Situ
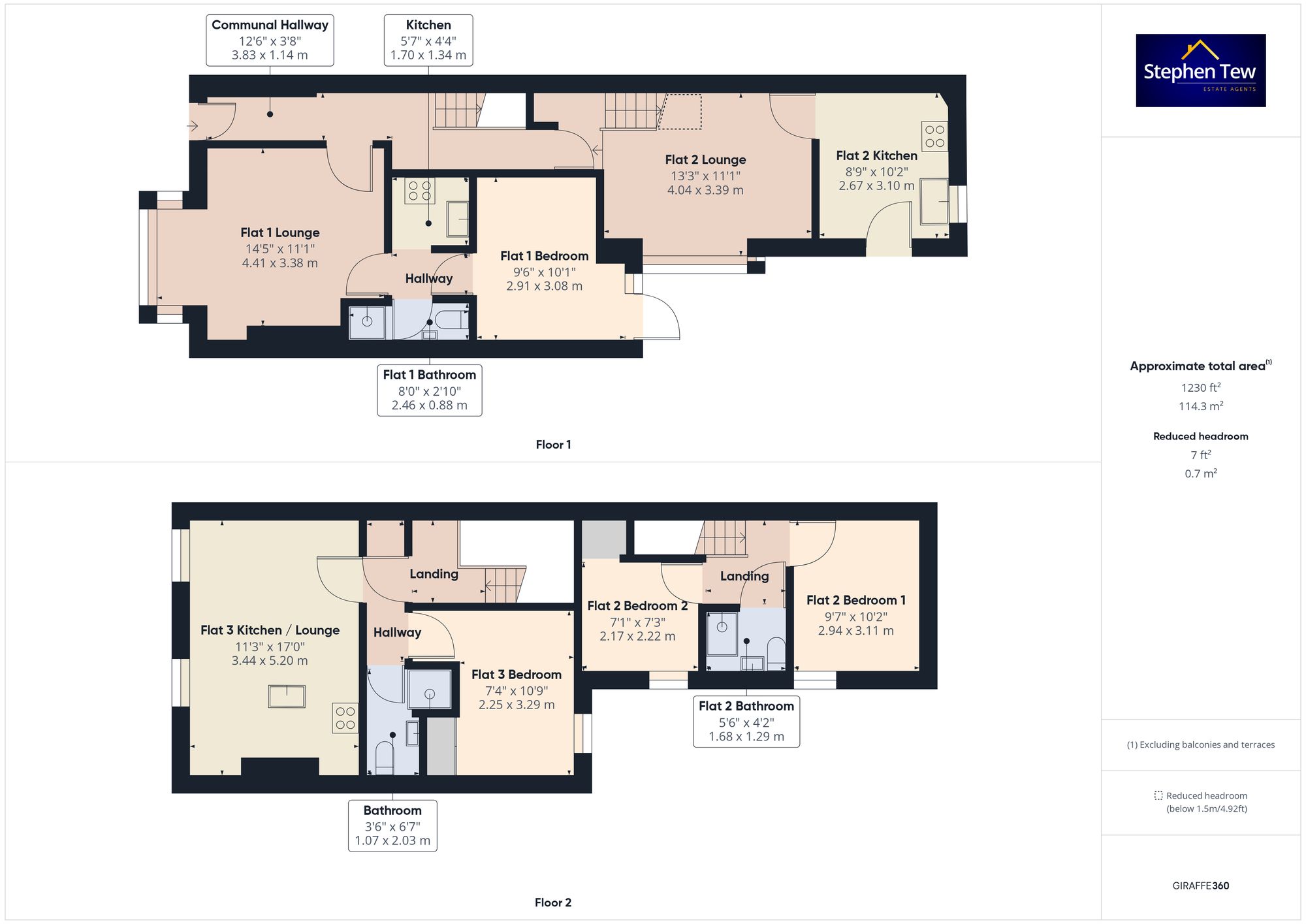
  • Ground Floor Communal Hallway, Flat 1 Comprises 1 Bedroom, Three Piece Suite Bathroom And Lounge, Flat 2 Comprises Lounge, Kitchen, Two Bedrooms, Bathroom
  • Flat Three Comprises Open Plan Lounge/ Kitchen, Bathroom And Bedroom
  • Flat 1 And Flat 2 Have Shared Access To The Enclosed Rear Yard

Introducing this remarkable property comprising three self-contained flats, strategically positioned in close proximity to Blackpool Town Centre and excellent transportation links. A lucrative investment opportunity awaits as this property is being sold with tenants already in situ.

Upon entering the property, a well-maintained communal hallway on the ground floor sets the tone for what each flat has to offer. Flat 1 greets you with a comfortable layout featuring one bedroom, a stylish three-piece suite bathroom, Kitchen and a cosy lounge area. Continuing the tour, Flat 2 boasts a spacious lounge, a fully equipped kitchen, two generous bedrooms, and an additional bathroom for added convenience.

In contrast, Flat 3 presents a modern open-plan design where the sleek lounge seamlessly merges with the well-appointed kitchen, creating a harmonious living space. Completing this flat is a chic bathroom and a tranquil bedroom, ideal for relaxation after a long day amidst the hustle and bustle of urban living.

Noteworthy features of this property include shared access to the enclosed rear yard, which is accessible for Flat 1 and Flat 2. This outdoor space provides a private retreat for residents to enjoy a breath of fresh air or lounge in the sun at their leisure.

Practicality is at the forefront with separate council tax, gas, and electric metres allocated to each flat, ensuring ease of management and transparency for both landlords and tenants alike. This tailored approach to utilities allows for efficient monitoring and individual responsibility, streamlining administrative processes for all parties involved.

Arrange a viewing today to experience the potential and charm that this property has to offer. Contact us to secure your appointment and take the first step towards owning this exceptional property in the heart of Blackpool.

Energy Efficiency Current: 80.0
Energy Efficiency Potential: 82.0

Important Information

  • This is a Freehold property.
  • This Council Tax band for this property is: A

Property Ref: 3b8bd216-ea2e-4b77-b1d6-fe82e4df0030

Share:

Similar Properties

Hebden Avenue, Blackpool, FY1

3 Bedroom End of Terrace House | Offers Over £140,000

Recently renovated end of terrace house near shops, schools, and transport links. Modernised with new kitchen, bathroom,...

Regent Road, Blackpool, FY1

4 Bedroom Terraced House | Offers Over £140,000

Spacious 4-bed mid-terraced family home with 2 receptions, ground floor WC, open plan kitchen/diner. Prime location near...

The Crescent, Blackpool, FY4

3 Bedroom End of Terrace House | Offers Over £140,000

Charming 3-bed end of terrace house with modern comforts in a convenient location. Ideal for families, potential 4th bed...

Sackville Avenue, Blackpool, FY4

3 Bedroom Semi-Detached House | Offers Over £145,000

Charming 3-bed semi-detached located in sought-after area. 2 lounges, spacious kitchen, dining room, 3 beds, 4-piece fam...

James Avenue, Blackpool, FY4

2 Bedroom Detached Bungalow | Offers Over £145,000

Detached True Bungalow with west facing garden. Lounge, Fitted Kitchen, 2 Bedrooms & Modern Bathroom/Wet Room. Gas Centr...

Kingsley Road, Blackpool, FY3

3 Bedroom Semi-Detached House | Offers Over £145,000

Stephen Tew Estate Agents (Blackpool)

132 Highfield Road, Blackpool, Lancashire, FY4 2HH

01253 401111

How much is your home worth?

Use our short form to request a valuation of your property.

Request a Valuation

Mortgage Calculator

Amount Borrowed: £
Total Amount Repayable: £
Total Monthly Payment: £
©2026 The Guild of Property Professionals. All rights reserved. Terms and Conditions | Privacy Policy | Cookie Policy | Complaints Policy | Members Login
The Guild of Property Professionals Trading Address: 121 Park Lane, London W1K 7AG. GPEA Limited. Registered in England & Wales.  Company No: 02819824.  Registered Office Address: 2 St. Stephen's Court, St. Stephen's Road, Bournemouth, Dorset, England, BH2 6LA.  VAT Registration No: 576 8795 61
Book a Property Valuation Update Cookies Preferences